Ingatlan Televízió
Ingatlan Televízió
további hirdetések
adatlap bezárása

Nyíregyháza 
 

Hivatkozási szám: 5834207
Ingatlan adatai
Irányár: 79 000 000 Ft
Típus: ház
Kategória: eladó
Alapterület: 109 m2
Fűtés: gáz (cirko)
Állapota: új
Szobák száma: 3
Építés éve: 2025
Szintek száma: -
Részletes leírás
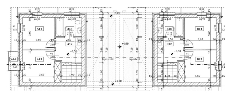
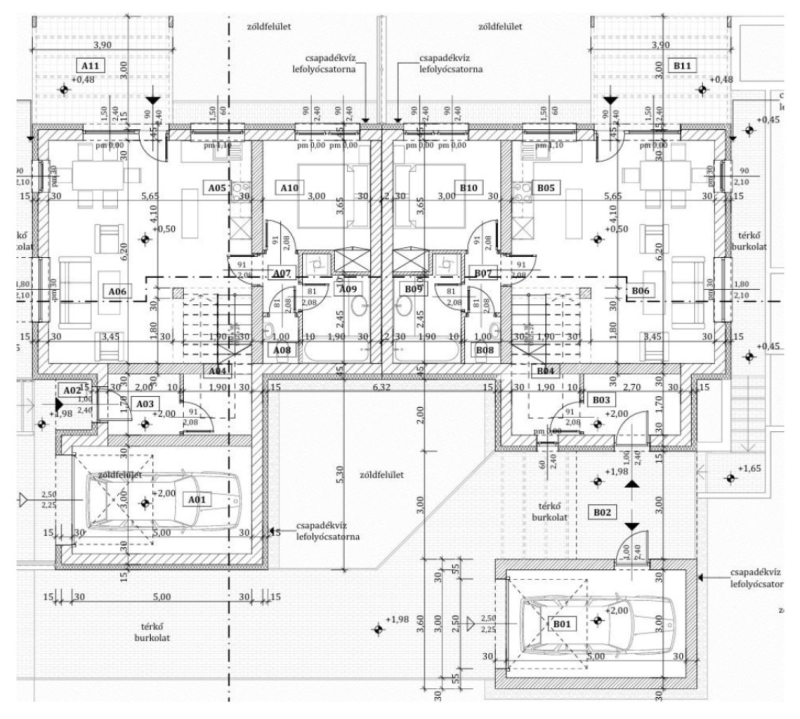
Eladó Nyíregyháza Nyírszőlős részén a Kollégium utcai lakóparkban 2025-ben épülő új A++ besorolású 3 szobás garázsos lakóparki ikerház. (K/2)

Ára: 79.000.000 Ft.

Az ingatlan alap méretei:
- a telek mérete: 360nm,
- a ház alapterülete: 109nm.

Az épület hasznos alapterülete 109nm melyben található:
- 3 szoba,
- amerikai konyhás nappali,
- kamra,
- fürdőszoba,
- WC,
- közlekedő,
- előszoba,
- garázs (17nm),
- terasz (12nm).


Az új építésű lakóparki ikerház várhatóan 8 hónapon belül kerül átadásra, mely korszerű hő takarékos építészeti megoldásokat alkalmazva készül el. A falazata 30-as téglából épül, mely 15 cm-es EPS homlokzati hőszigetelést kap. A födém szerkezete 15 cm-es ásványszálas hőszigetelésű lesz, így az egész épület energetikai szempontból A++ kategóriájú.

Az épületben áram, víz, gáz és csatorna bekötésre kerül. Az épület padlófűtéssel, radiátoros fűtéssel vagy kérés esetén a kettő kombinációjával készül el, mely gáz cirkó kazánról fog működni. Ezen kívül még 2 db hűtő-fűtő klíma is rendelkezésre fog állni. A melegvíz ellátásról szintén a gáz cirkó kazán gondoskodik.

Az ingatlan ideális választás lehet mindazok számára, akik új építésű, modern energiatakarékos otthont keresnek nyugodt kertvárosi környezetben.

Fontos!
Az ingatlan per és tehermentes, 2 gyerekes CSOK Plusz is igénybe vehető!

Figyelem!
Minőségi kivitelezés és választható belső burkolatok, szaniterek.
2025-ös energetikai szabványoknak megfelelő modern megoldások.
A belső elrendezés igény szerint módosítható.

Ha felkeltette érdeklődését, hívja irodánkat bizalommal!
Ha hitelre van szüksége éljen ingyenes, személyre szabott hitel ügyintézési szolgáltatásunkkal is.
További adatok
Telekterület: 360 m2
Kert mérete: 360 m2
Erkély mérete: -
Felszereltség: -
Parkolás: -
Kilátás: panorámás
Egyéb extrák:  
Hirdető adatai
Hirdető neve: GDN Ingatlanhálózat
Kapcsolattartó: Berki Katalin
Hirdető telefonszáma: +36-70-789-1998
Honlap: -
 
Üzenetet küldhet a hirdetőnek, árajánlatot tehet az ingatlanra:
Az Ön neve:
Az Ön e-mail címe:
Üzenet: