Ingatlan Televízió
Ingatlan Televízió
további hirdetések
adatlap bezárása

Budapest, XII.kerület 
 

Hivatkozási szám: 5834238
Ingatlan adatai
Irányár: 95 000 000 Ft
Típus: lakás (tégla)
Kategória: eladó
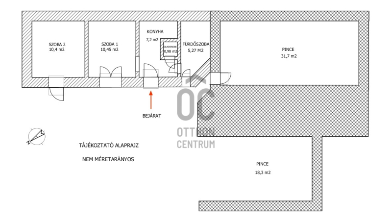
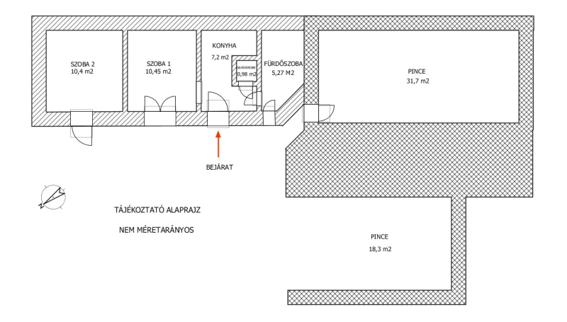
Alapterület: 33 m2
Fűtés: -
Állapota: -
Szobák száma: 2
Építés éve: -
Szintek száma: -
Részletes leírás
Eladó egy présház jellegű sváb falusi porta és pince együttes a XII. kerületben.

A Svábhegy szőlészeti és borászati hagyományainak egyik utolsó hírnökeként műemléki védelmet élvez.

A présházat lakóházzá alakították, de az eredeti építészeti forma és stílus jegyeket megőrizték.
Megmaradt a látványos pince és az egykori helyi szőlő művelési kultúrára jellemző támfalas-teraszos kert.

Az 1830-as években épült házban két társasházi lakás található külön lekerített kertrésszel. A hangulatos, ősfás, teraszos kert kb. 900 m2.

Az eladásra kerülő ingatlan:

- 33 m2-es 2 szobás lakás. (Az egyik szoba jelenleg az udvarról nyílik és teljesen felújítandó.)
- 2 db pince - összesen 50 m2 (Az egyik pince elölről nyitott és felújítást-helyreállítást igényel. Feltehetőleg ennek mérete a jelenleg láthatónál jóval nagyobb)
- kő és tégla falazat (60 cm vastag) 5 cm hungarocell szigeteléssel.
- elektromos fűtés
- buszmegálló 300 méteren belül található. (21, 21A, 212, 221)
- fogaskerekű megálló 400 méter
- bevásárlási lehetőség 400 méter

Alkalmas lehet idegenforgalmi - vendéglátási célra, borpincének, rendezvény helyszínnek.
További adatok
Telekterület: -
Kert mérete: -
Erkély mérete: -
Felszereltség: -
Parkolás: -
Kilátás: kertre néző
Egyéb extrák:  
Hirdető adatai
Hirdető neve: Otthon Centrum
Kapcsolattartó: Tóth Ágota
Hirdető telefonszáma: +36 70 716 9216
Honlap: -
 
Üzenetet küldhet a hirdetőnek, árajánlatot tehet az ingatlanra:
Az Ön neve:
Az Ön e-mail címe:
Üzenet: