Ingatlan Televízió
Ingatlan Televízió
további hirdetések
adatlap bezárása

Sopron 
 

Hivatkozási szám: 5834328
Ingatlan adatai
Irányár: 49 900 000 Ft
Típus: lakás (panel)
Kategória: eladó
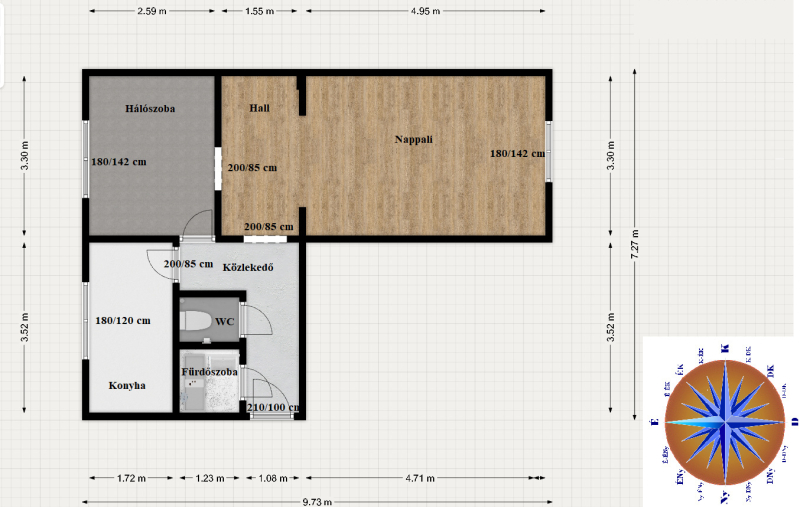
Alapterület: 53 m2
Fűtés: távfűtés
Állapota: -
Szobák száma: 2
Építés éve: 1970
Szintek száma: -
Részletes leírás
Eladó 2 szoba-hallos, MAGASFÖLDSZINTi lakás Sopron belvárosához közel !

- Elhelyezkedés: Sopron, belvárostól mindössze pár perc sétára
- Alapterület: 53 nm
- Szobák száma: 2 + hall
- Környezet: csendes utcában, mindenhez közel.

✅ JELLEMZŐK:

- FELÚJÍTANDÓ
- CSENDES, parkosított környezet, mégis VÁROSKÖZPONTI elhelyezkedés
- PANEL PROGRAMos, hőszigetelt épület, mért távfűtéssel
- MŰANYAG, hőszigetelt NYÍLÁSZÁRÓK, nappalin ( déli oldal ) REDŐNY
- a pincében SAJÁT, 8 nm-es TÁROLÓ
- KEDVEZŐ a lakás REZSIje és a közös költsége
- kiváló közlekedés
- karbantartott ház - a közösségi terek tiszták, rendezettek
- PARKOLÁS a KÖZTERÜLETEN kialakított parkolóhelyeken lehet.

✅ Elhelyezkedés előnyei:
Ez a lakás a belváros közvetlen közelében csendes rendezett lakótelepen található, innen pár perc sétával elérhetőek üzletek, iskolák, óvodák, hivatalok, kávézók, szolgáltatások, és a történelmi belváros hangulatos utcái is. Kiváló közlekedés, minden fontos intézmény könnyen megközelíthető, vasútállomás is csak pár perc séta.

✅ Kinek lehet ideális?
Ajánlott idősebbeknek, akik elsősorban földszinti megoldást keresnek, fiatal pároknak, illetve befektetőknek is kiemelkedő lehetőség frekventált elhelyezkedése miatt.

Bővebb információért, megtekintésért, kérem hívjon a megadott elérhetőségeimen!

A lakás megvásárláshoz igénybe vehetők, államilag támogatott, vissza nem térítendő támogatások és kedvezményes hitelek. ( OSP, CSOK stb. )

Hitelre van szüksége?
Az Otthon Centrum az ország egyik legnagyobb és legmegbízhatóbb hitelközvetítőjeként, teljes körű és díjmentes hitelügyintézéssel, biztosításkötéssel áll rendelkezésére!
Kérje személyre szabott ajánlatunkat Kollégáinktól!
További adatok
Telekterület: -
Kert mérete: -
Erkély mérete: -
Felszereltség: -
Parkolás: -
Kilátás: utcai
Egyéb extrák:  
Hirdető adatai
Hirdető neve: Otthon Centrum
Kapcsolattartó: Németh Zsolt
Hirdető telefonszáma: +36 70 388 5886
Honlap: -
 
Üzenetet küldhet a hirdetőnek, árajánlatot tehet az ingatlanra:
Az Ön neve:
Az Ön e-mail címe:
Üzenet: