Ingatlan Televízió
Ingatlan Televízió
további hirdetések
adatlap bezárása

Szekszárd 
 

Hivatkozási szám: 5834329
Ingatlan adatai
Irányár: 7 990 000 Ft
Típus: ház
Kategória: eladó
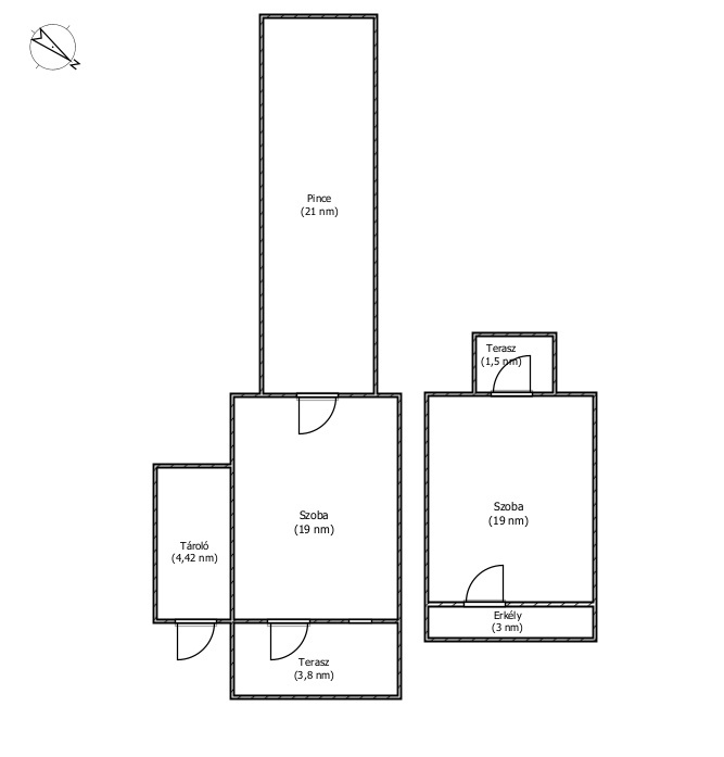
Alapterület: 54 m2
Fűtés: egyéb
Állapota: -
Szobák száma: 2
Építés éve: 1960
Szintek száma: -
Részletes leírás
Szekszárd festői városában, a Palánki hegy városrészben kínálunk eladásra egy kivételes, 1542 nm-es telken fekvő ingatlant, amely nem csupán egy építkezési lehetőséget, hanem egy életstílust is magában hordoz. Ez a volt zártkerti külterület ideális választás lehet mindazok számára, akik saját otthonukat szeretnék megvalósítani, vagy szívesen gazdálkodnának, illetve befektetési célból keresnek értékálló ingatlant. A telek elhelyezkedése páratlan panorámát nyújt.
Megközelítése rendkívül egyszerű, hiszen Szekszárd város központjától mindössze néhány perc autóútra található, így a város nyújtotta szolgáltatások, boltok és éttermek könnyen elérhetők. A környék csendes, nyugodt, amely ideális a pihenésre vágyók számára. Az ingatlan környezetében számos lehetőség kínálkozik a szabadidő eltöltésére, legyen szó kirándulásokról, kerékpározásról, a természet közelségéről.
A telek beépíthetősége lehetőséget ad arra, hogy álmai otthonát megvalósítsa, legyen szó akár családi házról vagy nyaralóról.
A tömegközlekedés jól kiépített, így a város más részeire való eljutás sem okoz gondot. A környék folyamatos fejlődése és a helyi közösség aktív élete garantálja, hogy ez a terület nem csupán egy ingatlan, hanem egy befektetés is, amely hosszú távon értéket képvisel.

Fontos, hogy tudja:
* A ház tégla falazatú
* A közművek közül az áram bevezetésre került
* A szőlőültetvény, ha Ön jó gazda, még megmenthető
* Kirakott pince várja új gazdáját
* Működő kút áll rendelkezésre
* Az erkély páratlan kilátást nyújt
* Az ingatlan többféle célra is használható (lakhatás, szőlőtermesztés nyaraló-funkció, vendégház)

A területnek aranykorona értéke van, kifüggesztést igényel.

Bízom benne, hogy ez a telek felkeltette érdeklődését. Természetesen szívesen válaszolok felmerülő kérdéseire. Kérem, ne habozzon kapcsolatba lépni velem, hogy közösen valósíthassuk meg álmait!

Irodánk teljes körű szolgáltatást nyújt kereső ügyfeleinknek.
Szakszerű, bankfüggetlen hiteltanácsadással, energetikai tanúsítvány, villamosbiztonsági felülvizsgálat elkészítésével és kedvező díjszabású ügyvéddel nyújtunk segítséget!
További adatok
Telekterület: 1 542 m2
Kert mérete: 1 542 m2
Erkély mérete: -
Felszereltség: -
Parkolás: -
Kilátás: -
Egyéb extrák:  
Hirdető adatai
Hirdető neve: Otthon Centrum
Kapcsolattartó: Zentainé Pfeiffer Márta
Hirdető telefonszáma: +36 70 716 9251
Honlap: -
 
Üzenetet küldhet a hirdetőnek, árajánlatot tehet az ingatlanra:
Az Ön neve:
Az Ön e-mail címe:
Üzenet: