Ingatlan Televízió
Ingatlan Televízió
további hirdetések
adatlap bezárása

Nógrád 
 

Hivatkozási szám: 5834617
Ingatlan adatai
Irányár: 53 000 000 Ft
Típus: ház
Kategória: eladó
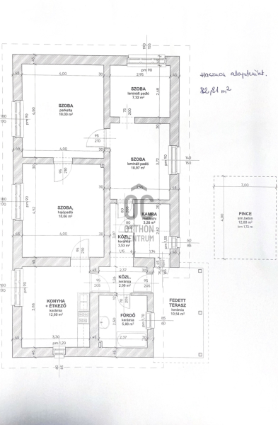
Alapterület: 83 m2
Fűtés: gáz (konvektor)
Állapota: -
Szobák száma: 4
Építés éve: 1965
Szintek száma: -
Részletes leírás
Eladásra kínálok egy 1965-ben épült, vályog és tégla építésű családi ház Nógrád községben!

A ház jó állapotban van, két utcáról is megközelíthető, összközműves, fa födémes cserépfedésű tetővel, fa nyílászárókkal.
A gondozott kertben többféle gyümölcsfa és szőlő található, valamint egy működő gyűrűs kút.
A házhoz tartozik egy különálló nyári konyha vagy tároló, pince, fedett autóbeálló.

Az ingatlan villanyhálózata 16 A-es főkapcsolattal és éjszakai árammal van ellátva. A meleg vízről villanybojler gondoskodik. Fűtését gázkonvektor és két cserépkályha biztosítja, ez utóbbiak alternatív fűtési lehetőségként szolgálnak.

A ház belső elrendezése magában foglal 3,5 szobát, konyhát, fürdőszobát WC-vel, közlekedőt valamint előszobát. A terasz nagy, kertre néző kilátással rendelkezik.

A településen elérhető iskola, óvoda, üzletek, orvosi rendelő és gyógyszertár is. A falu legfőbb nevezetessége a Nógrádi vár, emellett számos kirándulási lehetőség kínálkozik a környéken, például a háztól pár perc sétára található vadaspark.
Közlekedés szempontjából az ingatlantól mindössze 200 méterre található a kisvasút és a buszmegálló, a Nógrádi vár pedig csak 10-15 perc sétára van.
Budapestre autóval körülbelül 60 perc alatt eljuthatunk.
Ez az ingatlan ideális lehetőség azok számára, akik vidéki környezetben keresnek jó állapotú, jól felszerelt családi házat, közel a természethez és a kulturális látnivalókhoz.

Amivel segítjük az Ön ingatlanvásárlását:
-ingyenes, bankfüggetlen hitelügyintézés (CSOK és Babaváró, Otthon Start Hitel ügyintézése is.)
-jogi háttér
-földhivatali ügyintézés
-energetikai tanúsítvány elkészítése
-biztosítás

További információkért, illetve megtekintéssel kapcsolatban keressen bizalommal a megadott telefonszámon!
További adatok
Telekterület: 984 m2
Kert mérete: 984 m2
Erkély mérete: 11 m2
Felszereltség: -
Parkolás: -
Kilátás: -
Egyéb extrák:  
Hirdető adatai
Hirdető neve: Otthon Centrum
Kapcsolattartó: Bíró-Csitári Tünde
Hirdető telefonszáma: +36 70 412 5616
Honlap: -
 
Üzenetet küldhet a hirdetőnek, árajánlatot tehet az ingatlanra:
Az Ön neve:
Az Ön e-mail címe:
Üzenet: