Ingatlan Televízió
Ingatlan Televízió
további hirdetések
adatlap bezárása

Nyíregyháza 
 

Hivatkozási szám: 5834891
Ingatlan adatai
Irányár: 71 900 000 Ft
Típus: lakás (tégla)
Kategória: eladó
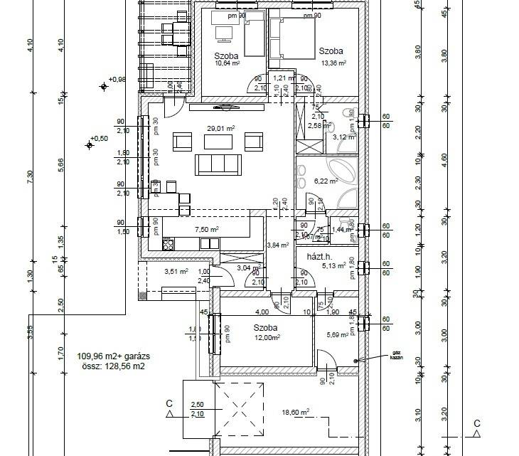
Alapterület: 119 m2
Fűtés: -
Állapota: új
Szobák száma: 3
Építés éve: 2025
Szintek száma: 1
Részletes leírás
Családbarát környezet, modern otthon, elérhető ár! Nappali + 3 szobás ikerház eladó! KÖLTÖZZÖN 2026 TAVASZÁN
Új otthon, új kezdet – Kistelekiszőlőben!

Képzeld el, hogy minden reggel madárcsicsergésre ébredsz egy nyugodt, biztonságos utcában, mégis pár perc alatt elérhető a belváros pezsgése.

Nyíregyháza egyik csendes kertvárosi részén, 1000 m²-es telken épülnek modern ikerházak, melyek kialakításuknak köszönhetően tökéletes választás fiatal pároknak és családoknak.

Miért különleges?

családbarát környezet, ahol a gyerekek biztonságban nőhetnek fel
nagy telek, ahol mindig jut hely közös játékra, kertészkedésre vagy egy nyári grillpartira
modern otthon, melyben minden részlet a kényelmet és a harmóniát szolgálja
igényes lakópark közvetlen közelében, nyugodt és rendezett szomszédságban
Műszaki tartalom:

30 cm vastag, korszerű falazat + 15 cm nikecell hőszigetelés
3 rétegű, hőszigetelt műanyag nyílászárók
padlófűtés hőszivattyús rendszerrel
modern, energiatakarékos hőszivattyú
2 db hűtő-fűtő klíma
15 cm-es lépésálló szigetelés a födémen
térkövezett kocsibeálló és járda
garázs elektromos kapu előkészítéssel
riasztó és okosotthon rendszer kiépíthető előkészítéssel
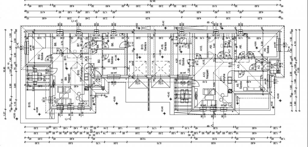
az ingatlanok alapterülete: „A” lakás (utcafronti) br. 119 nm, „B” lakás (hátsó ikerház nagyobb telekkel) 101 nm.
Tervezett átadás: 2026 tavasz

Ez nem csak egy ház – ez az a hely, ahol a közös jövőtöket építitek.

Már most foglalható, ne maradjatok le róla!

Ha Ön is szeretne egy modern, kényelmes otthont, ne habozzon, keressen minket, és tekintse meg ezt a remek lehetőséget! Vevőink számára minden szolgáltatásunk ingyenes és teljeskörű ügyintézést biztosítunk. Szakmailag kiválóan felkészült kollégákkal állunk Ügyfeleink rendelkezésére hogy gördülékeny legyen az ingatlanvásárlás!
Elek Ágnes- ingatlanszakértő, irodavezető +36202785838

Referencia szám: 5362-ITV
További adatok
Telekterület: 1 000 m2
Kert mérete: -
Erkély mérete: -
Felszereltség: -
Parkolás: garázs
Kilátás: -
Egyéb extrák:  
Hirdető adatai
Hirdető neve: gmail.com - Greenhouse Ingatlaniroda
Kapcsolattartó: Elek Ágnes
Hirdető telefonszáma: +36202785838
Honlap: -
 
Üzenetet küldhet a hirdetőnek, árajánlatot tehet az ingatlanra:
Az Ön neve:
Az Ön e-mail címe:
Üzenet: