Ingatlan Televízió
Ingatlan Televízió
további hirdetések
adatlap bezárása

Budapest, XIV.kerület 
 

Hivatkozási szám: 5835305
Ingatlan adatai
Irányár: 144 577 500 Ft
Típus: lakás (tégla)
Kategória: eladó
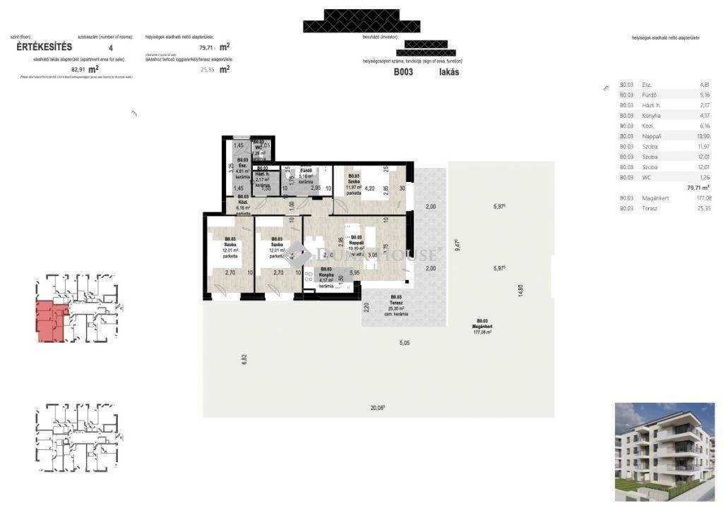
Alapterület: 135 m2
Fűtés: -
Állapota: új
Szobák száma: 4
Építés éve: 2026
Szintek száma: 1
Részletes leírás
ÚJ ÉPÍTÉSŰ OTTHONOK ZUGLÓ SZÍVÉBEN ELÉRHETŐ ÁRON.MÁR CSAK NÉHÁNY LAKÁS ELADÓ!FEJLETT INFRASTRUKTÚRA, KÖZLEKEDÉS, SZOLGÁLTATÁSOK.Kedves Érdeklődő!Szeretne egy ÉRTÉKÁLLÓ otthont, mely MODERN, közel van hozzá a BELVÁROS és természetközeli, KERTVÁROSI hangulatba térhet haza?Mert akkor figyeljen, ÖNNEK szól a beruházói ajánlatom. Itt megtalálja álmai otthonát. Budapest 14. kerületében, ZUGLÓ kedvelt városrészében, az Uzsoki utcában nyugodt lakókörnyezetet biztosító, egy CSENDES, fákkal szegélyezett utcában 3155 nm-es telken épülő projekt 2 különálló épületében 2026. márciusi átadással PRÉMIUM minőségben 4-4 szinten, 22-22 lakásos UNIKÁLIS, liftes társasházban pillanatnyilag 32 db változatos alapterületekkel, 45-80 nm-ig NAPFÉNYES, erkélyes vagy teraszos és kertkapcsolatos, hőszivattyú fűtésrendszerű, ÚJ, zöldövezeti lakásokat kínálok megvételre minden korosztály számára.Ajánlom befektetők részére, a földszintes lakások vállalkozói tevékenység céljából KIVÁLÓAN hasznosíthatók. Fizetési ütemezés kedvező.Átadás: 2026. március 31.A mélygarázsban saját autóbeálló hely vásárolható .Kerékpár tároló: 250 000.- FtKét épületből álló modern társasház :- kimagasló műszaki tartalommal FUNKCIONÁLIS, LIFTES lakások- mélygarázs, földszint + 3 emelet+ penthouse kialakítással épül- minden szinten 5 db, 45nm-től egészen 80 nm-ig változatos területű, világos lakások erkéllyel, terasszal vagy kertkapcsolattal lettek kialakítva.Kínálatunkban : N+1 szoba vagy N+2 szoba vagy N+3 szoba elosztással érhetők el lakások- levegős hőszivattyús rendszerrel működtetett mennyezeti hűtés-fűtés biztosítja az otthon komfortját, mely egyedi hőmennyiségmérővel van ellátva. A lakások tulajdonosai ALACSONY fenntartási költséggel számolhatnak.- a homlokzati nyílászárók 3 rétegű hőszigetelt üvegezéssel gyártottak- beépített elektromos redőny- a két társasház közötti belső udvarban gondosan megtervezett ZÖLD KERT kap helyetProjekt:- modern, unikális homlokzat, magas minőségű kivitelezés- modern, kimagasló műszaki felszereltséggel rendelkező lakások- modern technológia: hőszivattyús fűtésrendszer, alacsony fenntartási költségek- 3155 nm-es telken 2026. márciusi átadással, két különálló épületben, PRÉMIUM minőségben 4-4 szinten, 22-22 lakásos UNIKÁLIS, liftes társasházban pillanatnyilag 32 db változatos alapterületű 45-80 nm-ig lakások kerültek kialakításra- vasbeton pillérvázas szerkezet monolit vasbeton födémmel tartószerkezeti tervek szerint- külső szerkezeti falak 25 cm vastag Porotherm NF téglából, 15 cm dryvit hőszigeteléssel.- tájépítész által tervezett zöld kert, automata öntözőrendszer- mélygarázsban autó beállóhely és kerékpártároló vásárolható- elektromos autótöltő- modern, kényelmes, értékálló otthonok minden korosztály számára- városi infrastruktúra előnyei- CSOK- 5 % ÁFALokáció:- nyugodt, zöld környezet- a Városliget 10 perc séta távolságra van- a város minden pontja könnyedén elérhető tömegközlekedési eszközökkel: metró, villamos, busz, troli, vonat, autópálya- oktatási intézmények- vásárlási és szórakozási lehetőségekAmennyiben az ingatlanvásárláshoz hitelre van szüksége, hiteltanácsadónk ingyenes tájékoztatja a piacon található konstrukciók közül a legoptimálisabb lehetőségekről.Érdeklődjön még ma, várom megtisztelő hívását..ÚJ ÉPÍTÉSŰ OTTHONOK ZUGLÓ SZÍVÉBEN ELÉRHETŐ ÁRON.FEJLETT INFRASTRUKTÚRA, KÖZLEKEDÉS, SZOLGÁLTATÁSOK.Kedves Érdeklődő!Szeretne egy ÉRTÉKÁLLÓ otthont, mely MODERN, közel van hozzá a BELVÁROS és természetközeli, KERTVÁROSI hangulatba térhet haza?Mert akkor figyeljen, ÖNNEK szól a beruházói ajánlatom. Itt megtalálja álmai otthonát. Az értékesítés elindult.Budapest 14. kerületében, ZUGLÓ kedvelt városrészében, az Uzsoki utcában nyugodt lakókörnyezetet biztosító, egy CSENDES, fákkal szegélyezett utcában 3155 nm-es telken épülő projekt 2 különálló épületében 2026. márciusi átadással PRÉMIUM minőségben 4-4 szinten, 22-22 lakásos UNIKÁLIS, liftes társasházban pillanatnyilag 32 db változatos alapterületekkel, 45-80 nm-ig NAPFÉNYES, erkélyes vagy teraszos és kertkapcsolatos, hőszivattyú fűtésrendszerű, ÚJ, zöldövezeti lakásokat kínálok megvételre minden korosztály számára.Ajánlom befektetők részére, a földszintes lakások vállalkozói tevékenység céljából KIVÁLÓAN hasznosíthatók. Fizetési ütemezés kedvező.Átadás: 2026. március 31.A mélygarázsban saját autóbeálló helyek: 6 millió Ft és 7,5 millió Ft áron vásárolható meg.Kerékpár tároló: 250 000.- FtKét épületből álló modern társasház :- kimagasló műszaki tartalommal FUNKCIONÁLIS, LIFTES lakások- mélygarázs, földszint + 3 emelet+ penthouse kialakítással épül- minden szinten 5 db, 45nm-től egészen 80 nm-ig változatos területű, világos lakások erkéllyel, terasszal vagy kertkapcsolattal lettek kialakítva.Kínálatunkban : N+1 szoba vagy N+2 szoba vagy N+3 szoba elosztással érhetők el lakások- levegős hőszivattyús rendszerrel működtetett mennyezeti hűtés-fűtés és padlófűtés biztosítja az otthon komfortját, mely egyedi hőmennyiségmérővel van ellátva. A lakások tulajdonosai ALACSONY fenntartási költséggel számolhatnak.- a homlokzati nyílászárók 3 rétegű hőszigetelt üvegezéssel gyártottak- beépített elektromos redőny- a két társasház közötti belső udvarban gondosan megtervezett ZÖLD KERT kap helyetProjekt:- modern, unikális homlokzat, magas minőségű kivitelezés- modern, kimagasló műszaki felszereltséggel rendelkező lakások- modern technológia: hőszivattyús fűtésrendszer, alacsony fenntartási költségek- 3155 nm-es telken 2026. márciusi átadással, két különálló épületben, PRÉMIUM minőségben 4-4 szinten, 22-22 lakásos UNIKÁLIS, liftes társasházban pillanatnyilag 32 db változatos alapterületű 45-80 nm-ig lakások kerültek kialakításra- vasbeton pillérvázas szerkezet monolit vasbeton födémmel tartószerkezeti tervek szerint- külső szerkezeti falak 25 cm vastag Porotherm NF téglából, 15 cm dryvit hőszigeteléssel.- tájépítész által tervezett zöld kert, automata öntözőrendszer- mélygarázsban autó beállóhely és kerékpártároló vásárolható- elektromos autótöltő- modern, kényelmes, értékálló otthonok minden korosztály számára- városi infrastruktúra előnyei- CSOK- 5 % ÁfaLokáció:- nyugodt, zöld környezet- a Városliget 10 perc séta távolságra van- a város minden pontja könnyedén elérhető tömegközlekedési eszközökkel: metró, villamos, busz, troli, vonat, autópálya- oktatási intézmények- vásárlási és szórakozási lehetőségekAmennyiben az ingatlanvásárláshoz hitelre van szüksége, hiteltanácsadónk ingyenes tájékoztatja a piacon található konstrukciók közül a legoptimálisabb lehetőségekről.Érdeklődjön még ma, várom megtisztelő hívását.

Referencia szám: PR050693/LK/23077
További adatok
Telekterület: -
Kert mérete: -
Erkély mérete: 25 m2
Felszereltség: -
Parkolás: -
Kilátás: -
Egyéb extrák:  
Hirdető adatai
Hirdető neve: dh.hu - Gödöllő
Kapcsolattartó: Kolcsár Gyöngyi
Hirdető telefonszáma: +36704333580
Honlap: -
 
Üzenetet küldhet a hirdetőnek, árajánlatot tehet az ingatlanra:
Az Ön neve:
Az Ön e-mail címe:
Üzenet: