Ingatlan Televízió
Ingatlan Televízió
további hirdetések
adatlap bezárása

Pécs 
 

Hivatkozási szám: 5835621
Ingatlan adatai
Irányár: 220 000 Ft
Típus: lakás (tégla)
Kategória: kiadó
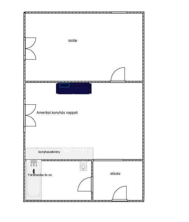
Alapterület: 48 m2
Fűtés: gáz (cirko)
Állapota: felújított
Szobák száma: 2
Építés éve: 2000
Szintek száma: 1
Részletes leírás
Földszinti, Amerikai konyhás, hálószobás, bútorozott lakás hosszútávra kiadó Pécs, Egyetemváros részén. Újépítésű társasházban található, egyedi házközponti fűtéssel. Udvar és autó beálló is tartozik a lakáshoz, így parkolás is megoldott. Azonnal költözhető! A bérlés megkezdéséhez 2 havi kaució és 1 havi bérleti díj előzetes megfizetése szükséges. Közel az egyetemekhez, jó közlekedéssel, üzletek és szolgáltatások pár percen belül elérhetők. Költözés azonnal megoldható, nincs késlekedés. Tökéletes választás Diákoknak vagy pároknak! Kérem, hívj, ha szeretnéd ezt a lakást bérbe venni!

Referencia szám: M314045
További adatok
Telekterület: -
Kert mérete: -
Erkély mérete: -
Felszereltség: -
Parkolás: lakáshoz van kültéri parkoló
Kilátás: -
Egyéb extrák:  
Hirdető adatai
Hirdető neve: otpip.hu - Pécs Király utca 75 - OTP Ingatlanpont Iroda
Kapcsolattartó: Szabó Ágnes
Hirdető telefonszáma: +36205097862
Honlap: -
 
Üzenetet küldhet a hirdetőnek, árajánlatot tehet az ingatlanra:
Az Ön neve:
Az Ön e-mail címe:
Üzenet: