Ingatlan Televízió
Ingatlan Televízió
további hirdetések
adatlap bezárása

Budapest, III.kerület 
Királylaki út 

Hivatkozási szám: 5835623
Ingatlan adatai
Irányár: 629 900 000 Ft
Típus: lakás (tégla)
Kategória: eladó
Alapterület: 315 m2
Fűtés: gáz (cirko)
Állapota: új
Szobák száma: 11
Építés éve: 1990
Szintek száma: 3
Részletes leírás
ELŐÉRTÉKESÍTÉSI AKCIÓ 2025 OKTÓBER VÉGÉIG! ÚJJÁÉPÍTETT (MINT AZ ÚJ) 3 LAKÁSOS ÉPÜLET, LAKÁS 2 MFT-OS M2 ÁRON KONYHABÚTORRAL? IGEN LEHETSÉGES, olvassa tovább?.
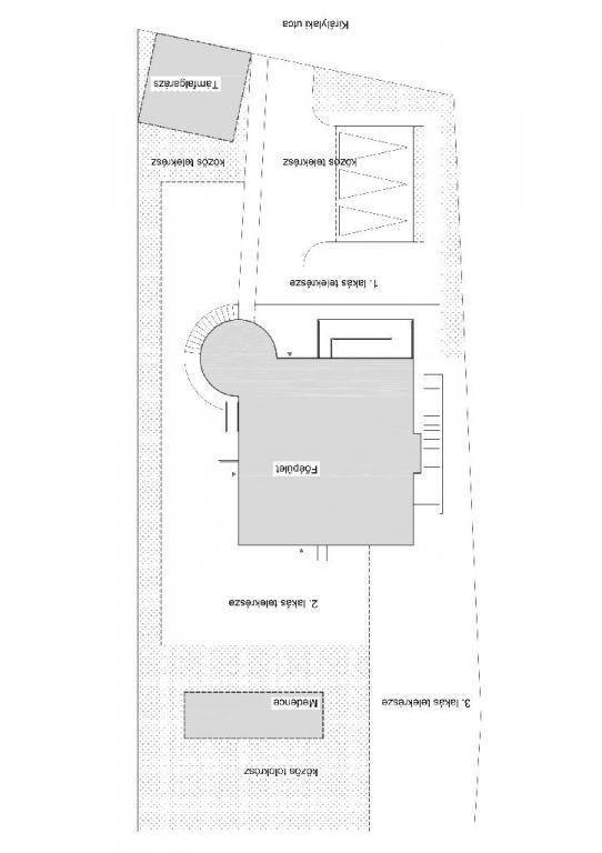
III. kerületben, Táborhegy és Testvérhegy határán egy 3 lakásos ház hirdetését olvassa.
1.) lakás: 90 M2-ES NAPPALI + 2 HÁLÓSZOBÁS, 80 M2-ES saját kertkapcsolatos földszinti lakását ajánlom figyelmébe! Az 1990-ben épült épület, csak az alapszerkezetét meghagyva, teljes felújításon fog átesni, kiváló, Príma díjas építészmérnök átgondolt tervei alapján, ez egy olyan lakás lesz, ahol a szomszédok nem járnak át egymáson, tehát minden lakás, külön bejárati úttal fog rendelkezni, valamint minden lakás önálló, kizárólagos használatú kerttel lett tervezve. KÜLÖN HELYRAJZI SZÁMON értékesítjük az ingatlanokat (nem közös osztatlan), melyhez külön HRSZ-on lévő garázs is vásárolható igény esetén, vagy zárt gépkocsibeálló. Ebből 2 db lesz elérhető 18 m2 mérettel, automata garázskapuval,12 MFt-os áron, illetve 3db zárt udvari gépkocsibeálló 4 MFt-os áron.
Nézzük a lakás elrendezését, egy 5,16 m2-es előszobából érkezünk a 35 m2-es amerikai-konyha-étkezős nappaliba, ahonnan egy 5,18 m2-es közlekedőn keresztül közelíthető meg a 2 nagy méretű hálószoba. (15 és 14.25 négyzetméretesek)
Külön 2 db mellékhelyiség, és külön, majd 10 m2-es nagyméretű fürdőszoba teszi kényelmessé a reggeli készülést, mely zuhanyzóval és káddal is el lesz látva, valamint egy 5,33 m2-es háztartási helyiség praktikus megoldás a háztartási eszközök és a mosógép tárolására.
Mind a konyha és a hálószobák közvetlen 25,45 m2-es teraszkapcsolattal rendelkeznek, ahonnan a zöld saját kert is megközelíthető.
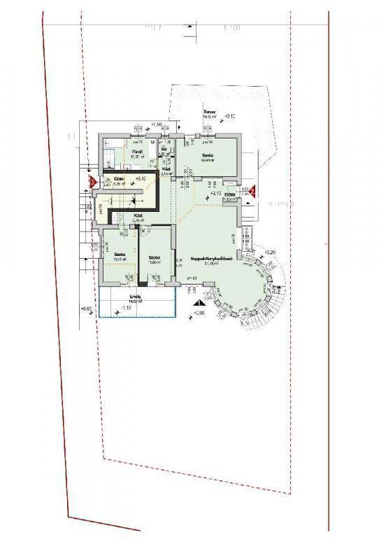
2.) 110 M2-ES NAPPALI + 3 HÁLÓSZOBÁS, 2 erkélyes, 200 M2-ES saját kertkapcsolatos első emeleti.
A lakás elrendezése: egy 1,83 m2-es előszobából érkezünk a 51,78 m2-es amerikai-konyha-étkezős nappaliba, ahonnan egy 3,75 m2-es közlekedőn keresztül közelíthető meg a 2 hálószoba. (11,41 és 11 négyzetméretesek), a harmadik hálószoba egy további 2,13 m2-es közlekedőből nyílik, amely 14,4 m2-es.
2 db mellékhelyiség és 10.5 m2-es nagyméretű fürdőszoba teszi kényelmessé a reggeli készülést, mely zuhanyzóval és káddal is el lesz látva.
Mind a konyha, és a hátsó hálószoba (ez 14,5 m2-es erkéllyel) közvetlen kijárással a 200 m2-es kertre. Az utcafrontra néző hálószobák 14.82 m2-es erkélykapcsolatosak.
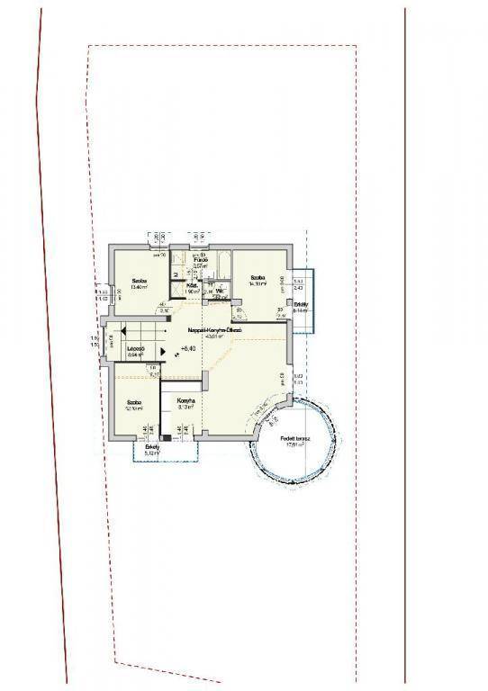
3.) 115 M2-ES NAPPALI + 3 HÁLÓSZOBÁS, 3 erkélyes, 170 M2-ES saját kert-el rendelkező de nem kertkapcsolatos!
A lakás elrendezése: egy 8,64 m2-es saját lépcsőházból érkezünk a 51,74 m2-es amerikai-konyha-étkezős nappaliba, ahonnan közvetlenül közelíthető meg a 3 nagy méretű hálószoba. (12,10 valamint 13,4 és 14,19 négyzetméretesek).
A 6.57 m2-es fürdő és a 1,82 mellékhelyiség külön lett elhelyezve, a fürdőszoba kényelmessé teszi a reggeli készülést, mert zuhanyzóval, és káddal is el lesz látva.
A saját lépcsőház előtt helyezkedik el, a saját kizárólagos használatú 170 m2-es kert. ERKÉLYEK: Az utcafrontra néző hálószoba 5,12 m2-es erkélykapcsolatos, a nappaliból 17,61 m2-es fedett erkély nyílik, és oldalt a legnagyobb hálószobából szintén egy 5,17 m2-es erkély nyílik.
KIALAKÍTÁSRA KERÜL EGY KÖRÜLBERLÜL 8X4 M-es MEDENCE, FINN SZAUNA-WPC NAPOZÓ RÉSZ (200M2 ÖSSZESEN) A TELEK HÁTSÓ RÉSZÉN KULCSRAKÉSZRE KIVITELEZVE. LEHETŐSÉG VAN AKÁR KÜLÖN MEVÁSÁROLNI, VAGY EGYÜTT A LAKÓKÖZÖSSÉGGEL 20 MFT-ÉRT KÖZÖS, VAGY KIZÁRÓLAGOS HASZNÁLATTAL.
SZERZŐDNI 30% TELEKHÁNYAD VÁSÁRLÁSSAL ÉS 10% VÉTELÁRELŐLEGGEL LEHET, A TOVÁBBI FIZETÉS KÉSZÜLTSÉGI FOK ALAPJÁN ÜTEMEZÉSSEL.
További adatok
Telekterület: 1 080 m2
Kert mérete: -
Erkély mérete: 57 m2
Felszereltség: -
Parkolás: garázs
Kilátás: -
Egyéb extrák:  
Hirdető adatai
Hirdető neve: otpip.hu - Mohács Dózsa György utca 2 - OTP Ingatlanpont Iroda
Kapcsolattartó: Szenk László
Hirdető telefonszáma: +36205024543
Honlap: -
 
Üzenetet küldhet a hirdetőnek, árajánlatot tehet az ingatlanra:
Az Ön neve:
Az Ön e-mail címe:
Üzenet: