Ingatlan Televízió
Ingatlan Televízió
további hirdetések
adatlap bezárása

Jánossomorja 
 

Hivatkozási szám: 5835728
Ingatlan adatai
Irányár: 42 000 000 Ft
Típus: lakás (tégla)
Kategória: eladó
Alapterület: 106 m2
Fűtés: gáz (cirko)
Állapota: felújított
Szobák száma: 3
Építés éve: 1970
Szintek száma: 1
Részletes leírás
Két utcáról nyíló, felújított családi ház tágas telekkel Jánossomorján, percekre az osztrák határtól!

Leírás:
Jánossomorján, csendes és rendezett környezetben eladóvá vált egy 106 m²-es, földszintes, 3 szobás családi ház, mely egy hatalmas, 1176 m²-es telken helyezkedik el. Az ingatlan kiváló lehetőséget kínál készpénzel kereső családoknak, Ausztriába ingázóknak, vagy befektetőknek egyaránt.

Az ingatlanról:
Az 1970-ben épült, masszív tégla falazatú ház 12 évvel ezelőtt egy jelentős felújításon esett át. Ennek keretében teljesen új cserépfedést kapott a tető, és a villanyvezeték-hálózatot is korszerűsítették. A régi ablakokat hőszigetelt, műanyag nyílászárókra cserélték, melyek redőnnyel felszereltek.

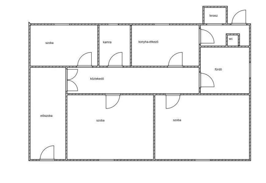
A ház elrendezése a mellékelt alaprajz szerint:
3 külön bejáratú, tágas szoba
Konyha-étkező
Kamra
Fürdőszoba
Külön WC
Előszoba és közlekedő
Egy hangulatos, kb. 4 m²-es fedett terasz
A déli tájolásnak köszönhetően a szobák világosak és napfényesek. A ház alatt egy 18 m²-es száraz pince is található, amely kiválóan alkalmas tárolásra.

Műszaki tartalom és extrák:
Fűtés: A fűtési rendszert kettős megoldás biztosítja: egy gázkazán és egy vegyes tüzelésű kazán is rendelkezésre áll, így a fűtés gazdaságosan és rugalmasan alakítható.
Vízellátás: Az ingatlan saját vízműrendszerrel rendelkezik, így a városi vízdíjtól mentes. A gáz és a csatorna a városi hálózatra van kötve.
Parkolás és telek: A telek különlegessége, hogy két utcáról is megközelíthető. Az udvarban több autó számára is van beállási lehetőség, valamint egy garázs és további melléképületek (műhely, tároló) is tartoznak az ingatlanhoz. A hatalmas kert gazdálkodásra, pihenőkert kialakítására vagy akár a ház építésére is lehetőséget ad.

Elhelyezkedés:
Jánossomorja egy dinamikusan fejlődő város kiváló infrastruktúrával. Az ingatlan csendes utcában található, mégis közel a központhoz, boltokhoz, iskolához. A legnagyobb előnye az elhelyezkedésének, hogy az osztrák határ mindössze néhány perces autóúttal elérhető, ami napi ingázáshoz is tökéletessé teszi.

Ez a ház tökéletes választás, ha egy stabil alapokon álló, már részben felújított, de saját ízlésére formálható otthont keres egy stratégiailag is kiváló helyen.
Amennyiben a hirdetés felkeltette érdeklődését, keressen bizalommal a megadott telefonszámon egy személyes megtekintésért!

Referencia szám: 3321-ITV
További adatok
Telekterület: 1 176 m2
Kert mérete: -
Erkély mérete: 4 m2
Felszereltség: -
Parkolás: lakáshoz van kültéri parkoló
Kilátás: -
Egyéb extrák:  
Hirdető adatai
Hirdető neve: movinghome.hu - Mov-Ing Home
Kapcsolattartó: Dömötör Attila
Hirdető telefonszáma: +36308505560
Honlap: -
 
Üzenetet küldhet a hirdetőnek, árajánlatot tehet az ingatlanra:
Az Ön neve:
Az Ön e-mail címe:
Üzenet: