Ingatlan Televízió
Ingatlan Televízió
további hirdetések
adatlap bezárása

Kecskemét 
 

Hivatkozási szám: 5835882
Ingatlan adatai
Irányár: 39 900 000 Ft
Típus: lakás (tégla)
Kategória: eladó
Alapterület: 40 m2
Fűtés: egyéb
Állapota: felújított
Szobák száma: 2
Építés éve: 1975
Szintek száma: 1
Részletes leírás
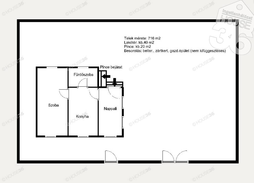
Kecskemét kertvárosi részén, a Halasi úti hobbysoron eladóvá vált egy teljes körűen felújított kis házikó.

Jellemzői:
- Telek mérete: 716 m2
- Összközműves
- Besorolása: belterület, zártkert, gazdasági épület
- Lakótér: br.40 m2 : nappali, konyha, fürdőszoba, hálószoba
- Pince: 20 m2
- Teljeskörűen felújított (2020/2021: cserélt nyílászárók, burkolatok, konyhabútor, fürdőszoba, vezetékek, fűtéskorszerűsítés)
- Szigetelés, új külső színezés a házon (2023)


Figyelem az adatlap megbízónktól kapott adatok alapján készült, pontosságáért felelősséget nem tudunk vállalni!
Szolgáltatásaink Kereső ügyfeleink számára INGYENESEK!
Amennyiben eladó-kiadó ingatlana van vagy finanszírozási megoldást keres , hívjon, megtaláljuk a legjobb lehetőséget Önnek!
A HOUSE36 kínálatában található összes ingatlannal kapcsolatban tudok felvilágosítást nyújtani!
Hívjon bizalommal!
Az iroda legfrissebb, aktuális kínálatát a HOUSE36 saját weboldalán találja!
További adatok
Telekterület: 716 m2
Kert mérete: -
Erkély mérete: -
Felszereltség: -
Parkolás: -
Kilátás: -
Egyéb extrák:  
Hirdető adatai
Hirdető neve: h36.hu - HOUSE36 Ingatlanhálózat
Kapcsolattartó: Fricskáné Oltai Katalin
Hirdető telefonszáma: +36307248695
Honlap: -
 
Üzenetet küldhet a hirdetőnek, árajánlatot tehet az ingatlanra:
Az Ön neve:
Az Ön e-mail címe:
Üzenet: