Ingatlan Televízió
Ingatlan Televízió
további hirdetések
adatlap bezárása

Budapest, XIII.kerület 
 

Hivatkozási szám: 5835892
Ingatlan adatai
Irányár: 86 500 000 Ft
Típus: lakás (tégla)
Kategória: eladó
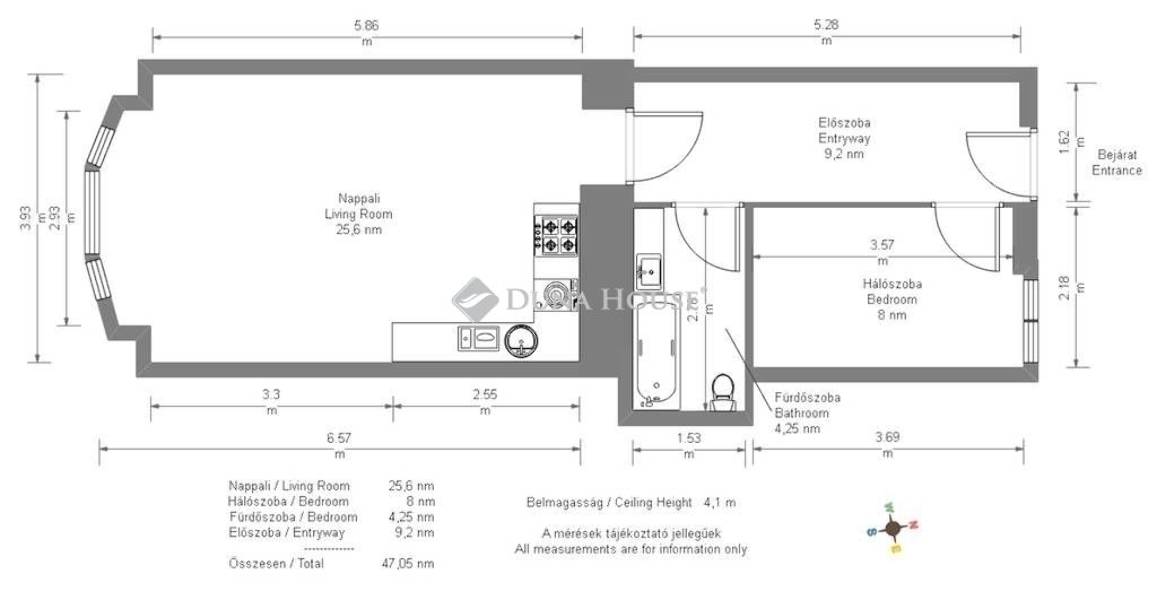
Alapterület: 47 m2
Fűtés: elektromos
Állapota: felújított
Szobák száma: 2
Építés éve: 1883
Szintek száma: 1
Részletes leírás
Újlipótvárosban, közvetlenül a Vígszínháznál, airbnb-re bejáratott, teljeskörűen felújított, első emeleti, nappali + hálós lakás eladó!Budapesten, a 13. kerületben, közvetlenül a Vígszínháznál, kulturált társasházban eladó egy első emeleti, teljes körűen, minőségi anyagokkal felújított, nappali + hálószobás, 47 nm-es lakás. A felújítás prémium minőségben készült el, beépítésre került egy gépesített konyhaszekrény, az ablakokra motoros redőnyöket szereltek fel, és minőségi faparketta melegburkolatot fektettek le. A fűtésről/hűtésről egy iverteres hűtő-fűtő klíma gondoskodik és a biztonságot a beépített riasztó biztosítja.

86500000 Ft
További adatok
Telekterület: -
Kert mérete: -
Erkély mérete: -
Felszereltség: -
Parkolás: utcán, közterületen
Kilátás: -
Egyéb extrák:  
Hirdető adatai
Hirdető neve: dh.hu - Csillaghegy
Kapcsolattartó: Cseh Klaudia
Hirdető telefonszáma: +36204200448
Honlap: -
 
Üzenetet küldhet a hirdetőnek, árajánlatot tehet az ingatlanra:
Az Ön neve:
Az Ön e-mail címe:
Üzenet: