Ingatlan Televízió
Ingatlan Televízió
további hirdetések
adatlap bezárása

Budapest, XIV.kerület 
 

Hivatkozási szám: 5836474
Ingatlan adatai
Irányár: 149 900 000 Ft
Típus: lakás (tégla)
Kategória: eladó
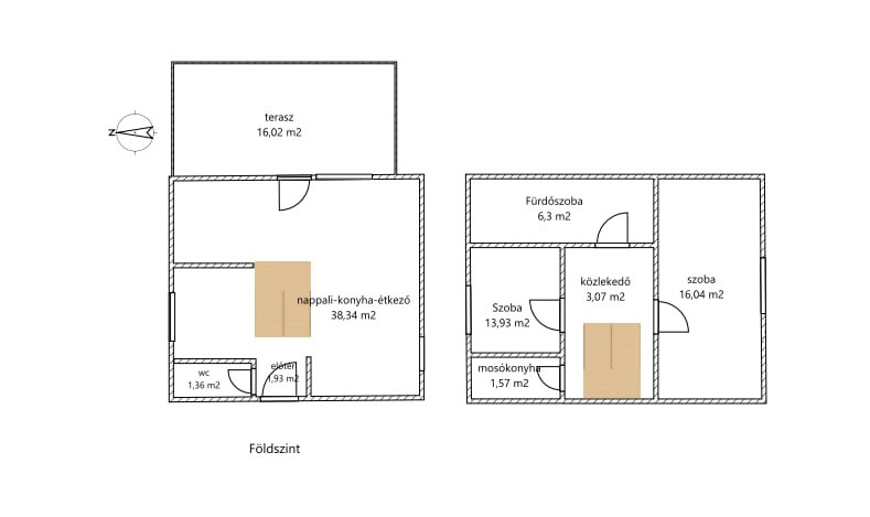
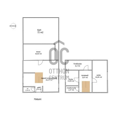
Alapterület: 83 m2
Fűtés: gáz (cirko)
Állapota: -
Szobák száma: 3
Építés éve: 2019
Szintek száma: -
Részletes leírás
Otthon, ahol a család minden tagja megtalálja a helyét – Zugló szívében, Alsórákoson

Képzeld el, ahogy a gyerekek biztonságban játszanak a saját kertedben, miközben Te egy kávéval a kezedben élvezed a nyugalmat – mindezt Budapest egyik legkedveltebb kertvárosi részén, Zuglóban!

Ez a 2019-ben épült, 83 m²-es, belső kétszintes, kertkapcsolatos otthon tökéletes választás családoknak, akik modern kényelmet, csendes környezetet és központi elhelyezkedést keresnek.

A lakás elrendezése kifejezetten családbarát:
A földszinten világos nappali–konyha–étkező, vendég-WC és közvetlen kijárat a 72 m² saját kertbe – ideális játszótérnek, grillezéshez vagy közös családi estékhez.
Az emeleten két kényelmes hálószoba, modern fürdőszoba és külön mosókonyha szolgálja a mindennapok praktikumát.

Miért jó választás családoknak?
Korszerű burkolatok, energiatakarékos nyílászárók és gépészet = alacsony fenntartási költségek
Gáz cirkó fűtés és klíma = kellemes hőmérséklet télen-nyáron
Csendes utcák, barátságos szomszédság = biztonságos, harmonikus környezet a gyerekeknek

Ez a tehermentes ingatlan valódi családi fészek, amely egyszerre nyújt modern kényelmet és meghitt otthonosságot.
További adatok
Telekterület: -
Kert mérete: -
Erkély mérete: 16 m2
Felszereltség: -
Parkolás: -
Kilátás: utcai
Egyéb extrák:  
Hirdető adatai
Hirdető neve: Otthon Centrum
Kapcsolattartó: Gáti Annamária
Hirdető telefonszáma: +36 70 469 3636
Honlap: -
 
Üzenetet küldhet a hirdetőnek, árajánlatot tehet az ingatlanra:
Az Ön neve:
Az Ön e-mail címe:
Üzenet: