Ingatlan Televízió
Ingatlan Televízió
további hirdetések
adatlap bezárása

Budapest, IX.kerület 
 

Hivatkozási szám: 5836775
Ingatlan adatai
Irányár: 95 000 000 Ft
Típus: lakás (tégla)
Kategória: eladó
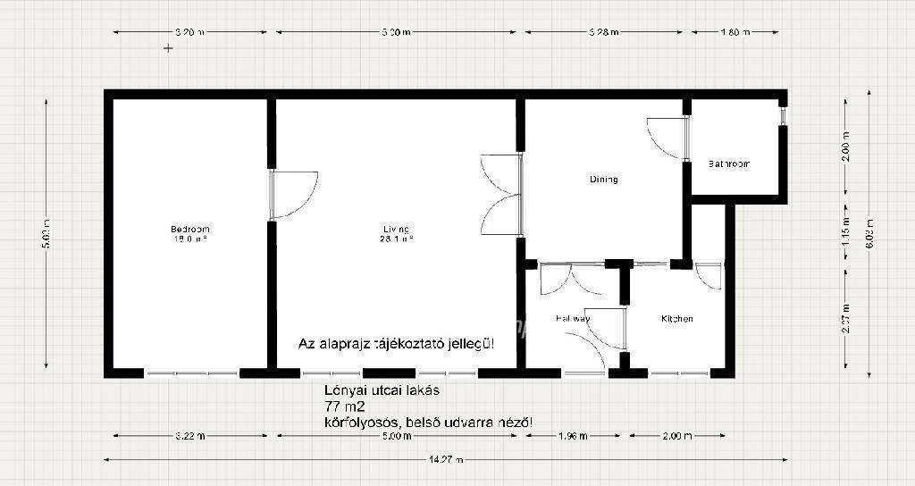
Alapterület: 77 m2
Fűtés: gáz (konvektor)
Állapota: felújítást igényel
Szobák száma: 2
Építés éve: 1950
Szintek száma: 1
Részletes leírás
IDEÁLIS VÁLASZTÁS AZ ÚJ 3 %-OS OTTHON START HITELHEZ!!!

Eladó 77 m2 lakás a Belső-Ferencvárosban, a 9. kerületben!

Kiváló lehetőség vár rád a Lónyay utcában!

A belső körfolyosós társasház 4. emeletén található délkeleti fekvésű lakás jelenleg két szobával, hallal, fürdőszobával és egy konyhával, illetve spájzzal rendelkezik.
A mellékelt átalakítási terv szerint kialakítható egy szülői és két kisebb hálószoba, illetve egy amerikai konyhás nappali. A tervezett felújítás jelentősen felértékeli az ingatlant. Ugyanakkor két külön lakás is kialakítható belőle!

A lakás mindössze egy utcára található a Duna parttól, és a Ráday utcában található vigalmi negyedtől, ahol népszerű éttermek, kávézók, és egyéb kikapcsolódási lehetőségek is vannak.

Közvetlen közelben oktatási intézmények sokasága (ELTE, Corvinus, SOTE, Pázmány Péter Katolikus Egyetem, BME, Budapest Music Center).

A Nagy Vásárcsarnok, a Nehru park, a Goethe Intézet, a Szabó Ervin könyvtár és a Bálna 5 perc, a Gellérthegy pedig 20 perc sétával érhető el.

Tömegközlekedés szempontjából is tökéletes választás, hiszen a közvetlen közelben van a 15-ös, a 115-ös buszok, illetve a 979/A éjszakai járat megállója, a 83-as troli, a 2-es villamos, a 3-as és 4-es metrók pedig séta távolságra.

Parkolni az utcán, közterületen lehetséges. A parkolás a helyi bejelentett lakosoknak kedvezményes.

Az ingatlan tehermentes, kiürített állapotban, azonnal birtokba vehető.

Megtekintés rugalmasan, kulcs nálam!

Az OTP Ingatlanpont teljes körű ügyintézéssel áll az eladók és a vevők rendelkezésére! A kínálatunkból választott ingatlan finanszírozásához kedvezményes hitel- és lízingkonstrukciókat, lakástakarék-pénztári megoldásokat kínálunk. Az adásvételi szerződés megkötéséhez igény szerint megbízható ügyvédi közreműködést biztosítunk, és segítséget nyújtunk az adásvételhez kapcsolódó ügyek intézéséhez. Amennyiben az ingatlan felkeltette az érdeklődését, a részletekkel kapcsolatban kérem keressen bizalommal!
Kérem hivatkozzon az alábbi referenciaszámra: M311151

Referencia szám: M311151
További adatok
Telekterület: -
Kert mérete: -
Erkély mérete: -
Felszereltség: -
Parkolás: -
Kilátás: -
Egyéb extrák:  
Hirdető adatai
Hirdető neve: otpip.hu - Budapest V. kerület Falk Miksa utca 7 - OTP Ingatlanpont Iroda
Kapcsolattartó: Papp-Horváth Katalin
Hirdető telefonszáma: +36-30-400-1537
Honlap: -
 
Üzenetet küldhet a hirdetőnek, árajánlatot tehet az ingatlanra:
Az Ön neve:
Az Ön e-mail címe:
Üzenet: