Ingatlan Televízió
Ingatlan Televízió
további hirdetések
adatlap bezárása

Nagyberény 
 

Hivatkozási szám: 5837493
Ingatlan adatai
Irányár: 55 000 000 Ft
Típus: ház
Kategória: eladó
Alapterület: 116 m2
Fűtés: gáz (cirko)
Állapota: felújított
Szobák száma: 4
Építés éve: 1973
Szintek száma: 1
Részletes leírás
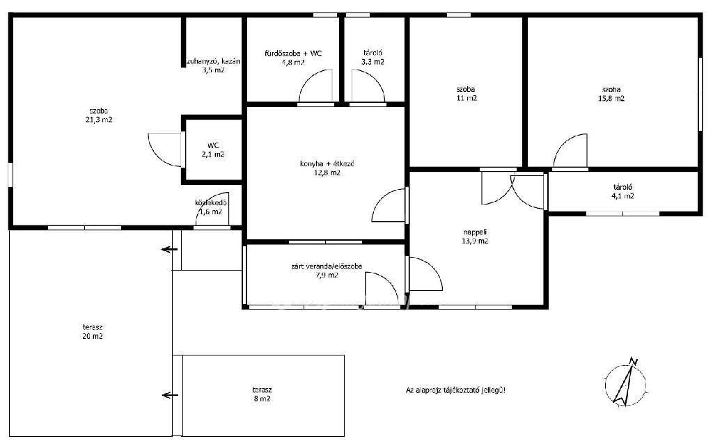
Somogy megye, Nagyberény, 116 m2 családi ház, 1,723 m2 telek eladó. Az ingatlan a település lakóövezetében helyezkedik el, csendes, nyugodt környezetben. A 3 szobás, 74 m2-es családi házhoz tartozik egy garázsból átalakított 28 m2-es, önálló lakóingatlanként nyilvántartott szoba fürdőszobával, WC-vel. A lakóteret két, összesen 28 m2-nyi terasz növeli, melyek a kertbe vezetnek. A ház fűtését és melegvíz ellátását cirko gázkazán biztosítja. A tágas belső terek átalakíthatók, a két külön lakóingatlan akár össze is nyitható, így nagy vagy akár többgenerációs családnak is kiválóan alkalmas. Az ingatlanhoz tartozó pince, illetve a tetőtér további lehetőségeket nyújt, a szobává alakított garázs fölött pedig panorámás tetőterasz teheti még értékesebbé az ingatlant. Parkolni a zárt udvaron, valamint közterületen ingyenesen lehet. Az udvart művelhető föld egészíti ki, így akár egy kisebb, önellátó gazdaság vagy falusi vendéglátás is működtethető. Az állandó lakhatáson kívül kiváló lehetőség nyaralásra vagy befektetési céllal kiadásra is. Az ingatlan hitelképes, igény esetén egyedi partnerkedvezményt biztosítunk, illetve a település besorolása alapján falusi CSOK is igényelhető. Otthon Start Hitelprogram. Bővebb információért keressen telefonon!

Referencia szám: M314333
További adatok
Telekterület: 1 723 m2
Kert mérete: -
Erkély mérete: -
Felszereltség: -
Parkolás: lakáshoz van kültéri parkoló
Kilátás: -
Egyéb extrák:  
Hirdető adatai
Hirdető neve: otpip.hu - Siófok Sió utca 10 - OTP Ingatlanpont Iroda
Kapcsolattartó: Zsitnyányi Ágnes
Hirdető telefonszáma: +36-70-316-3864
Honlap: -
 
Üzenetet küldhet a hirdetőnek, árajánlatot tehet az ingatlanra:
Az Ön neve:
Az Ön e-mail címe:
Üzenet: