Ingatlan Televízió
Ingatlan Televízió
további hirdetések
adatlap bezárása

Kápolnásnyék 
 

Hivatkozási szám: 5837597
Ingatlan adatai
Irányár: 172 900 000 Ft
Típus: lakás (tégla)
Kategória: eladó
Alapterület: 220 m2
Fűtés: gáz (cirko)
Állapota: felújított
Szobák száma: 4
Építés éve: 2006
Szintek száma: 1
Részletes leírás
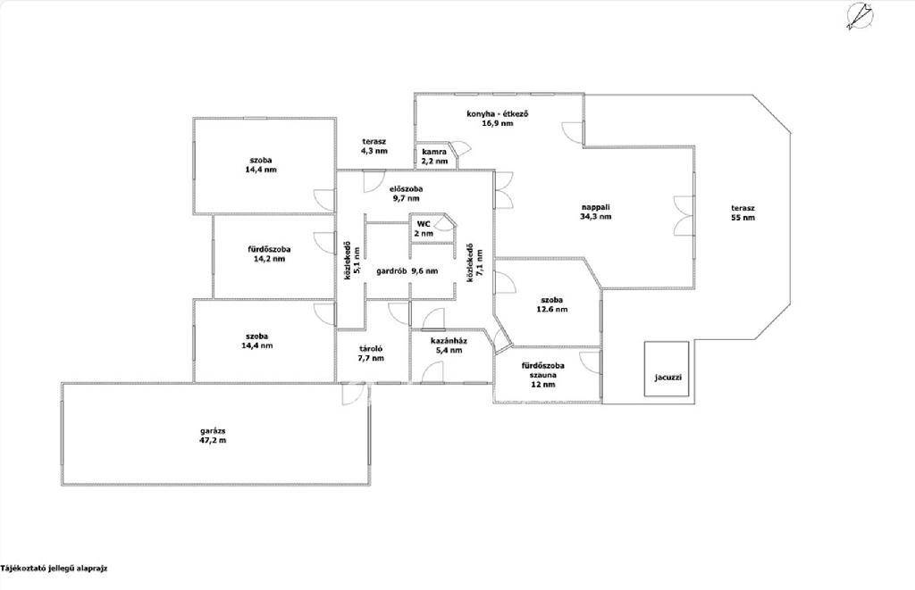
Fejér megye Kápolnásnyék 220 nm-es egyszintes családi ház eladó. A 2006-ban épült, tégla falazatú, szigetelt ingatlan a település csendes, családi házas övezetében egy 1428 nm-es gyönyörűen parkosított, folyamatosan gondozott telken helyezkedik el. A családi házat tágas terek jellemzik, amerikai konyhás nappali, 3 szoba, 1 kamra, 1 kádas fürdőszoba, 1 zuhanyzós fürdőszoba szaunával,1 külön WC, gardróbszoba, 2 tároló található benne, valamint tartozik hozzá egy 47,2 nm-es garázs, 4,3 m-es terasz és egy 55 nm-es fedett terasz jacuzzival. Az ingatlan hasznos alapterülete 167,6 nm, melyhez a garázs és a két fedett terasz fele bele lett számolva a meghirdetett alapterületbe, viszont a különálló melléképületek nem. Az ingatlan jogilag rendezett és tehermentes. A telek végében két különálló melléképület található, melyből az egyik tárolásra, a másik önálló kétszintes kisház 58 nm-es, akár kiadásra, otthoni vállalkozásnak, műhelynek, családi rendezvényeknek adhat otthon. A garázson felül a térkövezett udvaron több autó számára beállási lehetőség biztosított, a telken öntözőrendszer, bográcsozó, jacuzzi is található, Az összes nyílászáró műanyag és redőnnyel felszerelt. A fűtésről gázkazán gondoskodik, a nappaliban padlófűtéses, a többi helyiségben radiátoros hő leadással, ezenfelül a nappaliban található egy hangulatos cserépkályha, az ingatlanban pedig 3 db klíma. Az épület 6 kw-os napelemmel felszerelt. Nyugodt, biztonságos környék, átmenőforgalomtól mentes utcában, a vasútállomás 15 perces kényelmes sétával elérhető. Amennyiben felkeltette az érdeklődését, további kérdések esetén várom hívását, akár hétvégén is! Kedvezményes kamatú hitellel, teljes körű ügyintézéssel segítjük ügyfeleinket díjtalanul, az adásvétel és ingatlanátírás teljes lebonyolításával.
További adatok
Telekterület: 1 428 m2
Kert mérete: -
Erkély mérete: 59 m2
Felszereltség: -
Parkolás: garázs
Kilátás: -
Egyéb extrák:  
Hirdető adatai
Hirdető neve: otpip.hu - Székesfehérvár Palotai út 8 - OTP Ingatlanpont Iroda
Kapcsolattartó: Darnai Henrietta
Hirdető telefonszáma: +36-20-487-4399
Honlap: -
 
Üzenetet küldhet a hirdetőnek, árajánlatot tehet az ingatlanra:
Az Ön neve:
Az Ön e-mail címe:
Üzenet: