Ingatlan Televízió
Ingatlan Televízió
további hirdetések
adatlap bezárása

Nyíregyháza 
 

Hivatkozási szám: 5837645
Ingatlan adatai
Irányár: 99 500 000 Ft
Típus: lakás (tégla)
Kategória: eladó
Alapterület: 300 m2
Fűtés: gáz (cirko)
Állapota: felújított
Szobák száma: 6
Építés éve: 1980
Szintek száma: 1
Részletes leírás
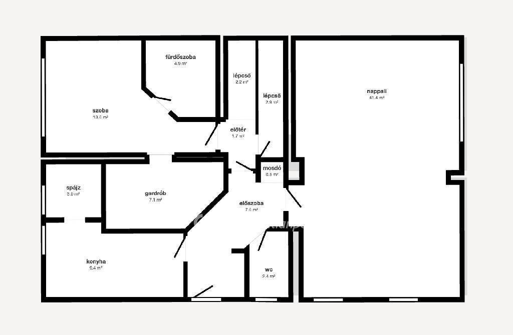
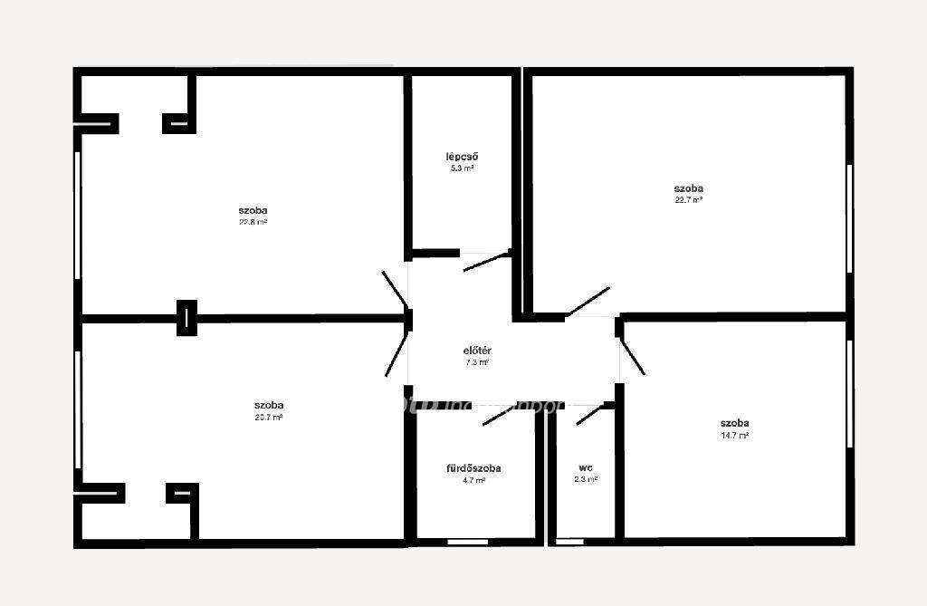
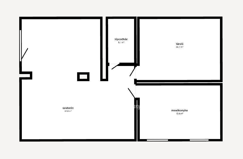
Eladó egy tágas, gyönyörű kétgenerációs családi ház Nyíregyháza kedvelt, környékén. A kiváló állapotú ingatlan egy hatalmas, 1000 négyzetméteres telken fekszik, és összesen hat szoba található benne. A ház hivatalos alapterülete 300 négyzetméter, amely tágas életteret biztosít. Az alsó szinten egy nagy nappali, egy másik szoba, valamint egy kádas, dupla mosdós fürdőszoba és egy különálló WC kapott helyet. A szobák laminált padlóval és parkettával burkoltak. A kényelmes lépcsőház vezet fel az emeletre , ahol szintén szobák és egy zuhanyzós fürdőszoba került kialakításra. Ingaltan pince szinttel is rendelkezik melyben van egy mosó szoba egy külön gardrób került kialakításra és nagy közösségi tér is van Az ingatlanhoz tartozik egy nagyméretű, négyállásos garázs is, mely tárolásra vagy vállalkozásra is kiváló. A ház azonnal költözhető állapotban van.
OTP Banki hátterünknek köszönhetően finanszírozási igényekben (pl. Otthon Start Hitelprogram, Babaváró, Falusi CSOK, CSOK Plusz, Lakáshitel, Személyi kölcsön stb.), illetve biztosítások tekintetében is díjmentesen, soron kívüli ügyintézéssel segítem ügyfeleim! Referenciaszám:M313095
További adatok
Telekterület: 1 000 m2
Kert mérete: -
Erkély mérete: -
Felszereltség: -
Parkolás: garázs
Kilátás: -
Egyéb extrák:  
Hirdető adatai
Hirdető neve: otpip.hu - Nyíregyháza Bocskai utca 18-20 - OTP Ingatlanpont Iroda
Kapcsolattartó: Tóth Zoltán
Hirdető telefonszáma: +36203903546
Honlap: -
 
Üzenetet küldhet a hirdetőnek, árajánlatot tehet az ingatlanra:
Az Ön neve:
Az Ön e-mail címe:
Üzenet: