Ingatlan Televízió
Ingatlan Televízió
további hirdetések
adatlap bezárása

Mosonmagyaróvár 
 

Hivatkozási szám: 5837687
Ingatlan adatai
Irányár: 99 900 000 Ft
Típus: lakás (tégla)
Kategória: eladó
Alapterület: 110 m2
Fűtés: gáz (cirko)
Állapota: felújítást igényel
Szobák száma: 5
Építés éve: 2005
Szintek száma: 1
Részletes leírás
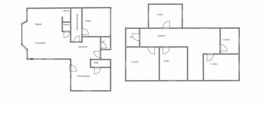
Különleges lehetőség Mosonmagyaróváron – családi ház a Halászi út nyugodt lakóövezetében

Mosonmagyaróvár egyik legcsendesebb és legkülönlegesebb részén, a Halászi úti lakóparkban eladó egy különleges, 150 m²-es, kétszintes családi ház, amely egy 720 m²-es telken helyezkedik el. Az ingatlan most arra vár, hogy új tulajdonosa saját elképzelése szerint alakítsa át álmai otthonává.

Az alsó szint tágas nappali-étkezője a ház szíve, ahol a hangulatos kandalló melegséget áraszt, miközben a család és a barátok együtt élvezhetik a teret. Innen nyílik a konyha és a spájz, valamint a 25 m²-es terasz, amely közvetlenül kapcsolódik a kerthez. A házból közvetlenül elérhető a garázs, és a külön WC is biztosítja a mindennapi kényelmet.

A felső szinten a nyugalom birodalma tárul a szemünk elé: négy hálószoba, amelyek közül kettő erkélykapcsolattal rendelkezik, valamint egy tágas fürdőszoba és külön WC szolgálja a család kényelmét. A felújítandó állapot lehetőséget ad arra, hogy az új tulajdonos a saját ízlésére formálja a tereket, miközben a masszív, 2005-ben épült téglaépítés biztosítja az otthon stabilitását.

A Halászi úti lakópark különlegessége a nyugodt, családbarát környezet, ahol a privát szféra garantált, ugyanakkor minden városi kényelem könnyen elérhető. A 720 m²-es telek pedig tökéletes teret biztosít a kertészkedéshez, pihenéshez, vagy akár egy medence kialakításához

Referencia szám: 3147
További adatok
Telekterület: 720 m2
Kert mérete: -
Erkély mérete: 25 m2
Felszereltség: -
Parkolás: lakáshoz van kültéri parkoló
Kilátás: -
Egyéb extrák:  
Hirdető adatai
Hirdető neve: movinghome.hu - Mov-Ing Home
Kapcsolattartó: Gábor Péter
Hirdető telefonszáma: +36309468094
Honlap: -
 
Üzenetet küldhet a hirdetőnek, árajánlatot tehet az ingatlanra:
Az Ön neve:
Az Ön e-mail címe:
Üzenet: