Ingatlan Televízió
Ingatlan Televízió
további hirdetések
adatlap bezárása

Hort 
 

Hivatkozási szám: 5838147
Ingatlan adatai
Irányár: 61 900 000 Ft
Típus: ház
Kategória: eladó
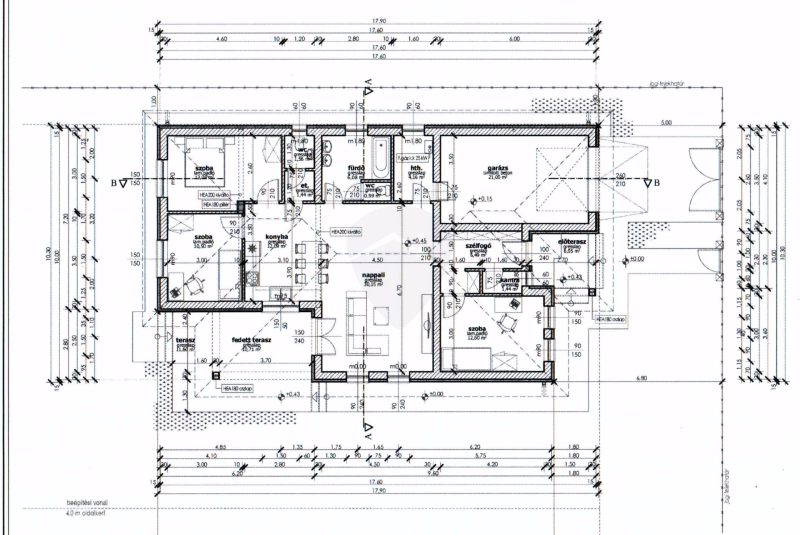
Alapterület: 148 m2
Fűtés: -
Állapota: új
Szobák száma: 4
Építés éve: 2024
Szintek száma: -
Részletes leírás
Egy modern, világos és prémium kivitelezésű ingatlant keresel a felkapott környéken? Ezt most neked álmodtuk meg! Ingatlanunk a Határ utcában található!

! Hátsókert közvetlen érintkezik az erdővel, így gyönyörű panorámával rendelkezik a telek !

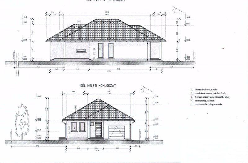
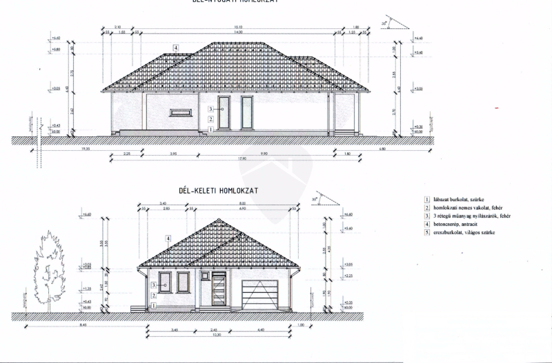
Az ingatlan lakütere 101 négyzetméter melyhez tartozik egy 21 négyzetméteres garázs közvetlen bejárattal az ingatlanba, valamint előterasz fedett terasz és terasz is.

Nagy referenciával* rendelkező helyi vállalkozó készíti, aki minden kérdés és kérés esetén rendelkezésünkre áll. Az építkezés szerződés után azonnal elkezdődik, és 6-8 hónapon belül kulcsrakész lesz.

Az ingatlan állapota új építésű, így minden részletét az Ön igényeinek megfelelően alakítottuk ki. A fűtést egy hőszívattyú fogja biztosítani, mely egy H-tarifás mérőóráról fog üzemelni.

Műszaki leírás:

• P30N+F téglafal
• 10 centis Grafitos szigetelés
• 25 centis födém szigetelés
• hat légkamrás 3 rétegű műanyag thermo nyílászárók
• antracit cserép
• elektromos kapu előkészítés
A burkolatok és a beltéri ajtók a vállalkozó által biztosított összeghatárig választhatóak:

• Hidegburkolat: 3.000.-/m2
• Melegburkolat: 3.000.-/m2
• Beltéri ajtók: 30.000.-/db
• Fürdőkád: 40.000.-
• Csaptelepek: 15000.-/db


A környék előnyeit tekintve, számos zöld terület és park található a közelben, így a természet szerelmesei számára is ideális helyszín lehet az ingatlan. Emellett a város központjában számos üzlet, szolgáltatás és étterem található, így a mindennapi élethez szükséges dolgok is könnyen elérhetőek.

Ha kérdése merülne fel az ingatlanról, vagy érdeklődne további részletek iránt, bátran keressen minket.

AZ INGATLAN CSOK+ KÉPES!
Várható befejezés 2026. 2. negyedév

Intor Ingatlan – Otthont biztonságban!

Irodánk rendelkezésére áll az értékesítés első lépésétől, egészen az utolsóig. Amennyiben valamelyik ingatlanunkat jelenlegi ingatlanja értékesítése után kívánja megvásárolni, vagy egy megbízható irodával kívánna együttműködni, amely teljeskörű ügyintézést biztosít, megfizethető áron, forduljon hozzánk bizalommal!


* referenciaképek kerülnek feltöltésre, amik az épülő tervházat mutatják kész állapotban.
További adatok
Telekterület: 669 m2
Kert mérete: 669 m2
Erkély mérete: -
Felszereltség: -
Parkolás: -
Kilátás: panorámás
Egyéb extrák:  
Hirdető adatai
Hirdető neve: Intor Ingatlan Powered By RH
Kapcsolattartó: Kollár Ábel Gergő
Hirdető telefonszáma: +36 70 412 5808
Honlap: -
 
Üzenetet küldhet a hirdetőnek, árajánlatot tehet az ingatlanra:
Az Ön neve:
Az Ön e-mail címe:
Üzenet: