Ingatlan Televízió
Ingatlan Televízió
további hirdetések
adatlap bezárása

Decs 
 

Hivatkozási szám: 5838611
Ingatlan adatai
Irányár: 22 900 000 Ft
Típus: ház
Kategória: eladó
Alapterület: 94 m2
Fűtés: gáz (konvektor)
Állapota: -
Szobák száma: 3
Építés éve: 1960
Szintek száma: -
Részletes leírás
A Tolna vármegye szívében, Decs városában található, Rákóczi utcai ingatlanunk tökéletes választás lehet Önnek, ha a csendes, mégis jól megközelíthető környezetet keresi.
Az ingatlan használt, de korához képest jó állapotának köszönhetően rengeteg lehetőséget rejt magában.
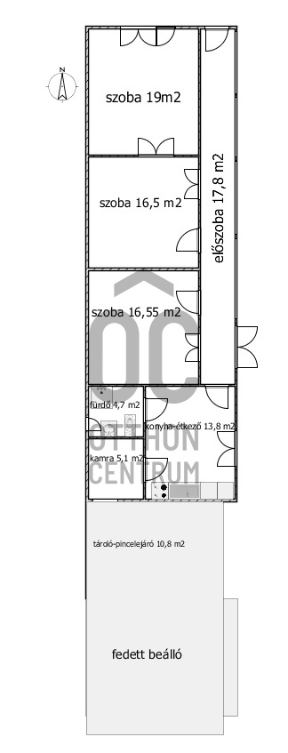
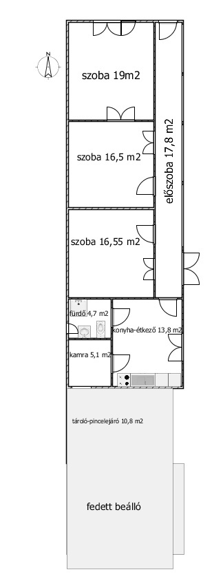
A ház alapterülete 94 négyzetméter, amely három tágas szobát foglal magában, így ideális családok számára is.
A fürdőszoba egybenyitott, zuhanyzós, ami kényelmes használatot biztosít.
A telek mérete 701 négyzetméter, így bőven van hely a kertészkedésre vagy akár egy kis pihenőhely kialakítására is.
Az ingatlan fűtése gázkonvektorral történik, ami gazdaságos fűtési megoldást nyújt a hideg hónapokban.
A tágas szobák és a világos terek barátságossá teszik a házat.
A konyha nagyobb családok számára is megfelelő méretű.
A tető cseréppel fedett.
A ház mögötti tárolóból jó állapotú és méretű pince nyílik.
A fedett autóbeálló igazán tágas.
Az ólak is megvannak, ha valaki állatokat tartana.
Az ingatlan Falusi CSOK kompatibilis, így ideális választás lehet fiatal családok számára, akik szeretnék kihasználni a támogatási lehetőségeket.
Decs városa nemcsak a természet közelségét kínálja, hanem a környék ellátottsága is kiváló.
A közeli boltok, iskolák és egészségügyi intézmények mind könnyen elérhetők, így a mindennapi élet kényelmesen zajlik.
A közlekedési lehetőségek is kedvezőek, hiszen a település jól kapcsolódik a környező városokhoz, autóval és tömegközlekedéssel egyaránt.
A csendes utcák és a barátságos szomszédság garantálja a nyugodt életvitel lehetőségét.

Ha Ön olyan ingatlant keres, amely nemcsak otthont, hanem értéknövelő befektetést is jelent, akkor ez a ház remek választás lehet. Bízzon meg bennünket, és ne habozzon kérdésekkel keresni, hiszen célunk, hogy a legjobb döntést hozhassa meg az ingatlanvásárlás során. Az ingatlanpiac folyamatosan változik, és mi itt vagyunk, hogy Önnek segítsünk a legjobb lehetőségek megtalálásában.
Időpontért keressen bátran!

Kedves Ügyfelünk, az ingatlanról videót is készítettünk. Ha ezt a hirdetést az Otthon Centrum weboldalán nézi, akkor a videóra a képek után tud kattintani. Ha egy másik weboldalon találta ezt a hirdetést, kérem nyissa meg az Otthon Centrum weboldalát, kattintson a „Regisztrációs szám keresése” menüpontra, és írja be ezt a regisztrációs számot a keresőbe: H507998 Itt meg tudja tekinteni az ingatlanról készült videót. Vagy írjon nekem, és szívesen elküldöm a videót.

Ha a vásárláshoz hitelre van szüksége, kollégánk ingyenes, bankfüggetlen pénzügyi szolgáltatással áll rendelkezésre!

családi ház vegyes jó állapot 3 szoba nagy kert gázfűtés OC H507998
További adatok
Telekterület: 701 m2
Kert mérete: 701 m2
Erkély mérete: -
Felszereltség: -
Parkolás: -
Kilátás: -
Egyéb extrák:  
Hirdető adatai
Hirdető neve: Otthon Centrum
Kapcsolattartó: Dániel Lilla Anna
Hirdető telefonszáma: +36 70 388 6296
Honlap: -
 
Üzenetet küldhet a hirdetőnek, árajánlatot tehet az ingatlanra:
Az Ön neve:
Az Ön e-mail címe:
Üzenet: