Ingatlan Televízió
Ingatlan Televízió
további hirdetések
adatlap bezárása

Budapest, III.kerület 
 

Hivatkozási szám: 5838827
Ingatlan adatai
Irányár: 350 000 000 Ft
Típus: lakás (újépítésű)
Kategória: eladó
Alapterület: 190 m2
Fűtés: -
Állapota: új
Szobák száma: 4
Építés éve: 2023
Szintek száma: -
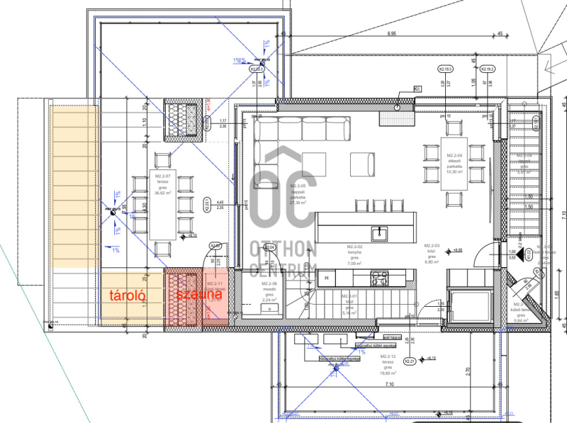
Részletes leírás
A III. kerületben, a méltán kedvelt Testvérhegy egyik csendes, nyugodt utcájában kínálunk eladásra egy új építésű, egyedileg tervezett ikerházi lakást. Ez az otthon nemcsak modern építészeti megoldásaival, hanem elhelyezkedésével is különleges: a környék zöldövezeti nyugalmat biztosít, miközben a város pezsgése is könnyen elérhető marad.

A ház letisztult, elegáns formavilága harmonikusan illeszkedik a környezetbe, a korszerű műszaki megoldások pedig hosszú távon is kényelmet és biztonságot nyújtanak. A tágas, közel 3 méteres belmagasságú nappali a nagy üvegfelületeken keresztül egész nap fényárban úszik, így a természet és a panoráma mindennapja részévé válik. Ez az otthon egyszerre nyújtja a modern városi kényelem és a természetközeli életérzés legjobb kombinációját.

Főbb jellemzők
• Hőszivattyús padlófűtés és mennyezethűtés – a kellemes hőérzetért minden évszakban
• Porotherm tégla falazat és hanggátló elválasztó falak – a nyugalom megőrzéséért
• Háromrétegű nyílászárók és 20 cm hőszigetelés – az energiahatékonyságért
• Letisztult, modern design és gondosan megtervezett alaprajz

Lokáció és környezet
A Domoszló út környéke kifejezetten családbarát, biztonságos és zöldövezeti miliőt biztosít. Az utcák csendje és a környék hangulata ideális azoknak, akik értékelik a nyugalmat, ugyanakkor fontos számukra a jó megközelíthetőség is.
• Néhány perces sétán belül elérhető óvoda, iskola és játszótér, ami kisgyermekes családok számára külön előny.
• A mindennapi bevásárlás és szolgáltatások könnyedén intézhetők a közelben.
• A belváros és a város más részei autóval és tömegközlekedéssel egyaránt gyorsan elérhetők (237-es, 260-as és 218-as buszjáratok).

Ez az ingatlan ideális választás mindazoknak, akik egy modern, értékálló és inspiráló otthont keresnek Budapest egyik legszebb zöldövezeti részén. Az új építésű lakás a panoráma, a természet közelsége és a kifinomult építészeti megoldások tökéletes harmóniáját kínálja.

Amennyiben felkeltette érdeklődését az ingatlan várom megkeresését!

Díjmentes, bankfüggetlen hiteltanácsadással támogatjuk vevő ügyfeleinket a számukra legelőnyösebb finanszírozási döntések meghozatalában.
Opcionálisan igénybe vehető kiegészítő szolgáltatásainkkal – mint ügyvédi közreműködés, energetikai tanúsítvány vagy villamos biztonsági felülvizsgálat – teljes körű szakmai támogatást nyújtunk az adásvétel folyamatának minden egyes lépésénél.
További adatok
Telekterület: -
Kert mérete: -
Erkély mérete: 56 m2
Felszereltség: -
Parkolás: -
Kilátás: kertre néző
Egyéb extrák:  
Hirdető adatai
Hirdető neve: Otthon Centrum
Kapcsolattartó: Arany Bálint
Hirdető telefonszáma: +36 70 388 6116
Honlap: -
 
Üzenetet küldhet a hirdetőnek, árajánlatot tehet az ingatlanra:
Az Ön neve:
Az Ön e-mail címe:
Üzenet: