Ingatlan Televízió
Ingatlan Televízió
további hirdetések
adatlap bezárása

Budapest, XX.kerület 
Nagysándor József utca 

Hivatkozási szám: 5839111
Ingatlan adatai
Irányár: 39 900 000 Ft
Típus: telek
Kategória: eladó
Alapterület: -
Fűtés: -
Állapota: -
Szobák száma: -
Építés éve: -
Szintek száma: -
Részletes leírás
Építési telek eladó Budapest XX. kerület, Nagysándor József utca

Eladásra kínálunk egy kiváló adottságokkal rendelkező építési telket Budapest XX. kerületének kertvárosi részén, a Nagysándor József utcában.
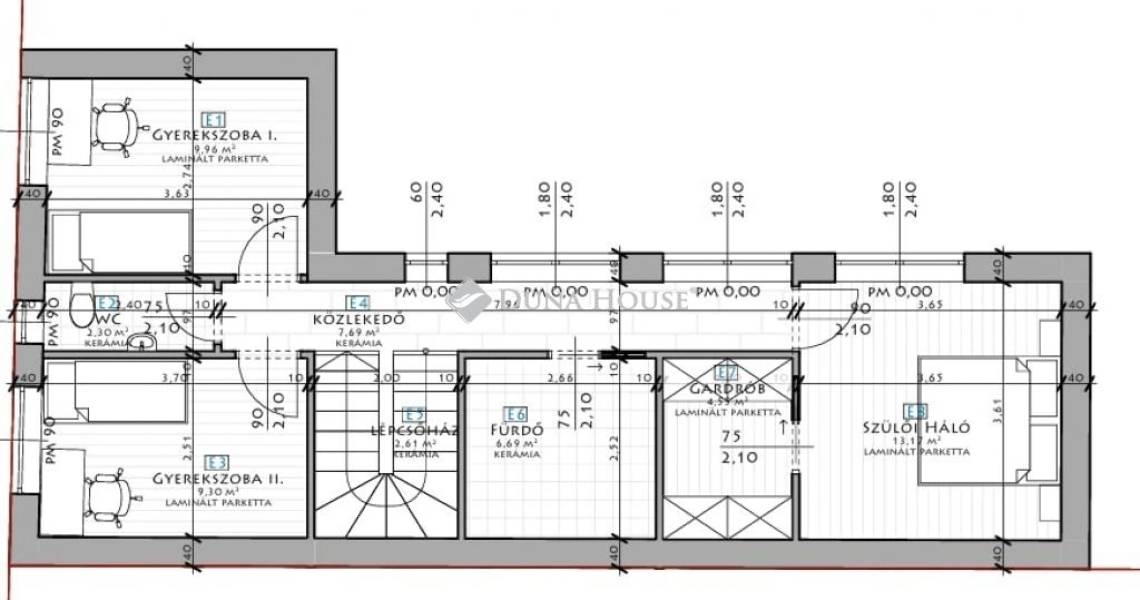
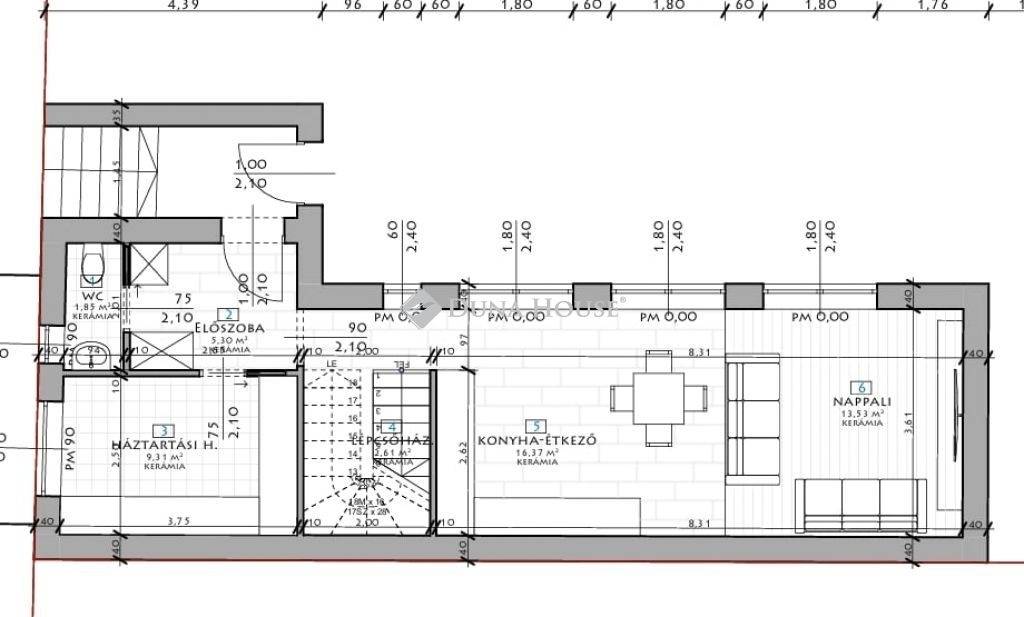
A telek érvényes építési engedéllyel rendelkezik, mely alapján egy modern, kétszintes családi ház építhető rá, 60 m² alapterületű földszinttel és 60 m² emeleti szinttel összesen 120 m² lakótérrel.

Főbb jellemzők:

Beépíthetőség: kétszintes, összesen 120 m² lakóház

Érvényes építési engedély az építkezés akár azonnal megkezdhető

Csendes, kertvárosi környezet, rendezett utcakép, barátságos szomszédság

Közművek a telek előtt / telken belül (ha pontosítani szeretnéd, bele tudom írni)

Környék, infrastruktúra:

A telek kiváló közlekedéssel rendelkezik: néhány perces sétával elérhető buszmegálló, a HÉV és vasútállomás pedig könnyen megközelíthető, így a belváros is gyorsan elérhető.
A közelben óvoda, iskola, boltok, orvosi rendelő, gyógyszertár és bevásárlási lehetőségek találhatók, így ideális választás családok számára is.

Miért érdemes megvenni?

Ez a telek remek lehetőséget kínál arra, hogy saját igényeid szerint építsd meg álmaid otthonát egy nyugodt, zöldövezeti környezetben, mégis jó közlekedési kapcsolatokkal.
A jogilag rendezett helyzet és az érvényes építési engedély pedig garantálja, hogy az építkezés zökkenőmentesen elindulhat.
A Duna House teljes kínálatával kapcsolatban segítségére tudok lenni.
Amennyiben telefonon nem ér el, kérem küldjön érdeklődő üzenetet.
Szükség esetén román nyelven is tudok segíteni

Referencia szám: TK066596
További adatok
Telekterület: 79 m2
Kert mérete: -
Erkély mérete: -
Felszereltség: -
Parkolás: -
Kilátás: -
Egyéb extrák:  
Hirdető adatai
Hirdető neve: dh.hu - Kispest
Kapcsolattartó: Balázs István Jácint
Hirdető telefonszáma: +36702349886
Honlap: -
 
Üzenetet küldhet a hirdetőnek, árajánlatot tehet az ingatlanra:
Az Ön neve:
Az Ön e-mail címe:
Üzenet: