Ingatlan Televízió
Ingatlan Televízió
további hirdetések
adatlap bezárása

Budapest, XVIII.kerület 
 

Hivatkozási szám: 5839262
Ingatlan adatai
Irányár: 165 000 000 Ft
Típus: lakás (tégla)
Kategória: eladó
Alapterület: 162 m2
Fűtés: -
Állapota: új
Szobák száma: 5
Építés éve: 2025
Szintek száma: 1
Részletes leírás
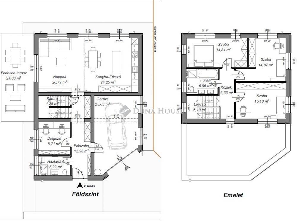
18. kerületben két szintes új építésű családi ház eladó!Budapest 18. kerület Kossuth Ferenc Telep városrészén, csendes mellékutcában, 162 nm-es új építésű családi ház hőszivattyús fűtéssel, 616 nm-es saját telken.A családi otthon magas műszaki tartalommal épül, várható befejezés: 2026. I. NEGYEDÉV.Megbízható építtető, a környéken is több referencia házzal rendelkezik.A földszinti szintre belépve tágas közlekedőből jutunk a 45 nm-es amerikai konyha nappaliba, mely a családi élet színtere lehet, ezenkívül, dolgozószoba, háztartási helyiség, tároló kerül kialakításra.A nappaliból nyílik majd egy 24 nm es fedett terasz.A földszinti szint 96 nm az emelti szint 64 nm-es.A garázs 25 nm-es alapterülettel fog rendelkezni.Az emeletre kényelmes lépcsőn jutunk fel, három teljes értékű szoba, fürdő szoba+wc várja új lakóit. A szobák méretei: 14,8 nm, 14,8 nm. 15,1 nm.Az építkezés olyan fázisban van, hogy még egyedi megoldások is kivitelezhetőek.Főbb műszaki tartalom:- 30 cm-es Porotherm főfalak és 10 cm-es Porotherm válaszfalak- 10 cm-es homlokzati szigetelés,- a padló 12 cm lépésálló hő és hangszigetelő anyagból és terv szerinti vastagságú aljzatbeton rétegből áll,- hőszivattyús fűtés, akár padlófűtéssel, akár radiátoros fűtéssel,- a hálószobában és a nappaliban klíma előkészítés készül,- a tető szigetelt lapostető, felár ellenében sátortető kérhető,- a leendő épület elektromos kiszolgálása, 3x16 A ellátással történik,- külső nyílászárók: 6 légkamrás ablakok, kívül belül fehér színű, műanyagból készülnek,- felár ellenében redőny ész szúnyogháló beépíthető.- beltéri ajtók 50.000 Ft / db árig- belső felületképzések: vakolat felületek kétszeri gletteléssel, és 2 réteg fehér falfestékkel kezelve kerülnek kialakításra, színes festés lehetséges,- hideg- és melegburkolatok 5.000 Ft / nm árig.Komoly érdeklődés esetén a MŰSZAKI TARTALOM MEGTEKINTHETŐ!Az infrastruktúra kivételes, séta távolságra bölcsőde, óvoda, általános iskola, játszótér, orvosi rendelő, posta, bevásárlási lehetőségek, pékségek.Közelben buszmegálló, gépkocsival az M0, M4, M5 pár perc alatt elérhető.A Duna House teljes kínálatával kapcsolatban forduljon hozzám bizalommal.Hitel ügyintézés garantáltan a legjobb feltételekkel és a leggyorsabban.Eladás és vétel teljes körű ügyintézése, ingyenes tanácsadás, értékbecslés, megbízható ügyvédi háttér biztosítása!Várom megtisztelő hívását a hét minden napján.

Referencia szám: HZ026669-ITV
További adatok
Telekterület: 616 m2
Kert mérete: -
Erkély mérete: 24 m2
Felszereltség: -
Parkolás: -
Kilátás: -
Egyéb extrák:  
Hirdető adatai
Hirdető neve: dh.hu - Szent Imre-kertváros
Kapcsolattartó: Zámbó Beatrix
Hirdető telefonszáma: +36704215921
Honlap: -
 
Üzenetet küldhet a hirdetőnek, árajánlatot tehet az ingatlanra:
Az Ön neve:
Az Ön e-mail címe:
Üzenet: