Ingatlan Televízió
Ingatlan Televízió
további hirdetések
adatlap bezárása

Szigetvár 
 

Hivatkozási szám: 5839697
Ingatlan adatai
Irányár: 48 600 000 Ft
Típus: lakás (tégla)
Kategória: eladó
Alapterület: 126 m2
Fűtés: gáz (cirko)
Állapota: felújított
Szobák száma: 4
Építés éve: 1980
Szintek száma: 2
Részletes leírás
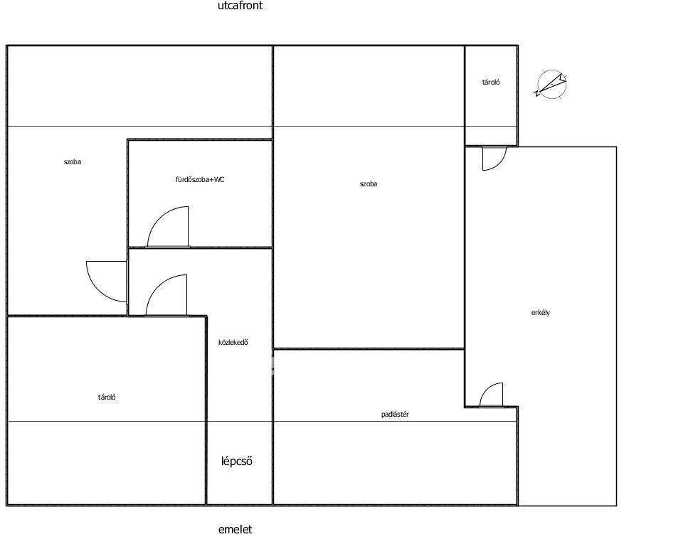
Szigetvár központjában, a Zrínyi-vártól és a Gyógyfürdőtől is sétatávolságban, egy csendes mellékutcában áll ez a gyönyörűen felújított, kétszintes családi ház. A földszinten egy nagy szoba, nappali konyha, fürdőszoba+wc és mosókonyha, a részben beépített tetőtérben két további szoba és egy újabb fürdőszoba+wc mellett egy nagyméretű fedett erkély található. A lakótér teljes alapterülete 120 négyzetméter, ebből a hasznos alapterület 108 négyzetméter. A jelenleg beépítetlen padlástéri tárolóból akár további két kisebb szoba is kialakítható.
Az összes nyílászárót műanyagra cserélték, redőnnyel, és szúnyoghálóval.
A tető egy éve lett felújítva, és szigetelve. A ház 10 centméteres külső szigetelést kapott.
A két családi házat magába foglaló, összesen 994 négyzetméteres, osztatlan közös tulajdonú ingatlan rendelkezik ügyvéd által ellenjegyzett használati megállapodással és megosztási vázrajzzal, így az eladásra kínált lakóház megfelel a kedvezményes hitel feltételeinek. Többek között az otthon start 3%-os hitelnek is.
A kizárólagos használatban álló, mintegy 200 négyzetméteres területen a lakóház mellett egy kis előkert, valamint fedett gépkocsibeálló és szerszámtároló melléképület áll, és ide tartozik még a lakóházak mögötti 114 négyzetméteres elkerített gyümölcsöskert is. A kert öntözésére fúrt kút is rendelkezésre áll.
Az épület fűtése egy kombi gázkazánnal és radiátorokkal történik, alternatív lehetőségként vegyestüzelésű kazánnal és hűtő-fűtő légkondival kiegészítve.
A lakás jelenlegi bútorzatának túlnyomó többsége megegyezés részét képezheti, ennek igény szerinti pontosítása későbbi megállapodás tárgya.

Referenciaszám: M315069

48600000 Ft

Referencia szám: M315069
További adatok
Telekterület: 314 m2
Kert mérete: -
Erkély mérete: -
Felszereltség: -
Parkolás: lakáshoz van kültéri parkoló
Kilátás: -
Egyéb extrák:  
Hirdető adatai
Hirdető neve: otpip.hu - Pécs Rákóczi út 19 - OTP Ingatlanpont Iroda
Kapcsolattartó: Vincze László György
Hirdető telefonszáma: +36-20-938-4141
Honlap: -
 
Üzenetet küldhet a hirdetőnek, árajánlatot tehet az ingatlanra:
Az Ön neve:
Az Ön e-mail címe:
Üzenet: