Ingatlan Televízió
Ingatlan Televízió
további hirdetések
adatlap bezárása

Hatvan 
 

Hivatkozási szám: 5839745
Ingatlan adatai
Irányár: 85 000 000 Ft
Típus: lakás (tégla)
Kategória: eladó
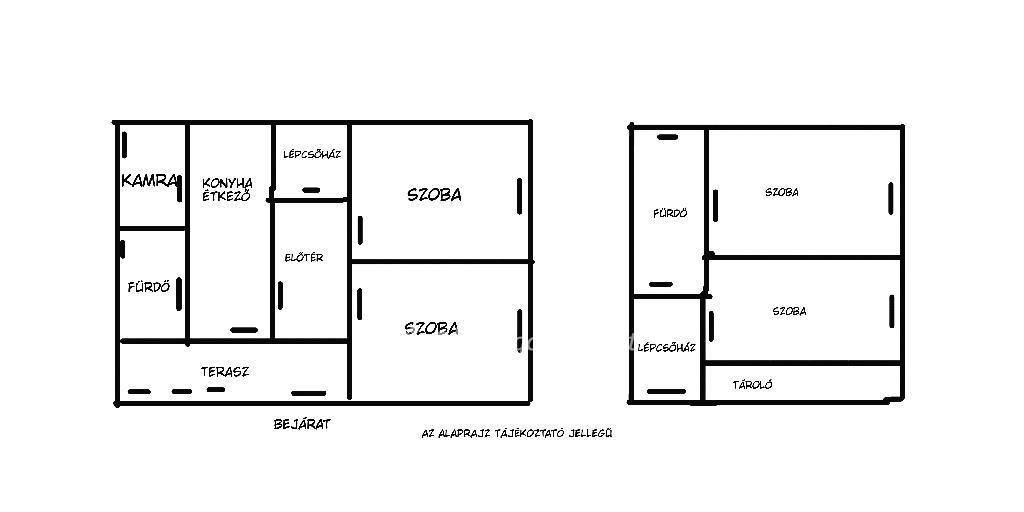
Alapterület: 140 m2
Fűtés: egyéb
Állapota: felújított
Szobák száma: 4
Építés éve: 1980
Szintek száma: 2
Részletes leírás
Heves Vármegye, Hatvan kellemes, jó környékén eladó egy tágas, 140 m2-es, jó elosztású, összkomfortos családi ház. Az ingatlan gáz és vegyes tüzelésű kazánnal felszerelt, szép állapotban található. Tetőtér beépítés elkezdődött, befejezése az új tulajdonosra vár, így saját igényei szerint alakíthatja ki. Az otthont gondozott, rendezett kert öleli körbe, ideális helyszínt biztosítva pihenéshez vagy családi programokhoz.
Ha egy jól megközelíthető, nyugodt környéken keres új otthont Hatvanban, ne hagyja ki ezt a remek lehetőséget!
További információért és megtekintésért hívjon bátran! Teljes körű ügyintézéssel állunk az eladók és a vevők rendelkezésére! A kínálatunkból választott ingatlan finanszírozásához minősített fogyasztóbarát, piaci és kedvezményes hitel- és lízingkonstrukciókat kínálunk (lakásvásárlási hitel, szabad felhasználású hitel, babaváró hitel, CSOK Plusz intézés, Otthonfelújítási Támogatás, egyéb felújítási hitelek). Az adásvételi szerződés megkötéséhez igény szerint megbízható ügyvédi közreműködést biztosítunk, és segítséget nyújtunk az adásvételhez kapcsolódó egyéb ügyek intézéséhez. Amennyiben felkeltettem érdeklődését, hívjon bizalommal!

Referencia szám: M314913-ITV
További adatok
Telekterület: 502 m2
Kert mérete: -
Erkély mérete: -
Felszereltség: -
Parkolás: garázs
Kilátás: -
Egyéb extrák:  
Hirdető adatai
Hirdető neve: otpip.hu - Eger Kertész utca 25 - OTP Ingatlanpont Iroda
Kapcsolattartó: Juhász Anita
Hirdető telefonszáma: +36709070700
Honlap: -
 
Üzenetet küldhet a hirdetőnek, árajánlatot tehet az ingatlanra:
Az Ön neve:
Az Ön e-mail címe:
Üzenet: