Ingatlan Televízió
Ingatlan Televízió
további hirdetések
adatlap bezárása

Budapest, XXII.kerület 
Dukát utca 

Hivatkozási szám: 5839882
Ingatlan adatai
Irányár: 149 900 000 Ft
Típus: lakás (tégla)
Kategória: eladó
Alapterület: 132 m2
Fűtés: -
Állapota: új
Szobák száma: 4
Építés éve: 2025
Szintek száma: 1
Részletes leírás
PRÉMIUM MINIMAL IKERHÁZ ELADÓ A 22.KERÜLETBEN! 3 MÉTERES BELMAGASSÁGGAL !
Budapest 22.kerületének Óhegy keresett részen prémium minőségű ikerház épül. Az épületek dupla fallal és légréssel elválasztva, így semmilyen hang nem zavarhatja a nyugalmát.
Szolgalmi úttal Az ingatlant a 2025-ös év kedvezményes feltételeivel tudja megvásárolni, az építkezés céges.CSOK Plusz igényelhető és Illeték kedvezmény egyaránt.
Foglalja le már most leendő otthonát 10%-al. Az építkezés hamarosan kezdetét veszi.
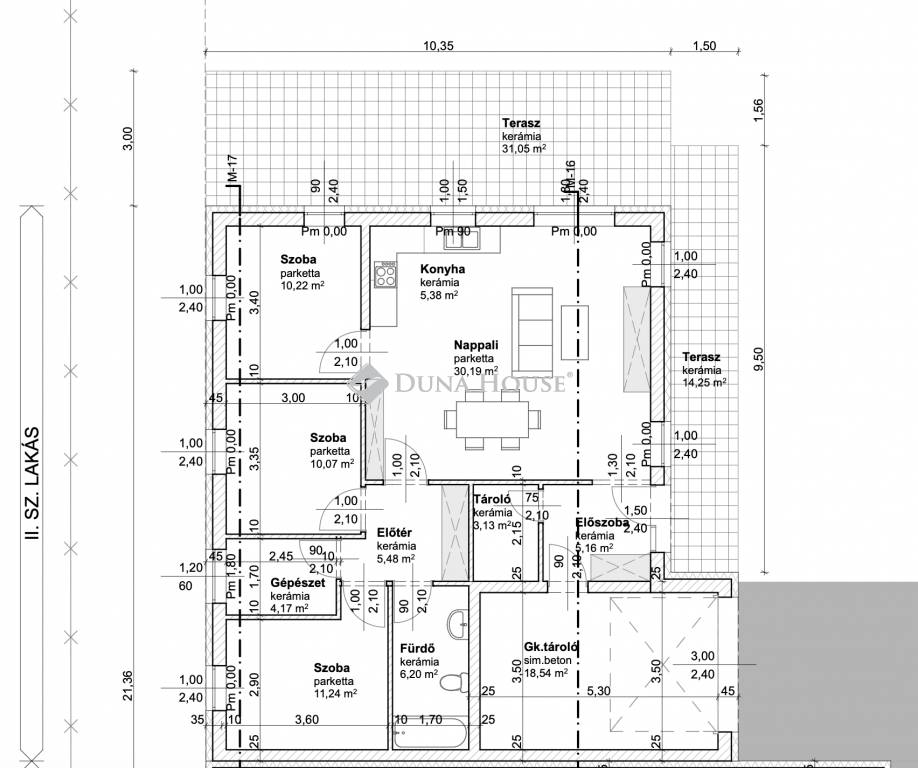
A környéken rengeteg referencia ház, amit közösen megtekinthetünk, ami segíti a döntést.Az ingatlan nettó hasznos lakótér 91,24 m2 + 18,54 m2-es 1 állásos garázs + 45,30 m2 terasz és saját 705 m2 kertkapcsolattal.
A helyiségek napfényesek, köszönhetően a jó tájolásnak és a jó méretű egyedi nyílászáróknak.
Elosztását tekintve:- Előszoba- 3 jó méretű hálószoba- Tágas amerikai konyhás nappali- Fürdőszoba- Külön mellékhelyiség- Háztartási helyiség- 45,30 m2 Terasz- 705 m2-es saját kertEXTRÁK:- Mennyezet hűtés-fűtésMűszaki adatok:- 30-as Porotherm tégla, 10 cm Ytong válaszfalak- 15 cm grafitos homlokzati szigetelés- Panasonic hőszivattyú 300 literes használati meleg víz tartállyal, minden lakásnak külön hőszivattyú berendezés- H- tarifás mérőszekrény kialakítás- Minden helyiségben padlófűtés- Betoncserép- 3 rétegű 6 légkamrás nyílászárók, kívül antracit kivitelben- 1 db autónak térkövezett kocsibeálló- Riasztó előkészítése- Szaniterek- Hideg/meleg burkolatok ( 10 000 Ft/m2 meleg: 10 000 Ft/ m2 )- Beltéri ajtók- Bejárati ajtó
Ezek mind kiemelkedő minőségben és az átlagnál magasabb áron választhatóak.
Árlista tőlem kérhető.Az építkezés megtekintése után minden a házzal kapcsolatos dokumentáció rendelkezésre áll.
Vállalkozó garantáltan megbízható, rugalmas, rengeteg referencia munkával, amit közösen megtudunk tekinteni a nagy döntés előtt.Környék rendezett, minden perceken belül elérhető. Iskola, óvoda, bevásárlási lehetőségek, MO.
Várható átadás: 2026 Tavasz További információkért hívjon bizalommal.
További adatok
Telekterület: 705 m2
Kert mérete: -
Erkély mérete: -
Felszereltség: -
Parkolás: -
Kilátás: -
Egyéb extrák:  
Hirdető adatai
Hirdető neve: dh.hu - Istenhegyi út
Kapcsolattartó: Gosztonyi Éva
Hirdető telefonszáma: +36301266992
Honlap: -
 
Üzenetet küldhet a hirdetőnek, árajánlatot tehet az ingatlanra:
Az Ön neve:
Az Ön e-mail címe:
Üzenet: