Ingatlan Televízió
Ingatlan Televízió
további hirdetések
adatlap bezárása

Budapest, XXII.kerület 
 

Hivatkozási szám: 5839884
Ingatlan adatai
Irányár: 199 900 000 Ft
Típus: lakás (tégla)
Kategória: eladó
Alapterület: 175 m2
Fűtés: -
Állapota: új
Szobák száma: 4
Építés éve: 2026
Szintek száma: 1
Részletes leírás
PRÉMIUM MINIMAL IKERHÁZ ELADÓ A 22.KERÜLETBEN! PANORÁMÁS TERASSZAL !

Budapest 22.kerületének Óhegy keresett részen prémium minőségű ikerház épül.
Az épületek dupla fallal és légréssel elválasztva, így semmilyen hang nem zavarhatja a nyugalmát.
Szolgalmi úttal
Az ingatlant a 2026-os év kedvezményes feltételeivel tudja megvásárolni, az építkezés céges. CSOK Plusz igényelhető és Illeték kedvezmény egyaránt.Foglalja le már most leendő otthonát 10%-al.
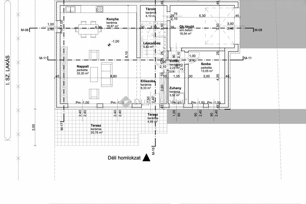
Az építkezés hamarosan kezdetét veszi. A környéken rengeteg referencia ház, amit közösen megtekinthetünk, ami segíti a döntést.Az ingatlan nettó hasznos területe 130,58 m2 + 18,54 m2 garázs, 3 db terasz 553 m2 kertkapcsolattal.
A helyiségek napfényesek, köszönhetően a jó tájolásnak és a jó méretű egyedi nyílászáróknak.
Elosztását tekintve:
Földszint: - Előszoba- 1 jó méretű hálószoba- Tágas , 52 m2-es amerikai konyhás nappali- Fürdőszoba- Tároló- 1 állásos garázs /kérhető szobának is /- 20,76 m2-es terasz- 553 m2-es saját kert

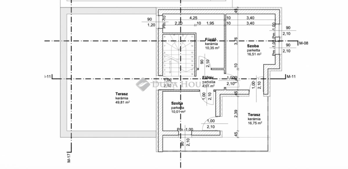
Emelet:- 2 szoba. mindegyik szoba hangulatos terasszal / 49,81 m2 és egy 16,75 m2-es/, ahonnan hangulatos panoráma tárul elénk - Fürdőszoba

EXTRÁK:- Mennyezet hűtés-fűtés- Hővisszanyerős szellőztető berendezés- Elektromos alumínium redőnyökMűszaki adatok:- 30-as Porotherm tégla, 10 cm Ytong válaszfalak- 15 cm grafitos homlokzati szigetelés- Panasonic hőszivattyú 300 literes használati meleg víz tartállyal, minden lakásnak külön hőszivattyú berendezés- H- tarifás mérőszekrény kialakítás- Minden helyiségben padlófűtés- Betoncserép- 3 rétegű 6 légkamrás nyílászárók, kívül antracit kivitelben- 2 db autónak kocsibeálló- Riasztó előkészítése- Szaniterek- Hideg/meleg burkolatok ( 10 000 Ft/m2 meleg: 10 000 Ft/ m2 )- Beltéri ajtók ( 100 000 Ft/ db )- Bejárati ajtó
Ezek mind kiemelkedő minőségben és az átlagnál magasabb áron választhatóak. Árlista tőlem kérhető.
Az építkezés megtekintése után minden a házzal kapcsolatos dokumentáció rendelkezésre áll.
Vállalkozó garantáltan megbízható, rugalmas, rengeteg referencia munkával, amit közösen megtudunk tekinteni a nagy döntés előtt.
Környék rendezett, minden perceken belül elérhető. Iskola, óvoda, bevásárlási lehetőségek, MO.
Várható átadás: 2026 Július
További információkért hívjon bizalommal.
Szeifried Évi 30/867-2418
További adatok
Telekterület: 553 m2
Kert mérete: -
Erkély mérete: 92 m2
Felszereltség: -
Parkolás: -
Kilátás: -
Egyéb extrák:  
Hirdető adatai
Hirdető neve: dh.hu - Érd, Riminyáki út
Kapcsolattartó: Szabó Nikolett
Hirdető telefonszáma: +36305137379
Honlap: -
 
Üzenetet küldhet a hirdetőnek, árajánlatot tehet az ingatlanra:
Az Ön neve:
Az Ön e-mail címe:
Üzenet: