Ingatlan Televízió
Ingatlan Televízió
további hirdetések
adatlap bezárása

Budapest, XX.kerület 
 

Hivatkozási szám: 5840062
Ingatlan adatai
Irányár: 79 000 000 Ft
Típus: ház
Kategória: eladó
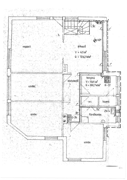
Alapterület: 98 m2
Fűtés: gáz (cirko)
Állapota: -
Szobák száma: 4
Építés éve: 1930
Szintek száma: -
Részletes leírás
Ha tudod értékelni a jó ár-teljesítmény viszonyt, kicsit unod a 1,5-2milliós négyzetméter-árakat, de szeretnél egy jó fekvésű, azonnal költözhető, világos, tágas apartmant, akkor ezt a 98 nm-es, négy szobás lakást Budapest 20. kerületében, Pacsirtatelepen neked találták ki!
A tetőtér beépíthető, ha szeretnél egy világos műtermet, bármikor kialakíthatod.
Az ingatlanhoz tartozik egy 14 nm-es terasz, egy saját kertrész, és egy szaletli is, ahol élvezheted a napsütést, a friss levegőt, miközben a kertkapcsolatos lakás előnyeit kihasználod.
Az ingatlan fűtése gáz (cirko), a hűtésről pedig klíma gondoskodik, így a kényelmed garantált minden évszakban.
A környék ellátottsága kiváló, hiszen a közeli boltok, éttermek és szolgáltatások mind könnyen elérhetőek. A központi elhelyezkedésnek köszönhetően a közlekedés is kitűnő, így gyorsan elérheted a város többi részét autóval vagy tömegközlekedéssel egyaránt. A buszmegállók és a villamos megállók csak pár perc sétára találhatóak, így a napi ingázás sem jelenthet problémát. A környék csendes és biztonságos, ideális helyszín lehet fiataloknak, pároknak vagy kisállattal költözőknek is.
További adatok
Telekterület: 714 m2
Kert mérete: 714 m2
Erkély mérete: 14 m2
Felszereltség: -
Parkolás: -
Kilátás: -
Egyéb extrák:  
Hirdető adatai
Hirdető neve: Otthon Centrum
Kapcsolattartó: Válenti Béla
Hirdető telefonszáma: +36 70 454 3450
Honlap: -
 
Üzenetet küldhet a hirdetőnek, árajánlatot tehet az ingatlanra:
Az Ön neve:
Az Ön e-mail címe:
Üzenet: