Ingatlan Televízió
Ingatlan Televízió
további hirdetések
adatlap bezárása

Makó 
 

Hivatkozási szám: 5840428
Ingatlan adatai
Irányár: 59 900 000 Ft
Típus: lakás (tégla)
Kategória: eladó
Alapterület: 60 m2
Fűtés: házközponti egyedi méréssel
Állapota: -
Szobák száma: 2
Építés éve: 1980
Szintek száma: -
Részletes leírás
Tisztelt Érdeklődő!
Makón, a Liget Lakóparkban jelenleg is zajlanak azok az átalakítási és felújítási munkálatok, amelyek egy teljesen megújult, modern földszinti lakást fognak eredményezni! Ez azt jelenti, hogy Ön lesz az elsők között, aki birtokba veheti ezt a világos, praktikus elrendezésű otthont – vadonatúj állapotban.
Az ingatlan a Liget utcában, egy zárt lépcsőházas, mindössze 14 lakásos társasházban található. A belváros autóval alig 3 perc, kerékpárral 5 perc, gyalog pedig körülbelül 17 perc alatt megközelíthető, így minden fontos hely könnyen elérhető. Bevásárlási lehetőségek, óvoda, iskola és buszmegálló néhány száz méterre található, ami a mindennapokat igazán kényelmessé teszi.
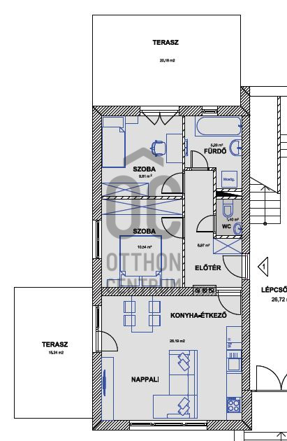
A 60 m²-es lakás kialakítása két szobát, egy nappali–konyha–étkező részt, előteret, kádas fürdőszobát és külön WC-t foglal magában. A belső burkolatok megújulnak: a szobákban laminált padló, míg az előtérben és a vizesblokkokban járólap kerül elhelyezésre. A lakáshoz két kertkapcsolatos terasz tartozik – az egyik 15,24 m²-es, a nappali–konyha–étkezőből nyílik, a másik pedig 20,18 m²-es, és a szobából közelíthető meg – így a szabadtéri pihenés egész évben adott lesz.
A lakás bútorozatlanul, beépített gépek nélkül kerül átadásra, de a szükséges kiállások és csatlakozási pontok előre kialakításra kerülnek, így az új tulajdonos könnyedén berendezheti saját ízlése szerint. A teljes áram-, víz- és csatornahálózat új, a gáz nincs bekötve a lakásba. A fűtés házközponti, gázzal üzemelő rendszerrel történik hőfokszabályzós radiátorokon keresztül, amely lakásonként egyedi hőmennyiség-mérőkkel van ellátva, így minden lakó saját fogyasztása után fizet. A melegvizet korszerű, energiahatékony okos bojler szolgáltatja. A lakásban klímaberendezés kiépítése is megtörténik, a műanyag, háromrétegű hőszigetelt nyílászárók pedig a hatékony működést garantálják.
A parkolás az utcán díjmentes, de igény esetén a telekhatáron belül külön költségért saját parkolóhely is vásárolható. A társasház udvarában kerékpártároló áll rendelkezésre.
A munkálatok befejezése után, legkésőbb 2026.05.31-ig a lakás birtokba vehető. Az alaprajzokon feltüntetett négyzetméterek tájékoztató jellegűek, a végső négyzetméterek kisebb mértékben változhatnak.
A részletes műszaki tartalomról és a fizetési ütemezésről irodánkban adunk bővebb tájékoztatást.
Ne maradjon le erről az új otthonról – hívjon most, vagy foglaljon időpontot személyes találkozóra!

Makóról bővebben itt: http://mako.hu/makoi-seta/

Legyen tisztában pénzügyeivel, mielőtt elkötelezi magát! Ebben díjmentesen az Ön rendelkezésére áll bankfüggetlen hitelközvetítőnk.
Vevőinket profi és kedvező díjazású ügyvédi háttérrel is segítjük a szerződéskötés során.

#otthoncentrummako #makoiingatlan #eladolakas #makoeladolakas #ingatlan #otthoncentrum #ingatlanpiac #otthon #hagymatikum #forsale #oc #hitel #ocmako #biztositas #realestate #veledmindenlepesnel #homesweethome #ingatlankozvetites #almokatepitunk #koltozes #felujitottlakas
További adatok
Telekterület: -
Kert mérete: -
Erkély mérete: 35 m2
Felszereltség: -
Parkolás: -
Kilátás: utcai
Egyéb extrák:  
Hirdető adatai
Hirdető neve: Otthon Centrum
Kapcsolattartó: Lipták Tibor István
Hirdető telefonszáma: +36 70 388 6236
Honlap: -
 
Üzenetet küldhet a hirdetőnek, árajánlatot tehet az ingatlanra:
Az Ön neve:
Az Ön e-mail címe:
Üzenet: