Ingatlan Televízió
Ingatlan Televízió
további hirdetések
adatlap bezárása

Paks 
 

Hivatkozási szám: 5840501
Ingatlan adatai
Irányár: 29 900 000 Ft
Típus: lakás (tégla)
Kategória: eladó
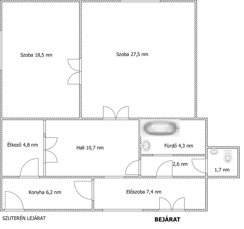
Alapterület: 114 m2
Fűtés: egyéb
Állapota: felújítást igényel
Szobák száma: 2
Építés éve: 1960
Szintek száma: -
Részletes leírás
Pakson földszinti téglalakás eladó.

Szereti a polgári jellegű ingatlaokat 3 m fölötti belmagassággal?
Pakson keres lakást, amit a saját igényének megfelelően alakíthat?
Megtalálta!
Ez az otthon fiataloknak és idősebbeknek is kitűnő választás lehet.

Az ingatlan főbb jellemzői:
- az óváros szívében található, öt lakásos társasházban ahol kedves, csendes emberek laknak
- tulajdoni lapon szereplő mérete 114 nm
- tartozik hozzá egy aknás garázs is udvarban, mely 31 nm
- fűtése vegyestüzelésű kazárnról megoldott
- nyílászárók fából készültek
- ipari áram van
- a lakás felújítandó
- a palatető már Gerard tetőlemezes fedést kapott
- lokációját tekintve csendes utcában helyezkedik el, a főutcától pár perc sétatávolságra

Ha személyesen is megtekintené akkor keressen bizalommal!

Teljes körű pénzügyi megoldások ügyintézése díjmentesen:
* Bankfüggetlen hitelcenterünk díjmentesen versenyezteti minden bank és hitelintézet ajánlatát.
* Önnek nincs más dolga, mint beszélgetni munkatársunkkal, majd a megversenyeztetett ajánlatokból kiválasztani a hosszútávon is a legmegfelelőbb konstrukciót.
* Szakértőnk több mint 20 éves szakmai tapasztalattal és egyedi igényekre szabott, fogyasztóbarát lakáshitelekkel, babaváró hitellel, teljes körű CSOK ügyintézéssel várja Önt.
* Előre egyeztetett időpontban.

Pakson földszinti téglalakás eladó
További adatok
Telekterület: -
Kert mérete: -
Erkély mérete: -
Felszereltség: -
Parkolás: -
Kilátás: utcai
Egyéb extrák:  
Hirdető adatai
Hirdető neve: Otthon Centrum
Kapcsolattartó: Baranyi Mónika
Hirdető telefonszáma: +36 70 388 5776
Honlap: -
 
Üzenetet küldhet a hirdetőnek, árajánlatot tehet az ingatlanra:
Az Ön neve:
Az Ön e-mail címe:
Üzenet: