Ingatlan Televízió
Ingatlan Televízió
további hirdetések
adatlap bezárása

Pécs 
 

Hivatkozási szám: 5840552
Ingatlan adatai
Irányár: 330 000 Ft
Típus: kereskedelmi/ipari ingatlan
Kategória: kiadó
Alapterület: 80 m2
Fűtés: -
Állapota: -
Szobák száma: -
Építés éve: -
Szintek száma: -
Részletes leírás
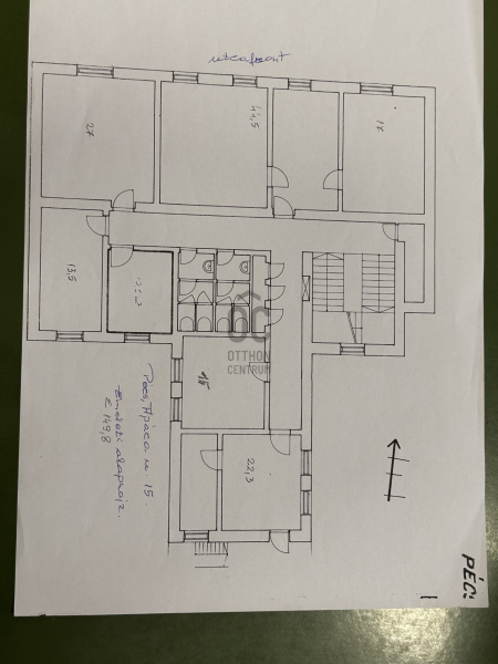
Pécs belvárosában, az Apáca utcában kiadó egy öt helyiségből álló irodarész egy rendezett, csendes, kulturált épület 1. emeletén.
Az irodák külön és egyben is bérelhetők, igény szerint.
Mindegyik helyiség világos, jól szellőző, és igényes munkakörnyezetet biztosít.

Az irodák méretei:
1️⃣ 17 m²
2️⃣ 15 m²
3️⃣ 22,3 m² – saját erkéllyel!
4️⃣ 13,5 m²
5️⃣ 12,5 m²

Összesen: 80,3 m²

Közös költség nincs!
Rezsije mindössze kb. 500 Ft/m², amely tartalmazza a fűtést, a vizet és a villanyt is
Azonnal költözhető
Bérléshez 2 havi kaució szükséges
Az épület rendezett, csendes, igényes irodaház jellegű környezet

Elhelyezkedés:
Pécs egyik legjobb lokációja – Apáca utca, a belváros szívében, mégis nyugodt környezetben.
Közelben: üzletek, éttermek, kávézók, egyetemek, buszmegállók, így gyalogosan és autóval (engedély köteles) is könnyen megközelíthető.

Kinek ajánljuk?
Ideális választás ügyvédeknek, könyvelőknek, tanácsadóknak, oktatóknak, coachoknak, online dolgozóknak vagy kisebb szolgáltató vállalkozásoknak, akik igényes, jól elhelyezkedő irodát keresnek.

A 22,3 m²-es, erkélyes iroda kiváló lehet pihenő- vagy tárgyalóhelyiségnek is.

Egyedi iroda bérlése: 55.000 – 65 000 Ft/hó + rezsi (mérettől függően)
Összesen, egyben: 330 000 Ft/hó + rezsi
További adatok
Telekterület: -
Kert mérete: -
Erkély mérete: -
Felszereltség: -
Parkolás: -
Kilátás: -
Egyéb extrák:  
Hirdető adatai
Hirdető neve: Otthon Centrum
Kapcsolattartó: Sebők Ildikó
Hirdető telefonszáma: +36 70 388 6191
Honlap: -
 
Üzenetet küldhet a hirdetőnek, árajánlatot tehet az ingatlanra:
Az Ön neve:
Az Ön e-mail címe:
Üzenet: