Ingatlan Televízió
Ingatlan Televízió
további hirdetések
adatlap bezárása

Budapest, III.kerület 
 

Hivatkozási szám: 5840714
Ingatlan adatai
Irányár: 279 900 000 Ft
Típus: lakás (tégla)
Kategória: eladó
Alapterület: 130 m2
Fűtés: -
Állapota: új
Szobák száma: 5
Építés éve: 2026
Szintek száma: 1
Részletes leírás
*** ELADÓ KERTKAPCSOLATOS, PANORÁMÁS IKERHÁZAK ÜRÖMHEGYEN ***

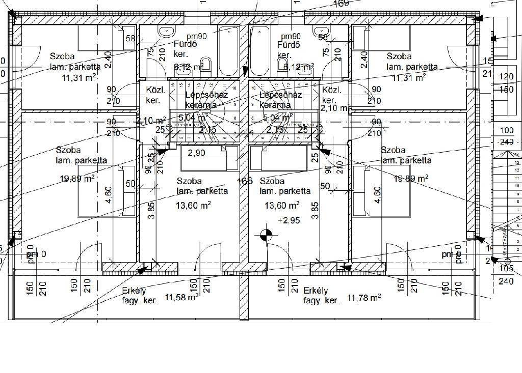
Megvételre kínálunk 4 db,új építésű, belső két szintes, nappali + 4 hálós, saját, 100 m2-es kerttel és a Hármashatár-hegyre néző lenyűgöző panorámával rendelkező ikerházakat.

Az ingatlanok lakóegységenként 111 m2-es lakótérrel és hozzá tartozó 21 m2-es terasszal és 12 nm erkéllyel rendelkeznek.

Elrendezés:
- amerikai konyhás nappali
- 4 hálószoba
- fürdőszoba
- 2 előtér
- erkély
- terasz

Minden lakás prémium műszaki tartalommal bír:

- H tarifás, hőszivattyús, energiatakarékos hűtés - fűtés
- Okos otthon előkészítés
- Klíma és biztonságvédelmi rendszer előkészítés
- 3 rétegű üvegezés, minőségi nyílászárók
- Elektromos zsaluzia (nappali) és redőnyök
- Kiváló hőszigetelés (15 cm), modern technológia

Minden lakás saját fűtött padlózatú 20 m2-es garázzsal rendelkezik, melynek ára 10 millió Ft, a vételár részét nem képezi, kötelezően megvásárolandó.

Az ingatlanok mindegyike 1/1-es, per- és tehermentes tulajdoni lappal rendelkezik, a beruházó saját tőkéből építkezik.

A megadott hirdetési ár a komplett, kulcsrakész házra vonatkozik, 20% előleggel szerződhető.

Amennyiben felkeltette érdeklődését, rugalmasan mutatjuk a hét bármely napján.
Teljeskörű hitelügyintézésben is segítéget nyújtunk!

Átadás: 2026. tavasza

Hivatkozás: M315396

Referencia szám: M315396
További adatok
Telekterület: -
Kert mérete: -
Erkély mérete: 33 m2
Felszereltség: -
Parkolás: garázs
Kilátás: -
Egyéb extrák:  
Hirdető adatai
Hirdető neve: otpip.hu - Budapest V. kerület Falk Miksa utca 7 - OTP Ingatlanpont Iroda
Kapcsolattartó: Papp-Horváth Katalin
Hirdető telefonszáma: +36-30-400-1537
Honlap: -
 
Üzenetet küldhet a hirdetőnek, árajánlatot tehet az ingatlanra:
Az Ön neve:
Az Ön e-mail címe:
Üzenet: