Ingatlan Televízió
Ingatlan Televízió
további hirdetések
adatlap bezárása

Sajószöged 
 

Hivatkozási szám: 5840752
Ingatlan adatai
Irányár: 37 900 000 Ft
Típus: ház
Kategória: eladó
Alapterület: 138 m2
Fűtés: egyéb
Állapota: felújított
Szobák száma: 3
Építés éve: 1991
Szintek száma: 2
Részletes leírás
Családi ház eladó Sajószögeden

138 m2-es hagyományos szerkezetű családi házat kínálok eladásra rendezett, családi házas környezetben.
Az 1991-ben épült ingatlan részben alápincézett, gázszilikát falazatú, a tetőn cserép van.
Fűtéséről gázkazán gondoskodik.
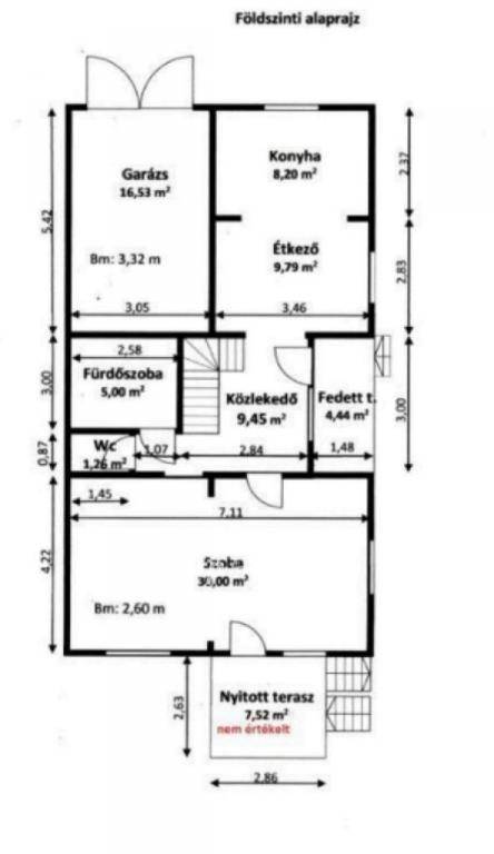
A földszinten egy nagyméretű nappali, WC, fürdő, konyha-étkező előszoba található, a tetőtéri részben egy zuhanyzós fürdőszoba WC-vel, 2 szoba és egy előtéri helyiség. A pinceszintre kintről jutunk le, itt több különálló fakk található, az egyikben műhely rész, a másikban a gázkazán és a vegyes tüzelésű kazán.
A kert hátsó részén több melléképület van, ezek nincsenek jó állapotban. A földszinti részhez építettek egy teraszt, ami a képeken is látszik, ez viszont nincs feltüntetve a térképszelvényen.
________________________________________
Főbb jellemzők:
? Alapterület: 3 szoba
? telek: 630 m2
? Építés éve: 1991
? Szerkezet: Hagyományos, részben alápincézett, földszint+tetőtér beépítés, pince
? Állapot: Közepes állapotú, felújításra szorul
? Közművek: Gázkazánnal fűtött. Melegvíz-ellátás jelenleg nincs, a villanybojler hiányzik.
? Kiegészítők: Különálló, de rossz állapotú melléképületek (állattartásra), amelyek értéket nem képviselnek.
A ház mögötti terasz a térképmásolaton nem szerepel.
________________________________________
Fontos információk:
? Az ingatlan jelenlegi állapotában nem alkalmas államilag támogatott hitel felvételére.
? Csak készpénzes vevők jelentkezését várjuk.
Ideális választás azoknak, akik egy megbízható szerkezetű házat keresnek, amit saját ízlésük szerint, felújítással alakíthatnak ki.
Amennyiben felkeltettem érdeklődését, keressen bizalommal!
AZ ingatlan csak nálunk vásárolható meg!
Hivatkozzon a referencia számra M312156

Referencia szám: M312156
További adatok
Telekterület: 630 m2
Kert mérete: -
Erkély mérete: -
Felszereltség: -
Parkolás: -
Kilátás: -
Egyéb extrák:  
Hirdető adatai
Hirdető neve: otpip.hu - Debrecen Miklós utca 5-13 - OTP Ingatlanpont Iroda
Kapcsolattartó: Zsuposné Erdős Juliánna
Hirdető telefonszáma: +36-20-218-9448
Honlap: -
 
Üzenetet küldhet a hirdetőnek, árajánlatot tehet az ingatlanra:
Az Ön neve:
Az Ön e-mail címe:
Üzenet: