Ingatlan Televízió
Ingatlan Televízió
további hirdetések
adatlap bezárása

Budapest, XVIII.kerület 
 

Hivatkozási szám: 5840944
Ingatlan adatai
Irányár: 290 000 000 Ft
Típus: lakás (tégla)
Kategória: eladó
Alapterület: 386 m2
Fűtés: gáz (cirko)
Állapota: felújított
Szobák száma: 9
Építés éve: 2000
Szintek száma: 1
Részletes leírás
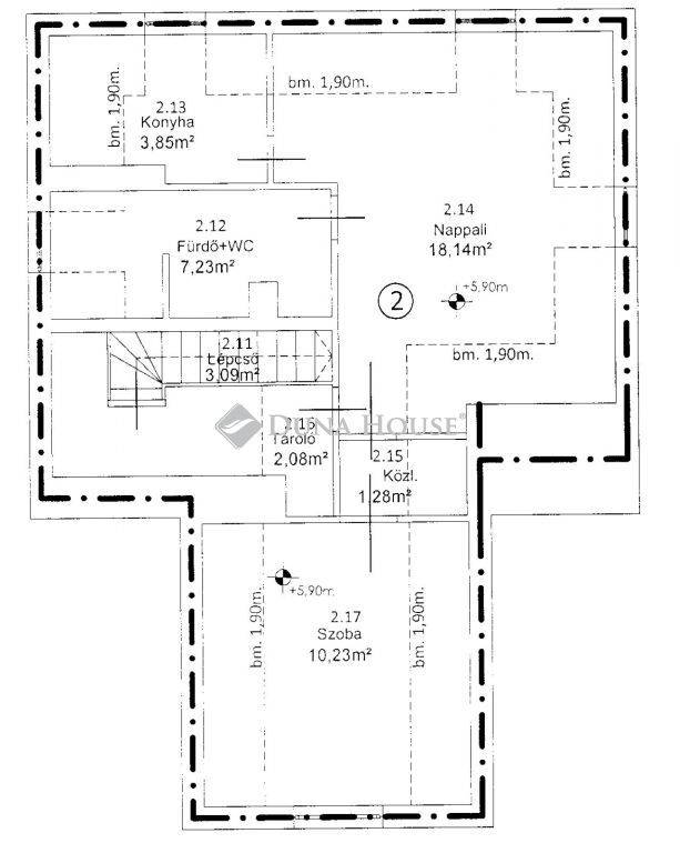
XVIII. KERÜLET BÓKAY-KERT SZÍVÉBEN!XVIII. kerület közkedvelt részén a Bókay kert szomszédságában eladó egy otthonos, hangulatos, nettó 386 nm-es, bruttó 456 nm-es, körbejárható, önálló családi ház.A családi otthon különlegessége, hogy jelen állapotában a három szinten, három teljeskörűen kialakított teljes értékű lakásból áll.Az épület nem utcafronti, körbejárható családi ház. Az ingatlan tájolását tekintve előnyös, mert ablakai mind a négy égtájra nyílnak, ezáltal világos és hangulatos az épület.Az ház teher-, per-, jog- és igénymentes, hitelezhető.A telek össz mérete 745 nm.Az ingatlanhoz séta közelben több üzlet (Lidl Spar, Aldi, DM, stb.) és általános iskola, óvoda és bölcsőde, illetve rendelőintézet valamint buszmegálló található. Bármely busszal az M3-as metróvonal 10 perc alatt elérhető. Az M0 autóút negyedórán belül elérhető.A családi otthonban kialakításra került egy földszinti, illetve egy első emeleti és a műszakilag hozzá tartozó tetőtéri részből álló önálló lakás. A ház szuterén részén egy 106 nm-es pince húzódik, mely külső és belső lépcsőtéren egyaránt megközelíthető. Vállalkozás, illetve garázs céljára egyaránt alkalmas a szuterén. Az ingatlan 2000-ben épült. A jelenleg is zajló felújítási munkák várhatóan 2025. évben illetve 2026. év első negyedévében érnek véget.A földszinti lakás hasznos alapterülete: 93 nm, a terasz: 42 nm, és a saját pince rész 33 nm.Az emeleti lakás hasznos alapterülete: 143 nm, a saját szuterén rész: 73,67 nm.A telek végében egy 44 nm-es épület található, mely választása szerint akár az Öné is lehet! Az ingatlan 1 szoba plusz amerikai konyhás nappaliból, kis előtérből és zuhanyzós fürdő WC helységből áll. A fűtést és a meleg vizet kondenzációs kazán biztosítja.Az egész épületre jellemző műszaki adatok:- az épület 15 cm szigeteléssel ellátott - a nyílászárók műanyag típusúak, redőnnyel és szúnyoghálóval ellátva- a földszinten a melegvíz ellátását villanybojler biztosítja, a fűtést 3 db klíma látja el, melyek nyáron hűtenek is- az első emeleten és a tetőtéren kondenzációs kazán biztosítja a fűtést és a meleg vizet, valamint egy napkollektor is üzemel- a villanyvezeték rézcsővel kiépített,- a vízvezetékek cseréje megtörtént,- minden helyiség felújított,- a tető zsindellyel borított,- a földszinti lakás belmagassága, 2,8 m az emeleti lakás belmagassága: 2,6 m,- a térburkolatok kövesek,- a lakásokban a szobák parkettásak, a közlekedő helyiségek és a vizesblokkok járólaposak- az utcafronton több autó parkolására van lehetőség.A konyhabútor kivitelezése mindhárom lakásban az új tulajdonos feladata!A földszint:A földszinti rész tágas közlekedőből, önállóan nyíló kettő darab keleti tájolású 15 nm-es és 12 nm-es szobából, illetve egy zuhanyzós fürdőszobából és külön WC helyiségből áll. A keleti tájolású konyhához, az egy légterű a 28 nm-es nappali tartozik, mely nyugati fekvésű. A nappali a 42 nm-es terasszal kapcsolatos. Első emelet, és tetőtér: Az első emeleten a nyugati tájolású 27 nm-es amerikai konyhás nappali mellett három szoba került kialakításra, melyből a 16 nm-es déli, a 15 nm-es és a 12 nm-es szoba déli tájolású. A zuhanyzós fürdőszoba WC-vel együtt nyugati fekvésű, illetve külön kialakításra került egy WC helyiség is. A közlekedő igen tágas, a szobák önállóan nyílnak (egyik sem zsákszoba!). Az emeleti részen két terasz is található, egyik keleti (kisebb és utcafronti), a másik nyugati tájolású (nagyobb és kertre néző), mindkettő kényelmes elrendezésű.A tetőtérben található két nagyobb és egy kisebb helyiség, melyben, konyha is kialakításra kerül.. A tetőtérben kialakításra került egy zuhanyzós fürdőszoba WC-vel együtt.Az ingatlan méretét tekintve, alkalmas több generáció összeköltözésére, vállalkozás üzemeltetésére. Amennyiben felkeltette érdeklődését, és úgy érzi, hogy a hirdetéssel rátalált ideális otthonára, további információért és megtekintéssel kapcsolatban keressen bizalommal!Jöjjön el és tekintse meg leendő otthonát, várom megtisztelő hívását!

Referencia szám: HZ085332-ITV
További adatok
Telekterület: 745 m2
Kert mérete: -
Erkély mérete: 48 m2
Felszereltség: -
Parkolás: -
Kilátás: -
Egyéb extrák:  
Hirdető adatai
Hirdető neve: dh.hu - Szent Imre-kertváros
Kapcsolattartó: Zámbó Beatrix
Hirdető telefonszáma: +36704215921
Honlap: -
 
Üzenetet küldhet a hirdetőnek, árajánlatot tehet az ingatlanra:
Az Ön neve:
Az Ön e-mail címe:
Üzenet: