Ingatlan Televízió
Ingatlan Televízió
további hirdetések
adatlap bezárása

Budapest, XX.kerület 
 

Hivatkozási szám: 5840960
Ingatlan adatai
Irányár: 59 500 000 Ft
Típus: lakás (tégla)
Kategória: eladó
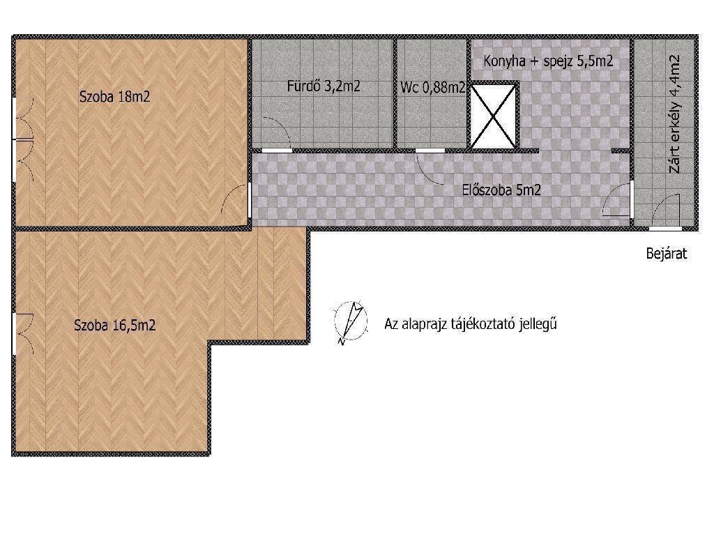
Alapterület: 51 m2
Fűtés: távfűtés
Állapota: felújított
Szobák száma: 2
Építés éve: 1987
Szintek száma: 1
Részletes leírás
Eladó 2 szobás, felújított panellakás Budapest XX. kerületének szívében, 9. emelet, remek állapot, kiváló közlekedés!

Budapest XX. kerületének központi részén kínálunk megvételre egy 51 m2-es, 9. emeleti, 2 szobás, összkomfortos lakást, mely jó műszaki állapotban van. így akár azonnal költözhető, apró ráncfelvarrással, tisztasági festéssel.

Felújítások és műszaki jellemzők:
Hőszigetelt, új modern műanyag nyílászárók, és bejárati ajtó, új hideg- és meleg burkolatok a vizes helyiségekben és a szobákban egyaránt.

Alacsony költségű távfűtés, jól szabályozható, kiszámítható:

Közös költség 14.000Ft, Rezsi havi szinten kb 20.000 Ft, télen nyáron.

A lépcsőház rendezett, tiszta, az épületben 2 lift segíti a kényelmes közlekedést.

Környék és elhelyezkedés:

A lakás kiváló elhelyezkedésű:

Bevásárlási lehetőségek (kisboltok, szupermarketek, plázák) a közelben.
Óvoda, iskola, orvosi rendelő, patika gyalogosan elérhető.

Kiváló tömegközlekedés: több busz- és villamosjárat, gyors eljutás a belvárosba.

Autósok számára az autópályák könnyen elérhetők, így agglomerációs kapcsolat is kiváló.

Kinek ajánljuk:

Ez a lakás ideális választás lehet:

fiatal pároknak első lakásként, idősebbeknek, akik jó közlekedésű, mégis nyugodt otthont keresnek.

Befektetőknek, kiadásra, a felújítási igény hiánya miatt azonnal hasznosítható. Az OTP Bankcsoport teljes körű ügyintézéssel áll az eladók és a vevők rendelkezésére! A kínálatunkból választott ingatlan finanszírozásához kedvezményes hitelkonstrukciókat kínálunk. Az adásvételi szerződés megkötéséhez igény szerint megbízható ügyvédi közreműködést biztosítunk és segítséget nyújtunk az adásvételhez kapcsolódó ügyek intézéséhez. Referenciaszám: M315810

59500000 Ft

Referencia szám: M315810
További adatok
Telekterület: -
Kert mérete: -
Erkély mérete: 4 m2
Felszereltség: -
Parkolás: -
Kilátás: -
Egyéb extrák:  
Hirdető adatai
Hirdető neve: otpip.hu - Budapest VIII. kerület József körút 72 - OTP Ingatlanpont Iroda
Kapcsolattartó: Sasaran-Kereki Katalin
Hirdető telefonszáma: +36-30-353-3495
Honlap: -
 
Üzenetet küldhet a hirdetőnek, árajánlatot tehet az ingatlanra:
Az Ön neve:
Az Ön e-mail címe:
Üzenet: