Ingatlan Televízió
Ingatlan Televízió
további hirdetések
adatlap bezárása

Székesfehérvár 
 

Hivatkozási szám: 5841046
Ingatlan adatai
Irányár: 60 000 000 Ft
Típus: lakás (tégla)
Kategória: eladó
Alapterület: 67 m2
Fűtés: gáz (konvektor)
Állapota: felújított
Szobák száma: 3
Építés éve: 1960
Szintek száma: 1
Részletes leírás
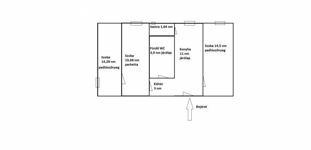
A rádió lakótelepen harmadik emeleti téglalakás eladó. A lakás a legelső szinten van. Hasznos alapterület 67 nm, ebben három szoba , konyha, előtér és egyben fürdőszoba Wc, valamint egy kamra található. A lakásban villanyvezetékek, konyha felújítása megtörtént. Beosztás a mellékelt alaprajz szerint. Közös költség 8000,-ft. Tartozik hozzá egy kb. 2 nm alapterületű külön tároló is. Az ingatlan közelében busz és vasúti megálló, valamint bevásárlási lehetőség.
Hívjon bizalommal, visszahívom.

Referencia szám: BL126-ITV
További adatok
Telekterület: -
Kert mérete: -
Erkély mérete: -
Felszereltség: -
Parkolás: utcán, közterületen
Kilátás: -
Egyéb extrák:  
Hirdető adatai
Hirdető neve: gmail.com - Borbás László Ingatlaniroda
Kapcsolattartó: Borbás László
Hirdető telefonszáma: 06702416516
Honlap: -
 
Üzenetet küldhet a hirdetőnek, árajánlatot tehet az ingatlanra:
Az Ön neve:
Az Ön e-mail címe:
Üzenet: