Ingatlan Televízió
Ingatlan Televízió
további hirdetések
adatlap bezárása

Mosonmagyaróvár 
 

Hivatkozási szám: 5841421
Ingatlan adatai
Irányár: 42 900 000 Ft
Típus: lakás (tégla)
Kategória: eladó
Alapterület: 49 m2
Fűtés: távfűtés
Állapota: felújított
Szobák száma: 2
Építés éve: 1986
Szintek száma: 1
Részletes leírás
BELVÁROSI KÉNYELEM ÉS BÚTOROZOTT OTTHON – KIVÁLÓ BEFEKTETÉS

Mosonmagyaróváron!Mosonmagyaróvár szívében, a Belvárosban kínálunk megvételre egy 49 nm-es, földszinti lakást, mely ideális választás lehet befektetőknek (könnyű bérbeadás), vagy azoknak, akik a városközpont közelségét keresik kényelmes, lakható állapotban.
Főbb Jellemzők és ElőnyökTulajdonság
Lokáció: Mosonmagyaróvár Belvárosa!
Minden szolgáltatás, üzlet, orvosi rendelő, buszmegálló sétatávolságra.Alapterület49 nm, praktikus elrendezéssel.
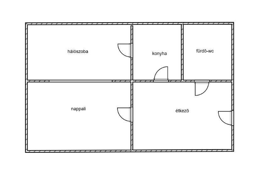
Elosztás: Nappali, hálószoba, étkező, konyha és fürdő-WC. A hálószoba és a nappali tolóajtóval választható el, ami modern és helytakarékos megoldás.
Állapot: Bútorozottan eladó! A konyhabútor (beépített főzőlappal, elszívóval), az étkező, a szobák bútorai (ágy, szekrények, íróasztal) a vételár részét képezik.
Fűtés: Távfűtés, ami az egyik legkomfortosabb és legegyszerűbb fűtési megoldás.
Épület1986-ban épült, tégla szerkezetű társasház
Közös Kert: Az épület belső, zárt, nagyon szép parkosított kerttel rendelkezik, ami nyugalmat biztosít a belvárosi nyüzsgés közepette.
Részletek a lakásról és műszaki tartalomról:
Földszinti elhelyezkedés: Kényelmes bejutás, különösen idősebbeknek vagy kisgyermekes családoknak ideális. Az étkezőből közvetlen kijárat van az udvarra.
Konyha: Jól karbantartott, szögletes elrendezésű konyhabútor.Fürdőszoba: Zuhanykabinos, WC-vel és törölközőszárító radiátorral felszerelt.
Kinek ajánljuk? Befektetőknek: Azonnal bérbe adható, bútorozott állapot és a központi elhelyezkedés garantálja a gyors megtérülést és a stabil bérlői kört (pl. egyetemisták, ingázók).
Saját célra: Első lakásnak, nyugdíjas otthonnak vagy bárkinek, aki értékeli a belváros közelségét és a gondozott, zárt udvar nyújtotta nyugalmat.Ragadja meg a lehetőséget, hogy a Belváros szívében, egy csendes oázisban legyen saját lakása!Hívjon bizalommal a megtekintés egyeztetése érdekében!

Referencia szám: 3326-ITV
További adatok
Telekterület: -
Kert mérete: -
Erkély mérete: -
Felszereltség: -
Parkolás: utcán, közterületen
Kilátás: -
Egyéb extrák:  
Hirdető adatai
Hirdető neve: movinghome.hu - Mov-Ing Home
Kapcsolattartó: Dömötör Attila
Hirdető telefonszáma: +36308505560
Honlap: -
 
Üzenetet küldhet a hirdetőnek, árajánlatot tehet az ingatlanra:
Az Ön neve:
Az Ön e-mail címe:
Üzenet: