Ingatlan Televízió
Ingatlan Televízió
további hirdetések
adatlap bezárása

Budapest, I.kerület 
 

Hivatkozási szám: 5841460
Ingatlan adatai
Irányár: 146 000 000 Ft
Típus: lakás (tégla)
Kategória: eladó
Alapterület: 92 m2
Fűtés: gáz (cirko)
Állapota: felújított
Szobák száma: 3
Építés éve: 1869
Szintek száma: 1
Részletes leírás
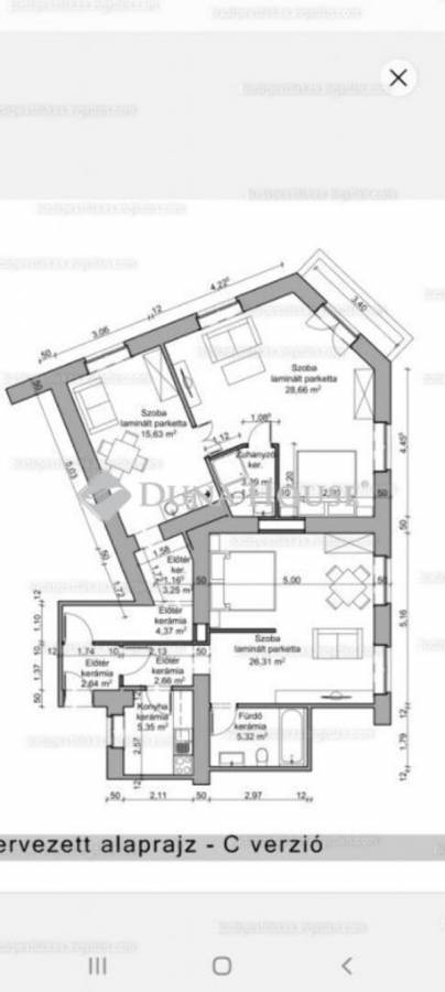
Budapest 1. kerületben a Várnegyed lábánál, eladó egy Horváth kertre panorámás 2. emeleti, 92 nm nagyságú erkélyes, jó állapotú lakás.
A ház 1869-ben épült, megőrizvén a múlt hangulatát. Belső folyosói újra lettek kövezve, falai festve.Lakói gondoskodnak arról, hogy a ház rendezett, szép állapotban legyen.
A lakás két apartmanra lett osztva, melynek bejáratai egy közös előszobából nyílnak.
A nagyobbik lakrész 47 nm, helységei: előszoba, konyha étkezővel, fürdő WC-vel, zuhannyal, és egy 29 nm -es tágas sarokszoba, erkéllyel.
A kisebbik lakrész 39 nm, helységei: előszoba, konyha, fürdő WC-vel, káddal, és egy 26 nm-es tágas szoba.
Minden szoba rendelkezik hűtő-fűtő klímával, fő fűtése: cirkó, mely 2025 év végén lett újra cserélve.
Kiváló bérbeadásra, saját lakrész és iroda kialakítására, szülők és felnövekvő gyermekük együtt, de mégis külön lakhatására.

146000000 Ft
Várom hívását. Üdvözlettel.
Glazov Judit
+36 30 633 4553
glazov.judit@dh.hu

Referencia szám: LK037988-ITV
További adatok
Telekterület: -
Kert mérete: -
Erkély mérete: 3 m2
Felszereltség: -
Parkolás: utcán, közterületen
Kilátás: -
Egyéb extrák:  
Hirdető adatai
Hirdető neve: dh.hu - Karolina út
Kapcsolattartó: Glazov Judit
Hirdető telefonszáma: +36306334553
Honlap: -
 
Üzenetet küldhet a hirdetőnek, árajánlatot tehet az ingatlanra:
Az Ön neve:
Az Ön e-mail címe:
Üzenet: