Ingatlan Televízió
Ingatlan Televízió
további hirdetések
adatlap bezárása

Budapest, XI.kerület 
 

Hivatkozási szám: 5841693
Ingatlan adatai
Irányár: 69 900 000 Ft
Típus: kereskedelmi/ipari ingatlan
Kategória: eladó
Alapterület: 99 m2
Fűtés: -
Állapota: -
Szobák száma: -
Építés éve: 1980
Szintek száma: -
Részletes leírás
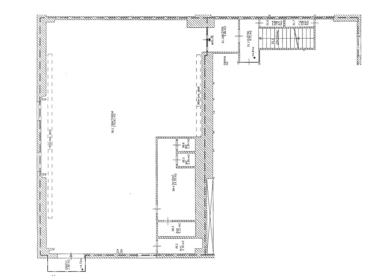
Eladó felújított, 199 m²-es táncterem Albertfalván, saját parkolóval!

Budapest XI. kerületében, Albertfalva frekventált részén, a Budafoki út közelében, ipari környezetben eladó egy 199 m²-es, 2024-ben teljeskörűen felújított táncterem 1/2 tulajdoni hányada.
Az ingatlan rendezett jogi hátterű, saját parkolóval és kiváló közlekedési kapcsolatokkal rendelkezik!

Főbb jellemzők

Alapterület: 199 m²

Tulajdoni hányad: 1/2

Felújítás éve: 2024 (új elektromos és vízvezeték-hálózat, burkolatok, nyílászárók, mosdó, tusoló, öltöző)

Felszereltség: riasztó, klíma

Tájolás: északnyugati

Parkolás: saját parkolóhely az épület előtt

Jogi helyzet: rendezett

Közlekedés és megközelíthetőség

Közlekedési szempontból kiemelkedő elhelyezkedés:

M0-s körgyűrű csomópont: 2 km

6-os főút: 1 km

M1–M7 bevezető: 5 km

Rákóczi híd budai hídfője: 3 km

Repülőtér: kb. 50 perc autóval

Tömegközlekedés: 33-as és 133E buszmegálló közvetlenül az épület előtt, további busz- és villamosjáratok 5–10 perc sétára
További adatok
Telekterület: -
Kert mérete: -
Erkély mérete: -
Felszereltség: -
Parkolás: -
Kilátás: -
Egyéb extrák:  
Hirdető adatai
Hirdető neve: GDN Ingatlanhálózat
Kapcsolattartó: Agatity Roland
Hirdető telefonszáma: +36-70-421-3991
Honlap: -
 
Üzenetet küldhet a hirdetőnek, árajánlatot tehet az ingatlanra:
Az Ön neve:
Az Ön e-mail címe:
Üzenet: