Ingatlan Televízió
Ingatlan Televízió
további hirdetések
adatlap bezárása

Egyházasdengeleg 
 

Hivatkozási szám: 5841895
Ingatlan adatai
Irányár: 25 000 000 Ft
Típus: ház
Kategória: eladó
Alapterület: 100 m2
Fűtés: gáz (konvektor)
Állapota: -
Szobák száma: 3
Építés éve: 1950
Szintek száma: -
Részletes leírás
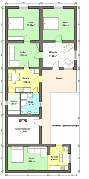
Egyházasdengeleg CSENDES, barátságos utcájában kínálunk eladásra egy vegyes falazatból (vályog+téglából) épült családi házat, amely ideális lehet középkorúak vagy fiatalok számára, akik egy nyugodt, családias környezetben szeretnének élni.

Ez a nettó 100 nm-es ingatlan tökéletes választás lehet, ha nagyobb gyereked van, aki vágyik már az önálló térre vagy egy idősebb szülővel költöznél, hiszen kialakításra került egy felújított KÜLÖN LAKRÉSZ konyhával és szobával. Az ingatlan elhelyezkedése páratlan, hiszen a telek mérete 1483 nm, ami lehetőséget biztosít a szabadban való pihenésre és a kertészkedésre. A 3 szobás elrendezés kényelmes otthont biztosít, ahol gázkonvektor és egy vegyes tüzelésű kazán gondoskodik a fűtésről. A fürdőszoba praktikus elrendezésű, tágas, újszerű vízvezetékrendszerrel, így a mindennapi használat során maximális kényelmet nyújt. A villanyvezeték rendszer és a nyílászárók egy része szintén KORSZERŰSÍTÉSRE kerültek. Új konyhabútor került beépítésre, amelyet a vételár tartalmazza. A ház költözhető állapotú, igény szerinti felújítást igényel. A telek összközművesített, minden közmű órával rendelkezik.

A természet közelsége lehetővé teszi a kirándulásokat és a szabadban eltöltött időt.

Az ingatlan TEHERMENTES, így azonnal gyorsan birtokba vehető. Igény esetén KEDVEZŐ lakáshitel ügyintézésben díjmentes segítséget nyújtok! Ha egy kényelmes otthont keresel 3-4 fő számára és fontos a külön lakrész, ezt a lehetőséget ne hagyd ki.
További adatok
Telekterület: 1 483 m2
Kert mérete: 1 483 m2
Erkély mérete: 10 m2
Felszereltség: -
Parkolás: -
Kilátás: utcai
Egyéb extrák:  
Hirdető adatai
Hirdető neve: Ingatlanmentor powered by Rock Home
Kapcsolattartó: Horváth Tibor
Hirdető telefonszáma: +36 70 467 6871
Honlap: -
 
Üzenetet küldhet a hirdetőnek, árajánlatot tehet az ingatlanra:
Az Ön neve:
Az Ön e-mail címe:
Üzenet: