Ingatlan Televízió
Ingatlan Televízió
további hirdetések
adatlap bezárása

Szigetvár 
 

Hivatkozási szám: 5842205
Ingatlan adatai
Irányár: 30 900 000 Ft
Típus: lakás (tégla)
Kategória: eladó
Alapterület: 105 m2
Fűtés: elektromos
Állapota: -
Szobák száma: 3
Építés éve: 1920
Szintek száma: -
Részletes leírás
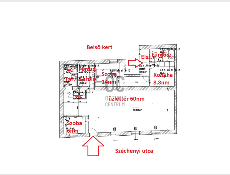
Eladásra kínálok Szigetváron lévő ingatlant!

Az ingatlan teljes körűen felújított, nettó 106 m²-es, prémium kivitelezésű.
Az ingatlanban új elektromos- és vízvezetékek és csatorna rendszer, új nyílászárók, elektromos padlófűtés.

Főbb jellemzők:
• Teljes körű műszaki és esztétikai felújítás
• Padlófűtés minden helyiségben
• Új nyílászárók
• Szerelőaknás garázs
• Külön használatú kert
• Utcára és belső udvarra is néz
• Földszintes kettő külön nyíló házrész

Tulajdonlapon 4 szobás ingatlan, amit a tulaj az alaprajzon látható módon átalakított.

Hívjon bizalommal és nézze meg személyesen az ingatlant!
További adatok
Telekterület: -
Kert mérete: -
Erkély mérete: -
Felszereltség: -
Parkolás: -
Kilátás: utcai
Egyéb extrák:  
Hirdető adatai
Hirdető neve: Otthon Centrum
Kapcsolattartó: Horváth Jennifer Laura
Hirdető telefonszáma: +36 70 412 3606
Honlap: -
 
Üzenetet küldhet a hirdetőnek, árajánlatot tehet az ingatlanra:
Az Ön neve:
Az Ön e-mail címe:
Üzenet: