Ingatlan Televízió
Ingatlan Televízió
további hirdetések
adatlap bezárása

Budapest, VI.kerület 
 

Hivatkozási szám: 5842275
Ingatlan adatai
Irányár: 135 000 000 Ft
Típus: lakás (tégla)
Kategória: eladó
Alapterület: 213 m2
Fűtés: gáz
Állapota: felújított
Szobák száma: -
Építés éve: -
Szintek száma: -
Részletes leírás
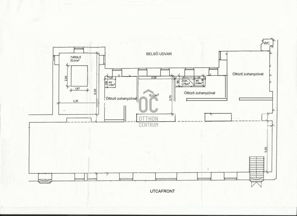
Eladó üzlethelyiség/EDZŐTEREM Terézváros szívében – Szív utca

Eladó egy 213 m²-es, igényesen felújított félszuterén üzlethelyiség Budapest belvárosában, a Heidlberr Vilmos által tervezett szecessziós bérházban.

Teljes körű felújítás 2017-ben: új nyílászárók, víz- és villanyvezetékek, gázkazán, burkolatok, valamint automata hőcserélős szellőztető rendszer.
Tágas, 110 m²-es egyterű helyiség (korábban edzőteremként használt), öltözőkkel, mosdókkal és mellékhelyiségekkel.
Két utcai bejárat, közvetlen utcai kapcsolattal – ideális bármilyen üzleti tevékenységhez.
Parkolási lehetőség az épület előtt, valamint frissen felújított zöldfelület.

Kiváló elhelyezkedés: Kodály körönd, Andrássy út és Hunyadi tér néhány perc sétára.
Társasházi albetét, víz, gáz, villany bekötve, belmagasság: 3 méter.

Ideális befektetés, irodának, galériának, fitneszstúdiónak vagy bármilyen szolgáltató tevékenységre!

Érdeklődj még ma, mielőtt lemaradsz erről az egyedi, belvárosi lehetőségről!
További adatok
Telekterület: -
Kert mérete: -
Erkély mérete: -
Felszereltség: -
Parkolás: utcán, közterületen
Kilátás: -
Egyéb extrák:  
Hirdető adatai
Hirdető neve: oc.hu - XII. kerület - Kiss János Alt. utca
Kapcsolattartó: Wodzinsky Katalin
Hirdető telefonszáma: +36707168696
Honlap: -
 
Üzenetet küldhet a hirdetőnek, árajánlatot tehet az ingatlanra:
Az Ön neve:
Az Ön e-mail címe:
Üzenet: