Ingatlan Televízió
Ingatlan Televízió
további hirdetések
adatlap bezárása

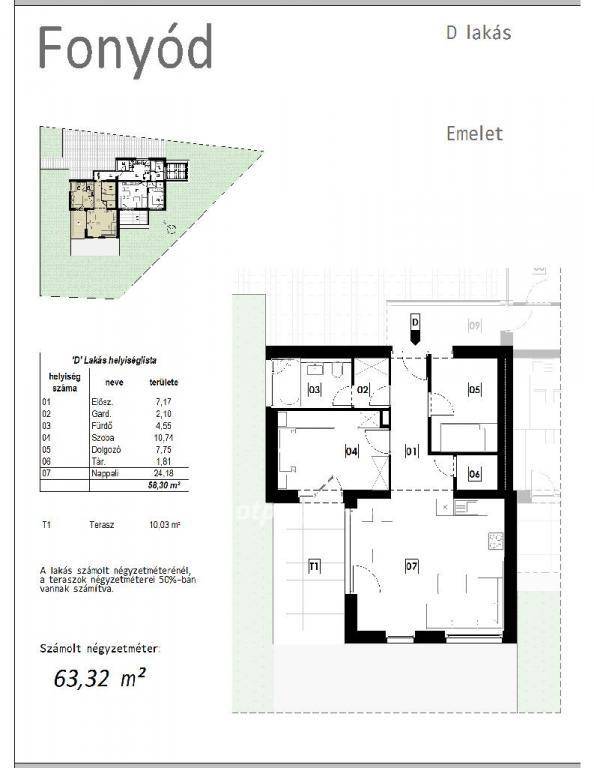
Fonyód 
 

Hivatkozási szám: 5843121
Ingatlan adatai
Irányár: 82 300 000 Ft
Típus: lakás (tégla)
Kategória: eladó
Alapterület: 63 m2
Fűtés: -
Állapota: új
Szobák száma: 1+2
Építés éve: 2025
Szintek száma: 1
Részletes leírás
Somogy vármegye Fonyód településén, nyugodt környéken, a Panoráma lakóparkban eladó egy új építésű ingatlan. A lakópark jól megközelíthető elkerített területen található. Jelenleg az épület szerkezetkész, tetőszerkezettel, azaz kb. 60 %-os készültségi fokon áll. A végső állapot kialakításába bizonyos mértékig és költségkeretig a vevőnek van beleszólása.
Fonyód központ, piac, kikötő 6-7 perc autóval.
Ha valaki gyorsan megrendeli, a karácsonyt már ott töltheti.
Megtekintés kapcsán vagy érdeklődéssel forduljanak hozzánk bizalommal!
További adatok
Telekterület: -
Kert mérete: -
Erkély mérete: -
Felszereltség: -
Parkolás: -
Kilátás: -
Egyéb extrák:  
Hirdető adatai
Hirdető neve: otpip.hu - Kaposvár Zárda utca 21 - OTP Ingatlanpont Iroda
Kapcsolattartó: Fehér András
Hirdető telefonszáma: +36703276761
Honlap: -
 
Üzenetet küldhet a hirdetőnek, árajánlatot tehet az ingatlanra:
Az Ön neve:
Az Ön e-mail címe:
Üzenet: