Ingatlan Televízió
Ingatlan Televízió
további hirdetések
adatlap bezárása

Hegyeshalom 
 

Hivatkozási szám: 5843166
Ingatlan adatai
Irányár: 49 900 000 Ft
Típus: lakás (tégla)
Kategória: eladó
Alapterület: 72 m2
Fűtés: egyéb
Állapota: felújítást igényel
Szobák száma: 2
Építés éve: 1969
Szintek száma: 1
Részletes leírás
Álmodd meg – alakítsd át!
Hatalmas telek, izgalmas lehetőségek, csendes környék
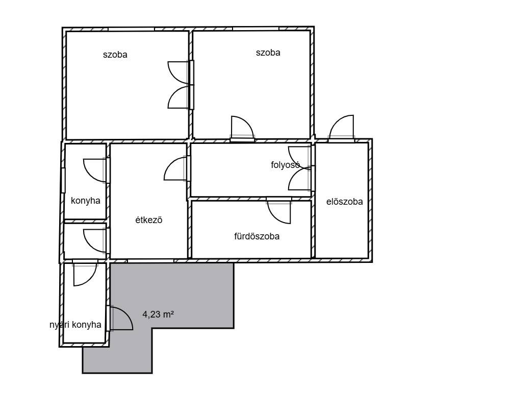
Hegyeshalom nyugodt részén, 1076 m² es telken áll ez a 72 m² es családi ház, amely tökéletes alap ahhoz, hogy belőle álmaid otthonát megvalósítsd. A ház klasszikus vidéki elrendezésű: két külön nyíló szoba, étkező, konyha, előszoba, fürdőszoba, valamint egy hasznos nyári konyha kapcsolódik hozzá. A nagy telek kiváló lehetőséget kínál kertészkedésre, játszótér kialakítására, akár garázs vagy műhely építésére is, néhány melléképület hasznos lehet tárolásra.
Alapterület: 72 m² – tégla építés, stabil szerkezet
Telek: 1076 m² – gondozott kert, gyümölcsfák, veteményes is kialakítható
Elosztás: 2 szoba + étkező + konyha + előszoba + fürdőszoba + nyári konyha
Fűtés: cserépkályha, gázcsonk az udvaron
Építés éve: 1958, részleges felújítás: 2005 – a ház belső terei korszerűsítésre szorulnak
Közművek: víz, csatorna, gázcsonk az udvaron és villany (3x15A+10A) bevezetve
A jelenlegi állapotában a ház felújítandó, így ideális választás mindenkinek, aki saját elképzelései szerint szeretné kialakítani életterét. A bővítési lehetőségeidnek köszönhetően könnyedén tervezhetsz. A 1076 m² es kertben – elfér a hobbikert, játszótér vagy akár egy kis házikó is.
Kinek ajánlom?
Fiatal pároknak, családoknak, akik szívesen alakítanák saját ízlésükre otthonukat.
Kreatív vevőknek, akik szeretik a nagy telket és a vidéki hangulatot.
Befektetőknek, akik látják a nagy telekben és az átalakítható házban rejlő potenciált.
Hegyeshalom a magyar–osztrák határnál fekszik, kiváló közlekedéssel az M1 es autópálya és vasútállomás révén. A faluban minden fontos intézmény elérhető – óvoda, iskola, bolt, posta –, Mosonmagyaróvár pedig mindössze 10 perc autóval. Ha egy olyan ingatlant keresel, amit saját ízlésed szerint újíthatsz fel, és ahol a kert is fontos szempont, ne hagyd ki ezt a lehetőséget!
Érdeklődj még ma, és nézd meg személyesen, milyen otthont varázsolhatsz ebből a házból!

Referencia szám: 3300
További adatok
Telekterület: 1 076 m2
Kert mérete: -
Erkély mérete: 8 m2
Felszereltség: -
Parkolás: -
Kilátás: -
Egyéb extrák:  
Hirdető adatai
Hirdető neve: movinghome.hu - Mov-Ing Home
Kapcsolattartó: Gábor Péter
Hirdető telefonszáma: +36309468094
Honlap: -
 
Üzenetet küldhet a hirdetőnek, árajánlatot tehet az ingatlanra:
Az Ön neve:
Az Ön e-mail címe:
Üzenet: