Ingatlan Televízió
Ingatlan Televízió
további hirdetések
adatlap bezárása

Mosonmagyaróvár 
 

Hivatkozási szám: 5843167
Ingatlan adatai
Irányár: 34 900 000 Ft
Típus: lakás (tégla)
Kategória: eladó
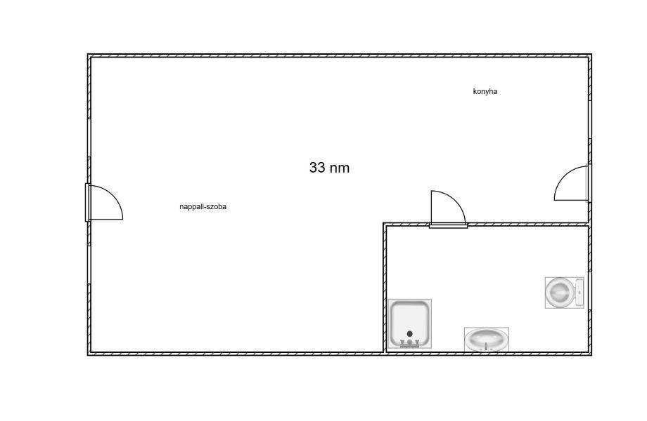
Alapterület: 33 m2
Fűtés: -
Állapota: felújított
Szobák száma: 1
Építés éve: 1920
Szintek száma: 1
Részletes leírás
Ritkaság a Belvárosban! Teljesen Felújított, 33 nm-es Földszinti Lakás 100 nm-es Saját Udvarral és Vízpartkapcsolattal Eladó!

Mosonmagyaróvár szívében, a belvárosban kínálunk eladásra egy egyedülálló lehetőséget! Egy 1920-as években épült, tégla falazatú, cserépfedéses sorházi lakás keresi új tulajdonosát, mely 2020-ban teljeskörű felújításon esett át.

A 33 nm-es, földszintes ingatlan főbb jellemzői:

Állapot: A felújítás során mindent kicseréltek: új villanyvezetékek (3x16A), valamint új, modern nyílászárók kerültek beépítésre

Elrendezés: A lakás egy tágas, 33 nm-es nappali-szobából áll, melyben egy konyhasarok kialakítására van lehetőség (a víz- és csatornakiállások előkészítve). A fürdőszoba külön helyiségben található.

Fűtés: A fűtés rendkívül gazdaságosan és rugalmasan megoldott. Beszerelésre került egy hűtő-fűtő légkondicionáló, emellett a radiátoros fűtésrendszer is teljesen kiépítésre került (a radiátorok a helyükön), már csak egy villanykazán csatlakoztatása hiányzik. A melegvizet villanybojler biztosítja.

Fürdőszoba: A fürdő modern, szürke csempével burkolt, új szaniterekkel (WC, mosdószekrény) és törölközőszárítós radiátorral felszerelt. A zuhanyzó helye kialakításra került, ide már csak egy zuhanytálca beépítése szükséges.

Kert és Parkolás: Az ingatlanhoz egy kb. 100 nm-es, saját használatú hátsó udvarrész tartozik. Ez a terület tökéletesen alkalmas több gépkocsi zárt udvari parkolására, de kialakítható itt egy privát kert vagy terasz is.

Extra: A hátsó udvar közvetlen vízpartkapcsolattal rendelkezik, ami páratlan lehetőségeket rejt magában a pihenésre, kikapcsolódásra.

Ez a szerkezetileg jó állapotban lévő, szinte teljesen befejezett lakás minimális ráfordítással azonnal költözhetővé tehető.

Elhelyezkedése és adottságai révén tökéletes választás fiataloknak első lakásként, időseknek a földszinti elhelyezkedés miatt, ingázóknak a központi elhelyezkedés végett, vagy befektetőknek bérbeadásra.

Ne maradjon le erről a belvárosi gyöngyszemről! Keressen bizalommal a megtekintéssel kapcsolatban!

Referencia szám: 3329
További adatok
Telekterület: 100 m2
Kert mérete: -
Erkély mérete: -
Felszereltség: -
Parkolás: lakáshoz van kültéri parkoló
Kilátás: -
Egyéb extrák:  
Hirdető adatai
Hirdető neve: movinghome.hu - Mov-Ing Home
Kapcsolattartó: Gábor Péter
Hirdető telefonszáma: +36309468094
Honlap: -
 
Üzenetet küldhet a hirdetőnek, árajánlatot tehet az ingatlanra:
Az Ön neve:
Az Ön e-mail címe:
Üzenet: