Ingatlan Televízió
Ingatlan Televízió
további hirdetések
adatlap bezárása

Darnózseli 
 

Hivatkozási szám: 5843169
Ingatlan adatai
Irányár: 49 900 000 Ft
Típus: lakás (tégla)
Kategória: eladó
Alapterület: 150 m2
Fűtés: gáz (cirko)
Állapota: felújított
Szobák száma: 4
Építés éve: 1970
Szintek száma: 1
Részletes leírás
Szigetközi nyugalom, kiváló infrastruktúra!

Eladásra kínálunk Darnózseli központjához közeli, mégis csendes utcában egy 150 m²-es, 4 szobás családi házat, mely egy lenyűgöző, 1.914 m²-es telken fekszik. A település Győrtől mindössze 25 perces autóútra, Mosonmagyaróvártól 13 km-re, az osztrák és szlovák határtól pedig csupán 25 km-re található.

Az ingatlan jelenleg is lakható, jó állapotú, de a benne rejlő lehetőségeknek köszönhetően kis ráfordítással egy gyönyörű, modern családi otthon válhat belőle.

A ház főbb jellemzői:

Alapterület: 150 m²

Telek mérete: 1.914 m²

Építés: 1970-es évek végén, tégla falazattal.

Állapot: Jó, karbantartott. Esztétikai és műszaki felújítása 2015-ben történt.

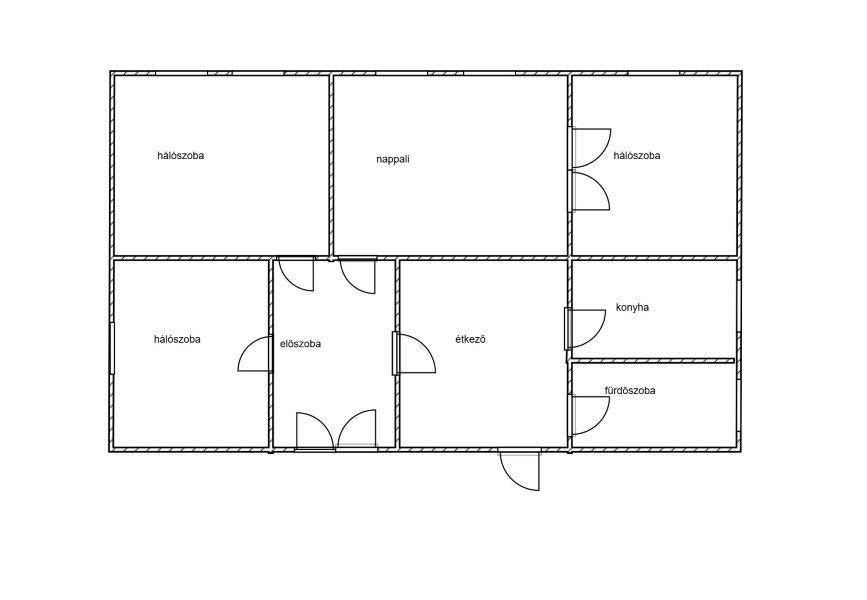
Elrendezés: Praktikus és tágas terek jellemzik. Egy fedett teraszon keresztül egy jóméretű előszobába érkezünk, ahonnan a 4 tágas hálószoba és az étkező nyílik. Az étkezőből jutunk a konyhába, a fürdőszobába és egy nagyméretű kamrába.

Fekvés: DNY-i, biztosítva a világos, napfényes tereket.

Fűtés: Kétfajta fűtési mód biztosított: gázcirkó és vegyestüzelésű kazán egyaránt rendelkezésre áll.

Nyílászárók: Hagyományos, dupla fa ablakok, melyek redőnnyel felszereltek.

Tető: Az épület cseréppel fedett, a tető és a fedélszék is jó állapotú.

A telek és melléképületek:

A hatalmas, gondozott kert igazi kincs, melyben gyümölcsfák (őszibarack, alma, ringlószilva) és szőlő terem. A kerti csap (kút) is a kert része. A telek végében egy nyárfaerdő található. Az udvarban egy régebbi építésű tároló és egy gazdasági épület is áll (utóbbi felújítást vagy bontást igényelhet). A gépkocsik parkolása az udvarban ingyenesen megoldott.

Környék és lehetőségek:

A Szigetköz és a Duna közelsége rengeteg kikapcsolódási lehetőséget kínál (horgászat, evezés, csónakázás). A lipóti termálfürdő is csupán pár kilométerre található. Az ingatlan lokációja kiemelkedő: a buszmegálló közvetlenül a ház előtt található, de sétatávolságra elérhető iskola, óvoda, bölcsőde, orvosi rendelő, bolt és kávézó is.

Finanszírozás és birtokba adás:

Az ingatlan tehermentes és a tulajdoni viszonyok rendezettek, így azonnal birtokba vehető! Falusi CSOK és Otthonfelújítási Program is igényelhető a vásárláshoz és a korszerűsítéshez.

Ne hagyja ki ezt a kiváló lehetőséget! Keressen bizalommal a megtekintéssel kapcsolatban!

Referencia szám: 3328
További adatok
Telekterület: 1 914 m2
Kert mérete: -
Erkély mérete: -
Felszereltség: -
Parkolás: lakáshoz van kültéri parkoló
Kilátás: -
Egyéb extrák:  
Hirdető adatai
Hirdető neve: movinghome.hu - Mov-Ing Home
Kapcsolattartó: Gábor Péter
Hirdető telefonszáma: +36309468094
Honlap: -
 
Üzenetet küldhet a hirdetőnek, árajánlatot tehet az ingatlanra:
Az Ön neve:
Az Ön e-mail címe:
Üzenet: