Ingatlan Televízió
Ingatlan Televízió
további hirdetések
adatlap bezárása

Budapest, I.kerület 
Attila út 

Hivatkozási szám: 5844142
Ingatlan adatai
Irányár: 185 000 000 Ft
Típus: lakás (tégla)
Kategória: eladó
Alapterület: 95 m2
Fűtés: gáz (cirko)
Állapota: felújított
Szobák száma: 3
Építés éve: 1918
Szintek száma: 1
Részletes leírás
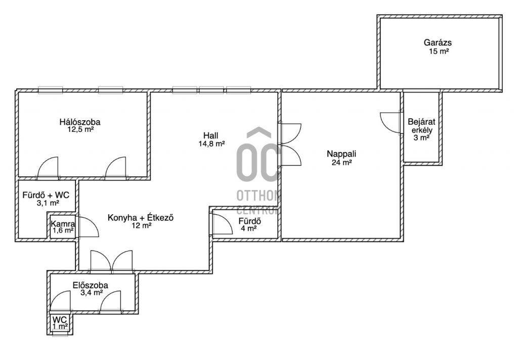
Eladó az 1. kerületben egy 2. emeleti, 3 szobás, erkélyes, világos lakás.

- Saját garázzsal, privát bejárattal és városi panorámával.
- A Budai Vár alatt, az August-udvar exkluzív épületében található a lakás.
– Lakás: 77 m²
– Saját garázs: 15 m² + 20 M Ft
– Erkély: 3 m²
– Saját pince-tároló: 6 m²
- Privát bejárat közvetlenül a garázsból.
- 3 méteres belmagasság, tágas terek, három szoba, 2 fürdőszoba, az egyik közvetlenül a hálóból.
- Erkély a Várra és a Várkertre néző panorámával.
- Világos, mégis kellemesen hűvös nyáron, meleg télen.
- Teljes körű felújítás 2020-ban – új vezetékek, tölgyfa parketta, hő- és hangszigetelt nyílászárók, modern fűtésrendszer.
- A társas ház főbejáratán keresztül, lifttel, az Attila útról.
- Közvetlenül a saját garázsból, ahonnan egyenesen a nappaliba léphetsz
- Az ingatlan teljesen berendezve eladó.
- A bútorok és berendezések kérésre az ár részét képezhetik.
- Azonnal költözhető vagy kiadható – eddig 1400 €/hó + rezsi áron lett bérbe adva.
- Csendes, zöld, mégis a város szívében.
- 2 perc séta a Ybl Miklós tér és a Várkert Bazár, miközben a környék a Budai Vár felújítási programjával folyamatosan értékelődik.
A házban kisbolt, étterem és közösségi kávézó is található.
- A garázs előtti részen további autó is parkolhat.

Amennyiben felkeltettem az érdeklődését, kérem hívjon a hét bármelyik napján!
További adatok
Telekterület: -
Kert mérete: -
Erkély mérete: 5 m2
Felszereltség: -
Parkolás: garázs
Kilátás: -
Egyéb extrák:  
Hirdető adatai
Hirdető neve: oc.hu - XI. kerület - Bicskei utca
Kapcsolattartó: Csongár István
Hirdető telefonszáma: +36703886026
Honlap: -
 
Üzenetet küldhet a hirdetőnek, árajánlatot tehet az ingatlanra:
Az Ön neve:
Az Ön e-mail címe:
Üzenet: