Ingatlan Televízió
Ingatlan Televízió
további hirdetések
adatlap bezárása

Budapest, X.kerület 
 

Hivatkozási szám: 5844240
Ingatlan adatai
Irányár: 99 490 000 Ft
Típus: lakás (tégla)
Kategória: eladó
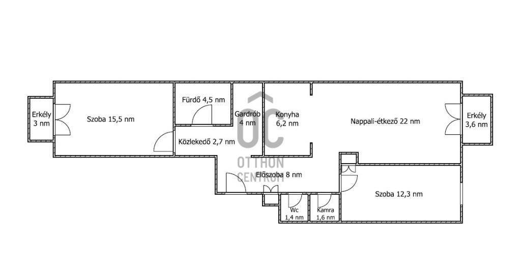
Alapterület: 79 m2
Fűtés: házközponti egyedi méréssel
Állapota: felújított
Szobák száma: 3
Építés éve: 2008
Szintek száma: 1
Részletes leírás
Eladó a Tulipán Lakókertben egy 3 szobás, 79 m²-es erkélyes, felújított lakás

Budapest X. kerületében, Kőbánya kedvelt részén, 2008-ban épült, liftes, 3 szintes rendezett társasház 1. emeletén eladó egy 79 m²-es, 3 szobás, kiváló állapotú lakás, két erkéllyel, külön WC-vel és kamrával.

Főbb jellemzők
- Alapterület: 79 m²
- Szobák száma: 3 (tágas nappali + 2 hálószoba)
- 2 db erkély
- frissen felújított
- Fűtés: házközponti kazán, egyedi méréssel, padlófűtés
- Tájolás: keleti és nyugati (utcára és belső kertre néző)

Felújítás és felszereltség:
- Teljes körű felújítás 1 éven belül (új burkolatok, fürdő, WC)
- Új, gépesített, garanciális konyhabútor
- Beépített tárolószekrények a vételárban
- Műanyag, redőnyös nyílászárók
- Kamerarendszerrel felszerelt lépcsőház, frissen festett közös területek

Társasház és közös költség
- Nagy, gondozott belső udvar játszótérrel, grillezővel
- Közös költség: kb. 25 000 Ft, fűtés + melegvíz díjával együtt
- Parkolás: utcán ingyenes, garázs és felszíni beálló vásárolható / bérelhető

Elhelyezkedés, közlekedés
Kiváló infrastruktúra: iskola, óvoda, orvosi rendelő, gyógyszertár, üzletek, kerületi központ sétatávolságra
Tömegközlekedés: busz, villamos, vasút gyalogosan elérhető

Igényes otthont keres Kőbányán?
Ez a tágas, jól alakítható, modern lakás ideális családoknak, pároknak vagy akár befektetőknek is.

Érdeklődés esetén várom hívását!

Referencia szám: H509608
Bővebb tájékoztatás vagy megtekintés esetén hívjon bizalommal a hét bármely napján!
Bekéné Müller Cintia +36 (70) 454-5086

Referencia szám: H509608-ITV
További adatok
Telekterület: -
Kert mérete: -
Erkély mérete: 6 m2
Felszereltség: -
Parkolás: utcán, közterületen
Kilátás: -
Egyéb extrák:  
Hirdető adatai
Hirdető neve: oc.hu - XVIII. kerület - Kisfaludy út
Kapcsolattartó: Bekéné Müller Cintia
Hirdető telefonszáma: +36704619826
Honlap: -
 
Üzenetet küldhet a hirdetőnek, árajánlatot tehet az ingatlanra:
Az Ön neve:
Az Ön e-mail címe:
Üzenet: