Ingatlan Televízió
Ingatlan Televízió
további hirdetések
adatlap bezárása

Mórahalom 
Hunyadi liget 

Hivatkozási szám: 5844666
Ingatlan adatai
Irányár: 32 872 000 Ft
Típus: lakás (tégla)
Kategória: eladó
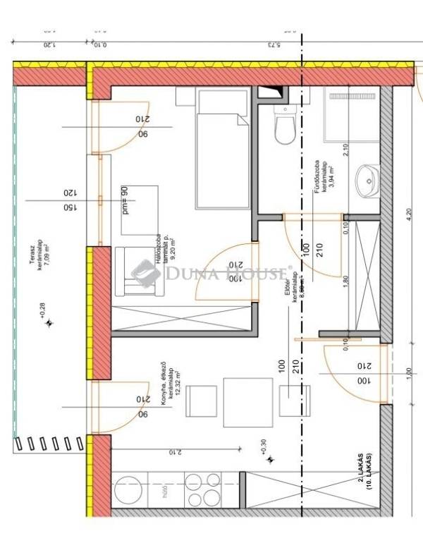
Alapterület: 32 m2
Fűtés: -
Állapota: új
Szobák száma: 1
Építés éve: 2025
Szintek száma: 1
Részletes leírás
Új építésű, hamarosan költözhető zöldövezeti lakások Mórahalmon, 55 év felettieknek!

Ez a különleges lakópark három, különálló összesen 20 lakásos energiahatékony épületből áll, ahol minden részlet az idősebb korosztály kényelmét, biztonságát és nyugalmát szolgálja.

Az általunk ajánlott megoldás nem idősotthon hanem saját tulajdonú nyugdíjas apartman közvetlenül elérhető szociális ellátás igénybevételének lehetőségével, tehát a befektetett összeg nem vész el.

A társasházakat az úgynevezett nyugdíjasházak mintájára alakítják ki, és ezen funkciót folyamatosan és tartósan biztosítani szeretnék a lakók számára. A beköltözhető alsó korhatár 55 év. A későbbiekben is csak olyan személyek tulajdonába kerülhetnek a lakások, akik ezt az életkort betöltötték.
A lakások egy, illetve két szobásak lesznek, minden lakáshoz előtér, konyha és fürdőszoba fog tartozni. A fűtést megújuló energiaforrások kiépítésével biztosítva: termálfűtéssel és talajszondás hőszivattyúval.
A társasházak épületei szerves egységben épülnek a szolgáltató központtal, ezáltal minden lakás részére biztosított lesz a nővérhívó és a központi lift használata valamint a szolgáltató központ által nyújtott egyéb szolgáltatások. Ilyenek pl.: az étkezés, demens nappali ellátás és más, térítés ellenében igénybe vehető szolgáltatások.

Miért jó itt lakást venni?
A szolgáltató központ közösségi terei lehetőséget biztosítanak a társas együttlétek, közösségi programok szervezésére és kapcsolatot jelentenek a város napi életével.

A szociális szolgáltató központ egy épületben található a lakásokkal.
Nővérhívó rendszer bekötve a közvetlenül Szociális Szolgáltató Központba, Étkeztetésre és egyéb plusz szolgáltatásokra (pl. Fodrászat stb.) van lehetőség. 55 év felettiek részére barátságos, azonos élethelyzetű szomszédok. Akadálymentesített belső terek és közlekedőfelületek
Közösségi terek, parkosított udvar, pihenőpark. Alacsony fenntartási költségek, A+ energiahatékonyság
Biztonság: kamera rendszer, riasztó, tűzriasztó, több ponton záródó ajtók

4 típusú lakás, 32 és 47 m² között, kulcsrakészen, beépített konyhával, minőségi burkolatokkal, zuhanyzóval, terasszal:

Típus Méret Bruttó ár
1. típus 47,78 m² 46.408.000 Ft
2. típus 32,61 m² 31.669.000 Ft
3. típus 39,57 m² 38.434.000 Ft
4. típus 40,50 m² 39.332.000 Ft

A lakásokhoz külön megvásárolható parkolóhelyek elérhetők!
3 rétegű, hő- és hangszigetelt nyílászárók
Hőhőmérséklet-szabályozás, klíma
Beépített konyhabútor (páraelszívó, hűtő, főzőlap)
Kapaszkodókkal ellátott, küszöbmentes zuhanyzó
TV, telefon kiépítve, optikai internet
Intelligens épület felügyelet, energiatakarékos üzemeltetés
A fűtést megújuló energiaforrások kiépítésével biztosítva: termálfűtéssel és talajszondás hőszivattyúval.

A Szociális központban elérhető ellátási szolgáltatások:

Szociális segítés keretében:
A lakókörnyezeti higiénia megtartásában való közreműködés körében:
takarítás a lakás életvitelszerűen használt helyiségeiben (hálószobában, fürdőszobában, konyhában és illemhelyiségben). mosás, vasalás
A háztartási tevékenységben való közreműködés körében: bevásárlás (személyes szükséglet mértékében), segítségnyújtás ételkészítésben és az étkezés előkészítésében, mosogatás, kísérés
Segítségnyújtás veszélyhelyzet kialakulásának megelőzésében és a kialakult veszélyhelyzet elhárításában
Szükség esetén a bentlakásos szociális intézménybe történő beköltözés segítése

Személyi gondozás keretében:
Az ellátást igénybe vevővel segítő kapcsolat kialakítása és fenntartása körében:
információnyújtás, tanácsadás és mentális támogatás családdal, ismerősökkel való kapcsolattartás segítése az egészség megőrzésére irányuló aktív szabadidős tevékenységben való közreműködés ügyintézés az ellátott érdekeinek védelmében

Gondozási és ápolási feladatok körében:
mosdatás, fürdetés, öltöztetés, ágyazás, ágyneműcsere, gyógyszer kiváltása, gyógyszer adagolása, gyógyszerelés monitorozása, vérnyomás és vércukor mérése, hely- és helyzetváltoztatás segítése lakáson belül és kívül, kényelmi és gyógyászati segédeszközök beszerzésében való közreműködés, kényelmi és gyógyászati segédeszközök használatának betanítása, karbantartásában való segítségnyújtás
a háziorvos írásos rendelésén alapuló terápia követése (a tevékenység elvégzéséhez való kompetencia határáig)

A lakópark teljes mértékben parkosított, öntözőrendszerrel ellátott, térvilágítással, pihenőpadokkal és közösségi helyiségekkel. Itt valóban minden adott a békés, biztonságos és élménydús nyugdíjas évekhez.

Elhelyezkedés:
Nyugodt, zöldövezeti környezet.
Közelben: boltok, gyógyszertár, orvosi rendelő, posta és a híres mórahalmi Szent Erzsébet gyógyfürdő!

A lakások kulcsrakészen kerülnek átadásra csak be kell költöznie. Várjuk szeretettel!

Mórahalmon nem csak lakást vásárol, hanem nyugalmat, közösséget és biztonságot.
További részletekért, megtekintési szándékával keressen bizalommal!
További adatok
Telekterület: -
Kert mérete: -
Erkély mérete: 7 m2
Felszereltség: -
Parkolás: lakáshoz van kültéri parkoló
Kilátás: -
Egyéb extrák:  
Hirdető adatai
Hirdető neve: dh.hu - Bartók Béla út
Kapcsolattartó: Nidal Ádám
Hirdető telefonszáma: +36304743048
Honlap: -
 
Üzenetet küldhet a hirdetőnek, árajánlatot tehet az ingatlanra:
Az Ön neve:
Az Ön e-mail címe:
Üzenet: