Ingatlan Televízió
Ingatlan Televízió
további hirdetések
adatlap bezárása

Nyíregyháza 
 

Hivatkozási szám: 5844832
Ingatlan adatai
Irányár: 58 000 000 Ft
Típus: lakás (tégla)
Kategória: eladó
Alapterület: 116 m2
Fűtés: egyéb
Állapota: felújított
Szobák száma: 3+1
Építés éve: 1990
Szintek száma: 2
Részletes leírás
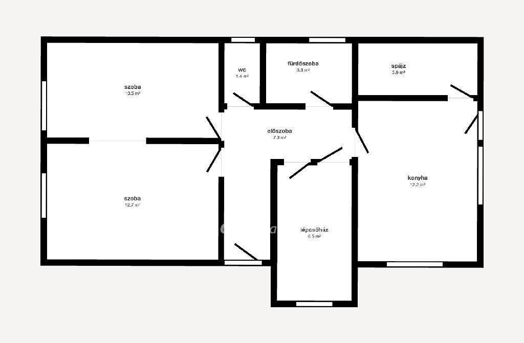
Eladó családi ház Nyíregyháza-Rozsrétszőlőben
Nyíregyháza-Rozsrétszőlő csendes, rendezett részén eladásra kínálunk egy földszintes, tetőtér-beépítéses, teljesen alápincézett családi házat.
A földszint kb. 70 nm -es, a tetőtér szintén kb. 70 nm alapterületű, ahol két szoba és egy fürdőszoba található. A földszinthez egy 8 nm-es terasz kapcsolódik. A tető időtálló betoncseréppel fedett.
Az ingatlan a ?90-es években épült vázkerámia falazóelemből, az akkori hőtechnikai előírásoknak megfelelően. A víz-, gáz- és villanyvezetékek korszerűek, a meleg vizet elektromos bojler biztosítja.
A fűtés többféleképpen megoldható: gázkazánnal, cserépkályhával vagy elektromos energiával. A tetőn 5 kW-os napelemrendszer működik, amely még 5 évig éves szaldó elszámolású.
A kb. 700 nm-es telek részben parkosított, részben konyhakertként használható, mérete lehetőséget biztosít az épület bővítésére is.
A környék csendes, kertvárosias, jó lakóközösséggel. Nyíregyháza belvárosa autóval 10 percen belül elérhető, rendszeres buszjárat is közlekedik. A közelben iskola, óvoda, bolt és templom található, az M3-as autópálya felhajtója pedig mindössze 5 percnyire van.
A ház több mint 30 éves, ezért részleges felújítást igényel (festés, tapétázás, kerítés- és lábazatjavítás, kertrendezés).
Az ingatlan tehermentes, azonnal birtokba vehető.
OTP Banki háttérrel díjmentes, gyors ügyintézést biztosítunk finanszírozási és biztosítási igények esetén (pl. Otthon Start Hitelprogram, Babaváró, Falusi CSOK, CSOK Plusz, lakáshitel, személyi kölcsön stb.).
Referenciaszám: M313531

58000000 Ft

Referencia szám: M313531
További adatok
Telekterület: 700 m2
Kert mérete: -
Erkély mérete: -
Felszereltség: -
Parkolás: -
Kilátás: -
Egyéb extrák:  
Hirdető adatai
Hirdető neve: otpip.hu - Nyíregyháza Bocskai utca 18-20 - OTP Ingatlanpont Iroda
Kapcsolattartó: Szücs-Hajdú Angelika
Hirdető telefonszáma: +36-70-262-4299
Honlap: -
 
Üzenetet küldhet a hirdetőnek, árajánlatot tehet az ingatlanra:
Az Ön neve:
Az Ön e-mail címe:
Üzenet: